• Apartment for sale Brent, Swiss Riviera, Switzerland
    1 150 000 CHF

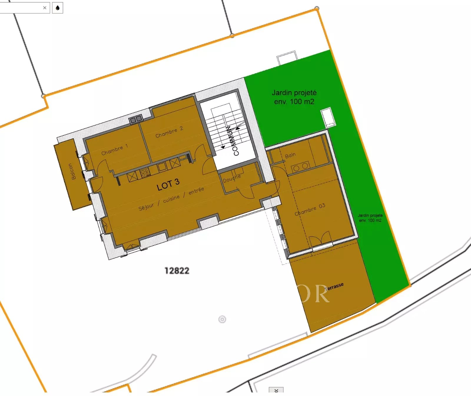
Surface area 97 m²97 m²4.5 Rooms4.5 RoomsTerrace size 22 m²22 m²Floor 1/4Floor 1/4View Panoramic Lake Sky City Mountains Panoramic Lake Sky City Mountains Garden / Gardens 100 m²100 m²Balcony / Balconies 7 m²7 m²

Charming 4.5-room private - PPE of 5 apartments

  • V0856MX
  • Sale
  • Apartment

Located in the village of Brent, just a few minutes from Montreux, this beautiful 4.5-room apartment benefits from a privileged living environment, blending authenticity, modern comfort, and serenity.

Located on the 1st floor of the PPE residence 'Les Murets', a small co-ownership of only 5 apartments, this property is part of a superb stone building completely renovated.

Currently, only 3 apartments are available.

Its advantages:

- Living area of 97 m²
- 3 bedrooms
- 2 bathrooms with WC
- Balcony and terrace
- View of Lake Geneva and the mountains
- 1 cellar
- 1 parking space (sus CHF 20,000)

The PPE charges are not yet defined as of today, but they should remain moderate owing to the excellent energy performance of the building, including the heat pump, photovoltaic panels on the roof, triple glazing, and peripheral insulation.

Whether for living or for making an attractive real estate investment, this property represents a great opportunity in a particularly sought-after area of the Riviera.

For more information or to organize a visit, contact me

Proximities

  • Bus
  • Shops
  • Primary school
  • Town centre
  • Station
  • Public pool
  • Golf
  • Middle school
  • Highway
  • Lake

luxury real estate agency MONTREUX
  • Avenue du Casino 10
  • 1820 MONTREUX
  • Vaud, SWITZERLAND

John Taylor
Online enquiry

* Compulsory fields
The information collected is necessary to process your request. At any time, you have the right to access, modify and delete your data.