• Villa for sale San-Juan, Port De Sant Miquel, Ibiza
    7 800 000 EUR

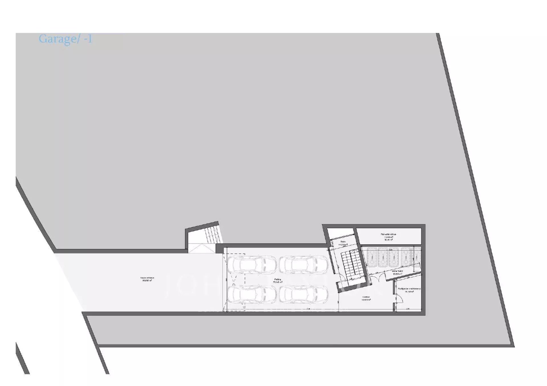
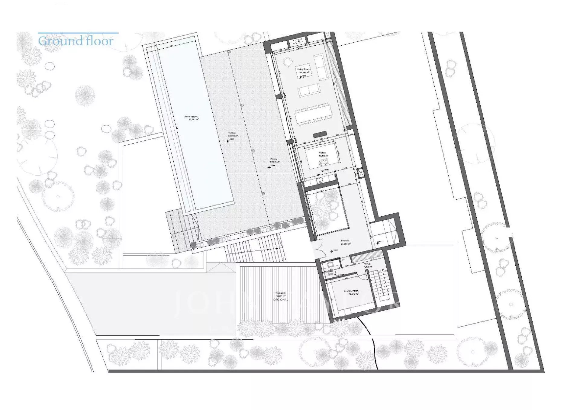
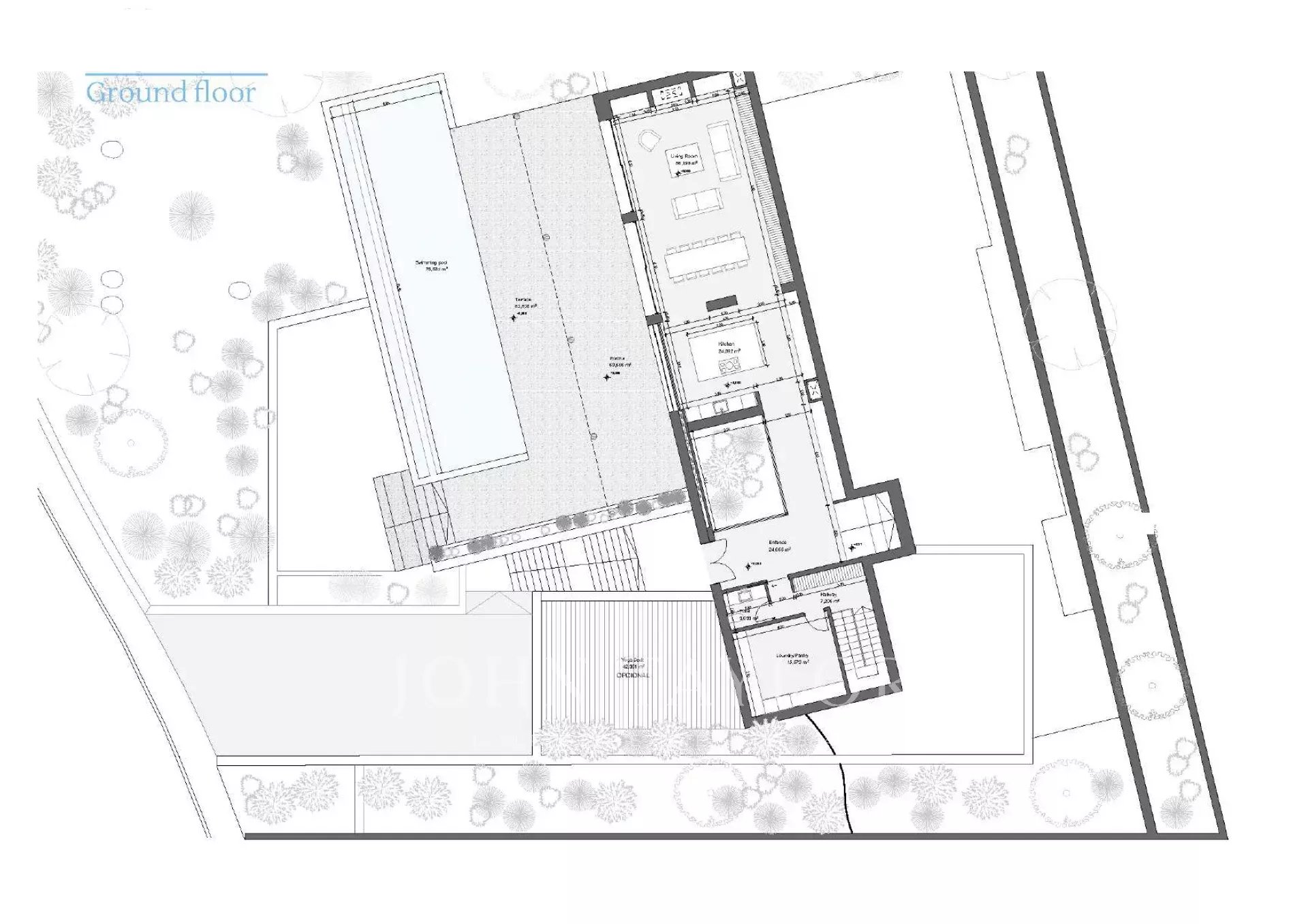
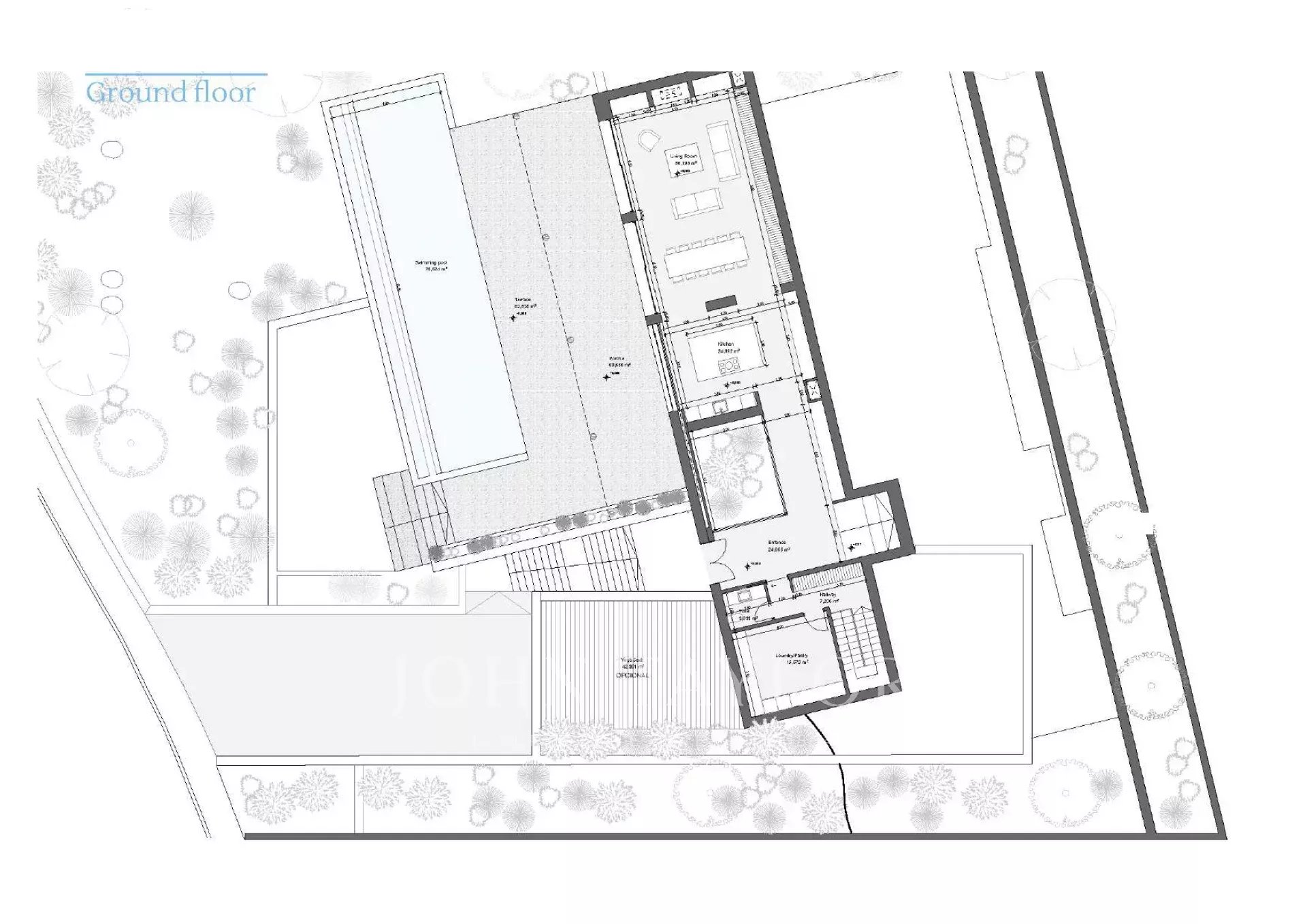
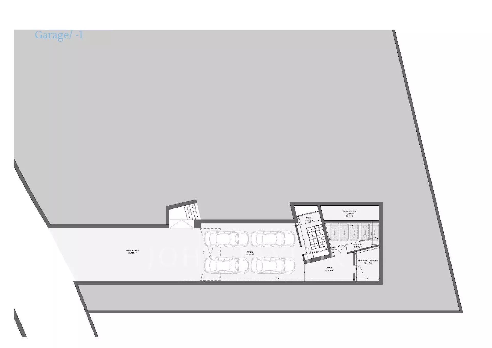
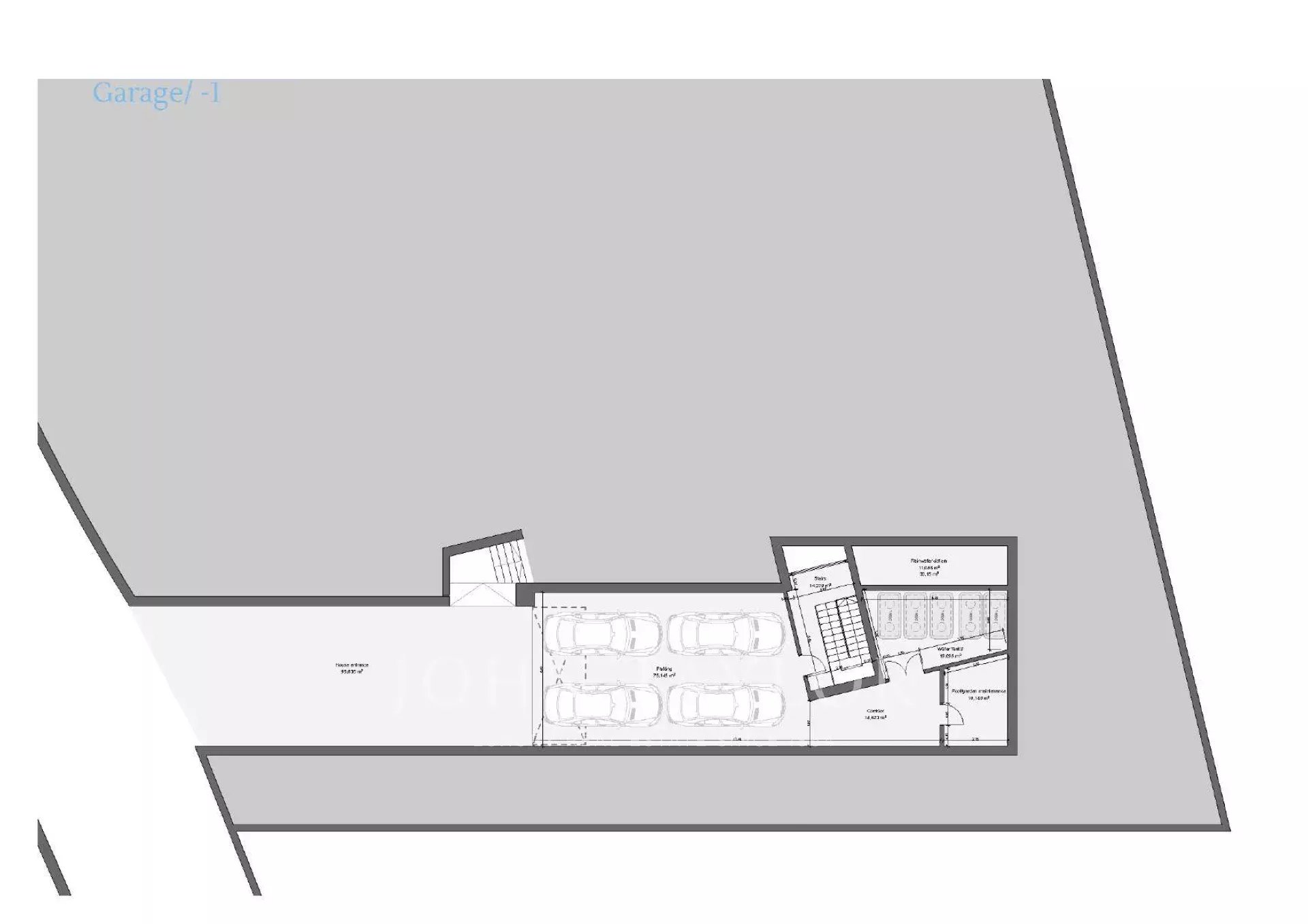
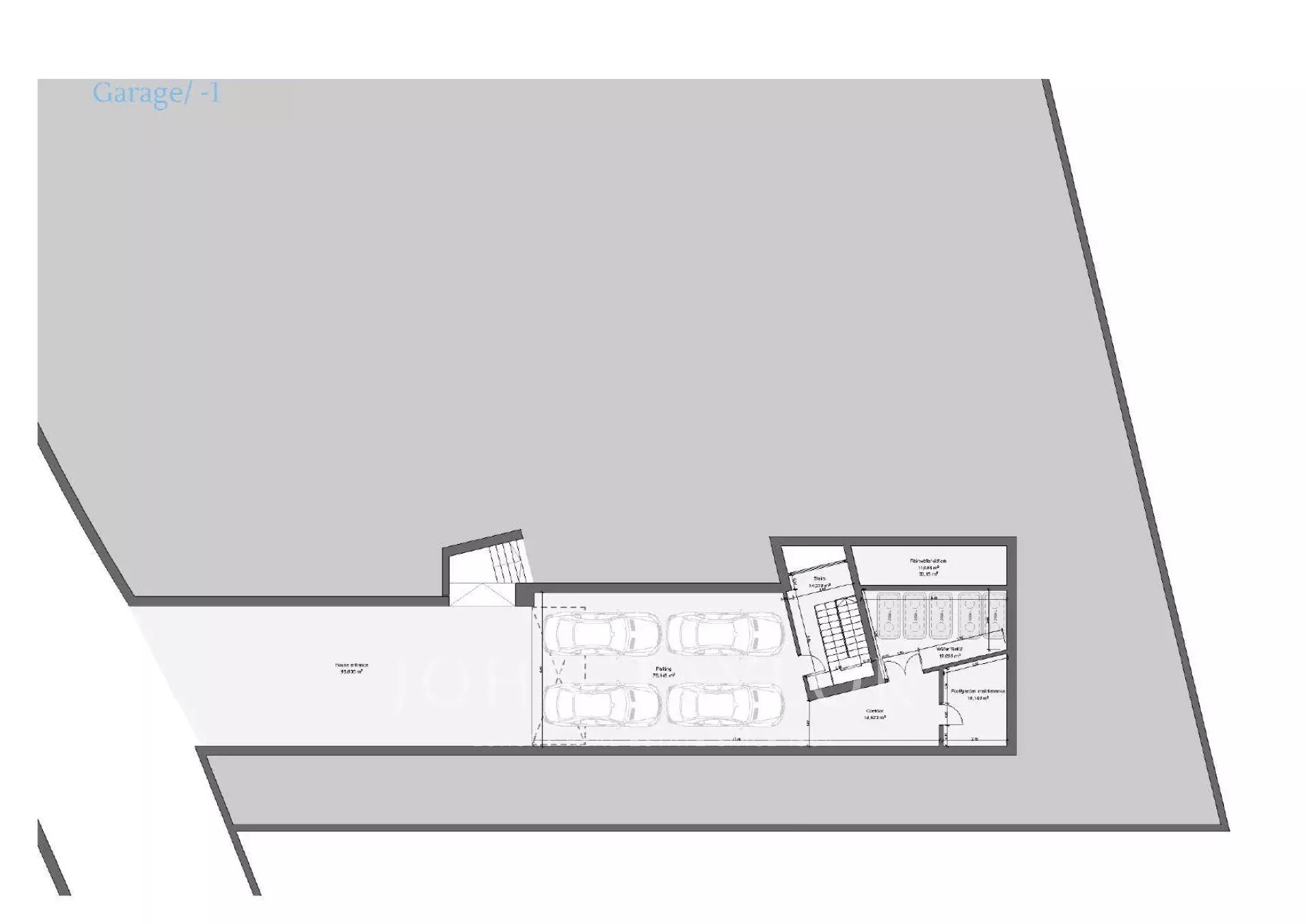
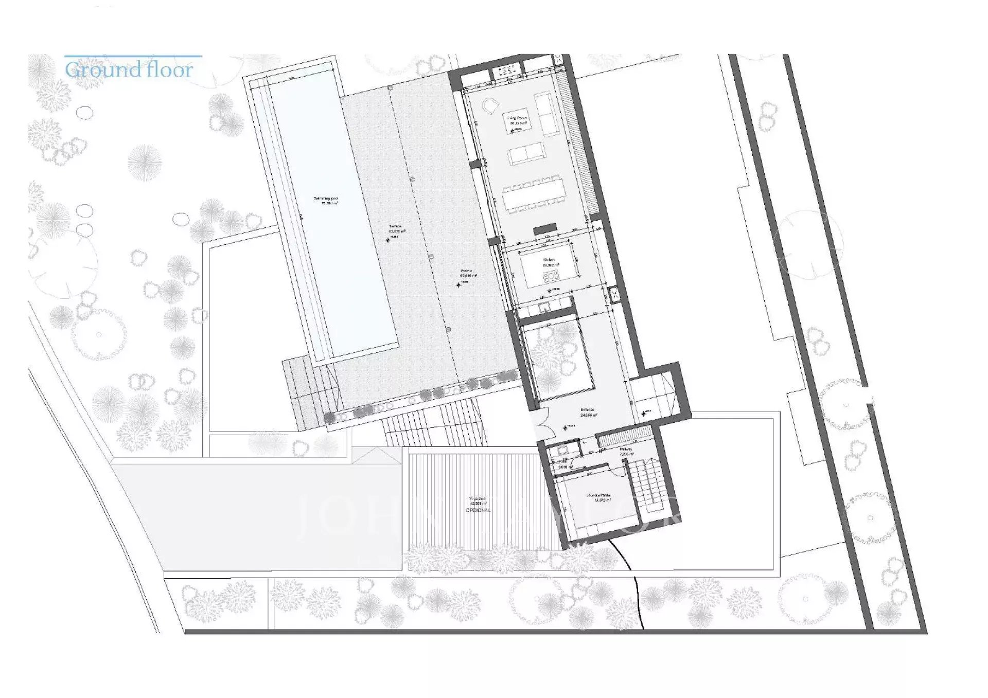
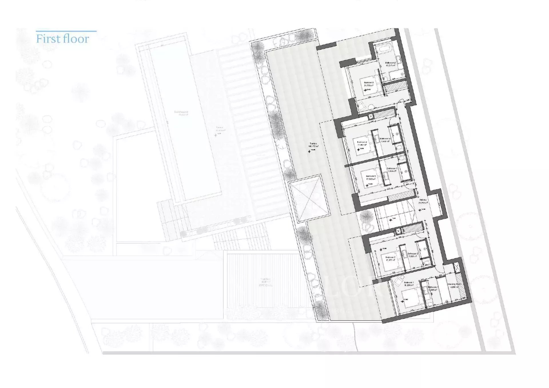
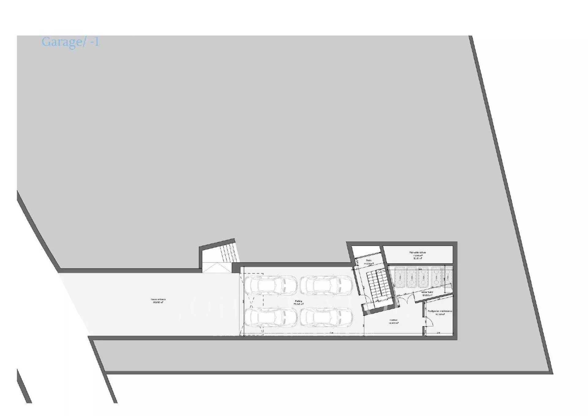
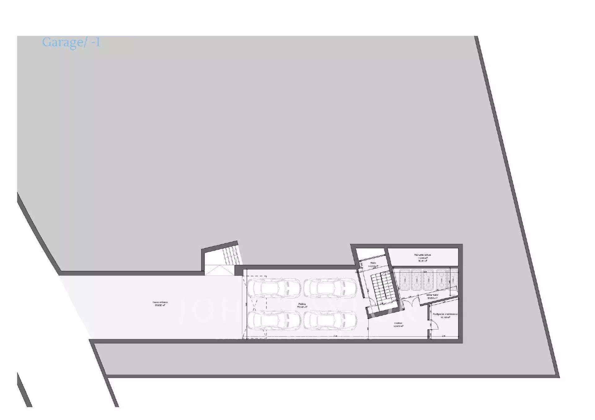
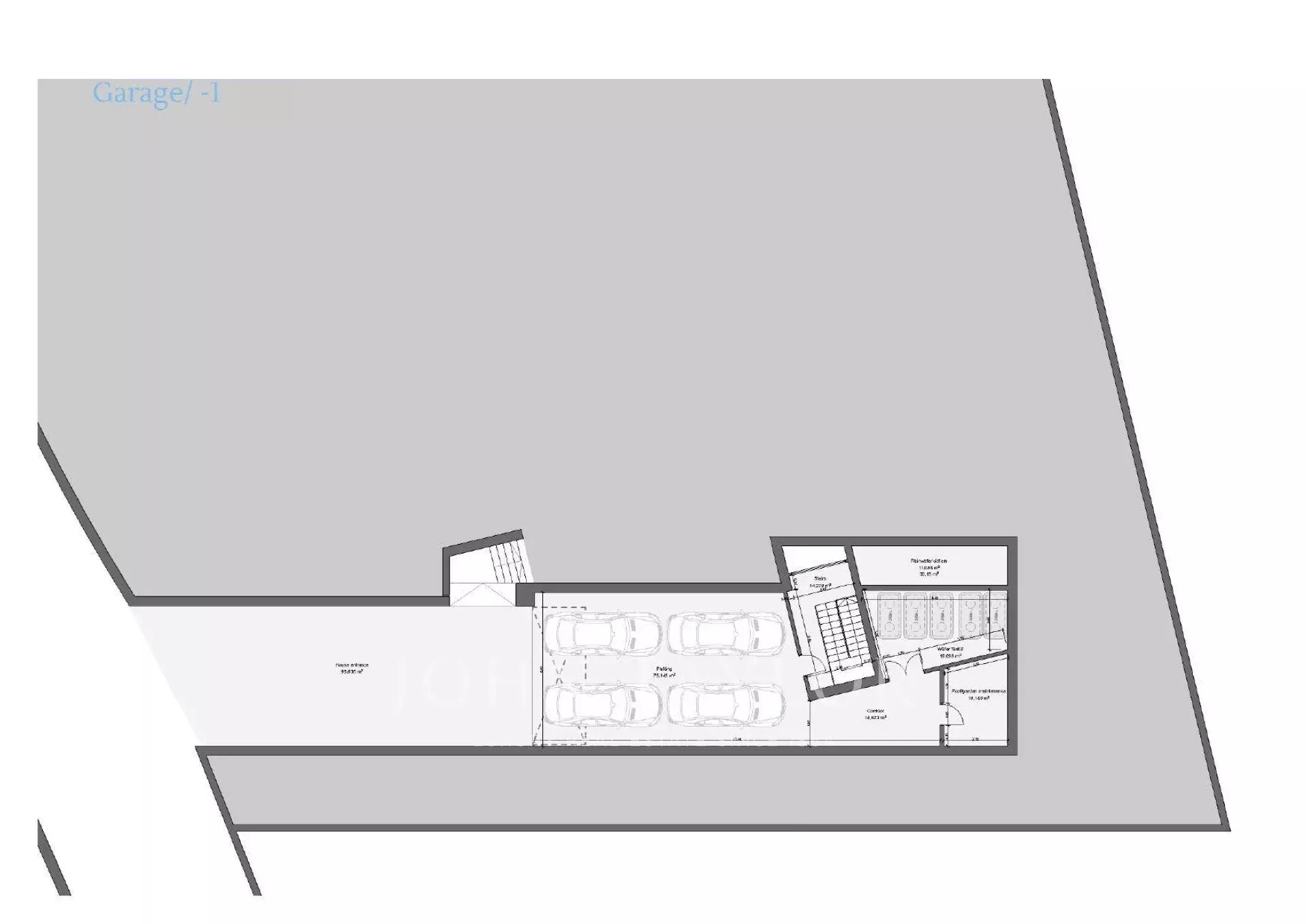
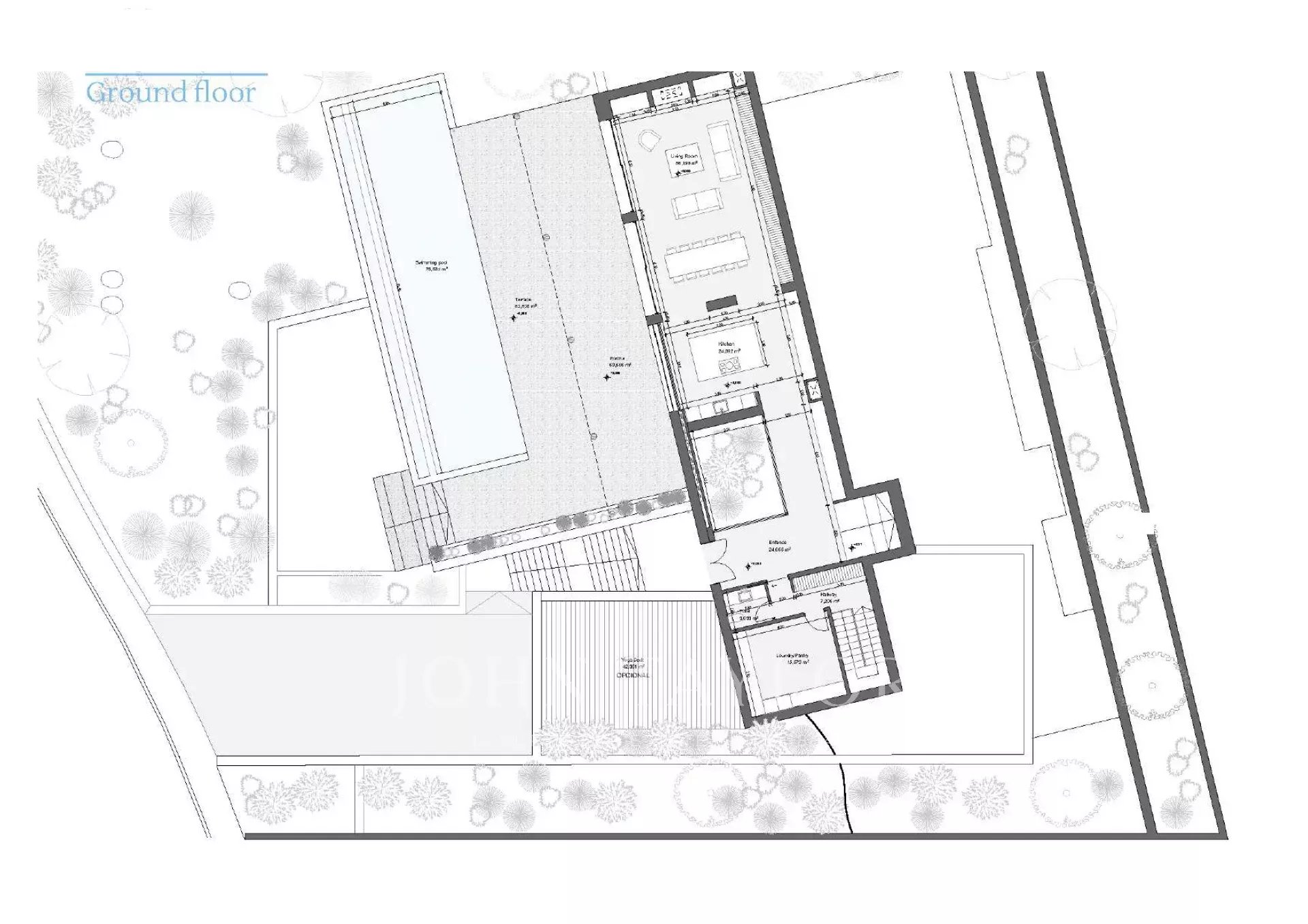
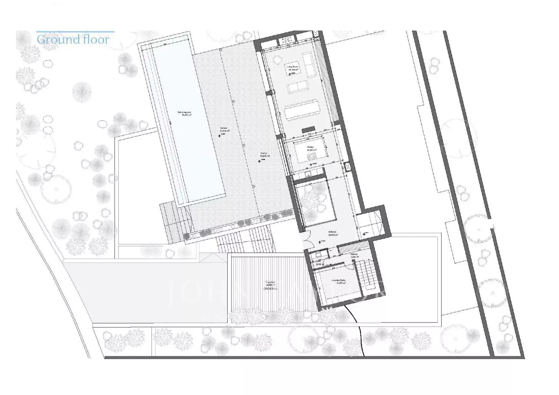
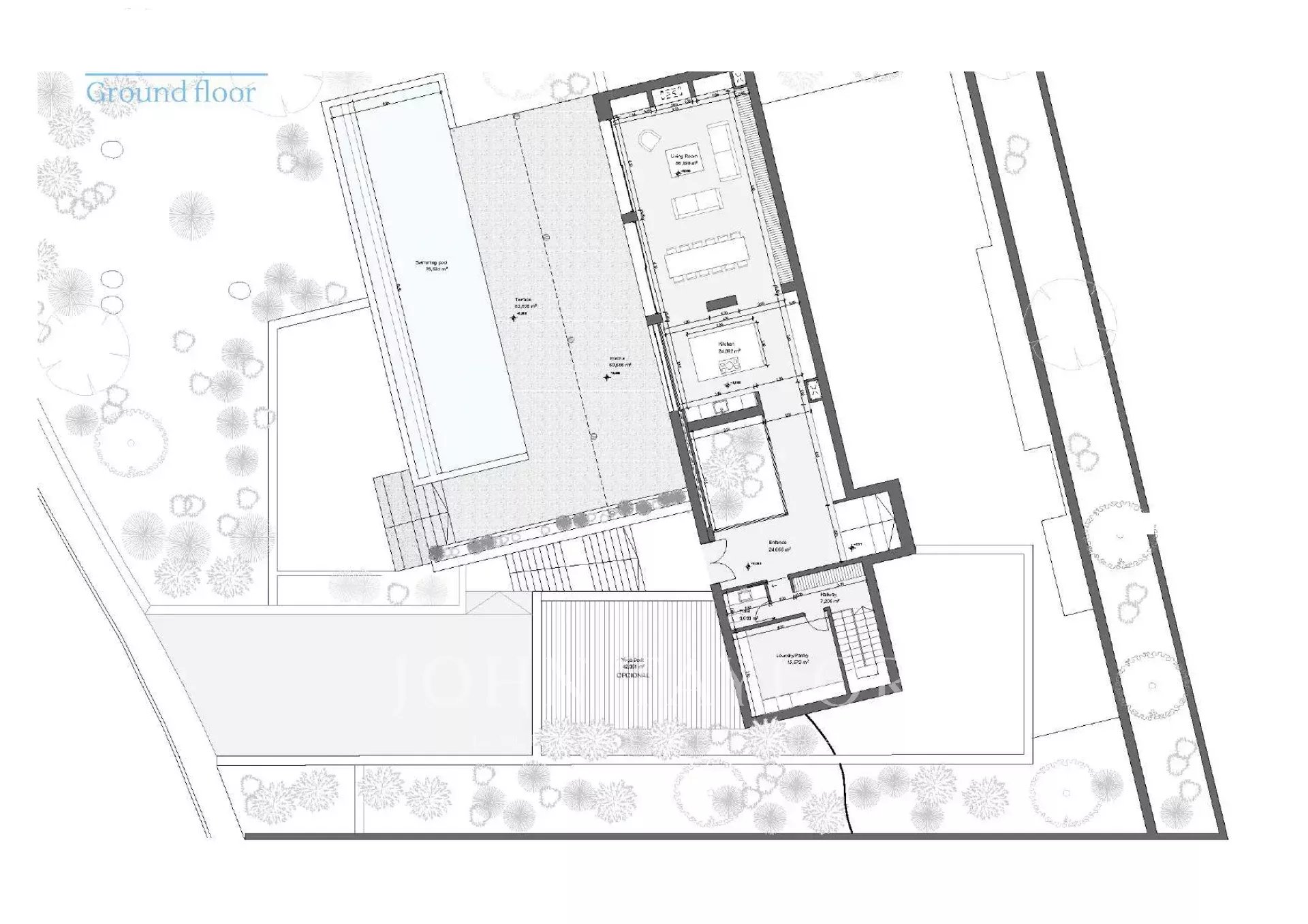
Surface area 711 m²711 m²Plot 1 700 m²1 700 m²6 Bedrooms6 Bedrooms6 Bathrooms6 BathroomsExposure West West View Sea Sea Garage / GaragesGarage

Villa in Puerto de San Miguel

  • V0632IB
  • Sale
  • Villa

This stunning property will meet the highest standards in design and sustainability, using modern and consistent technology combined with handmade and locally selected materials.

Overlooking San Miguel Harbour Bay, each property will have its own special character and will stand out individually, in quality and creativity.

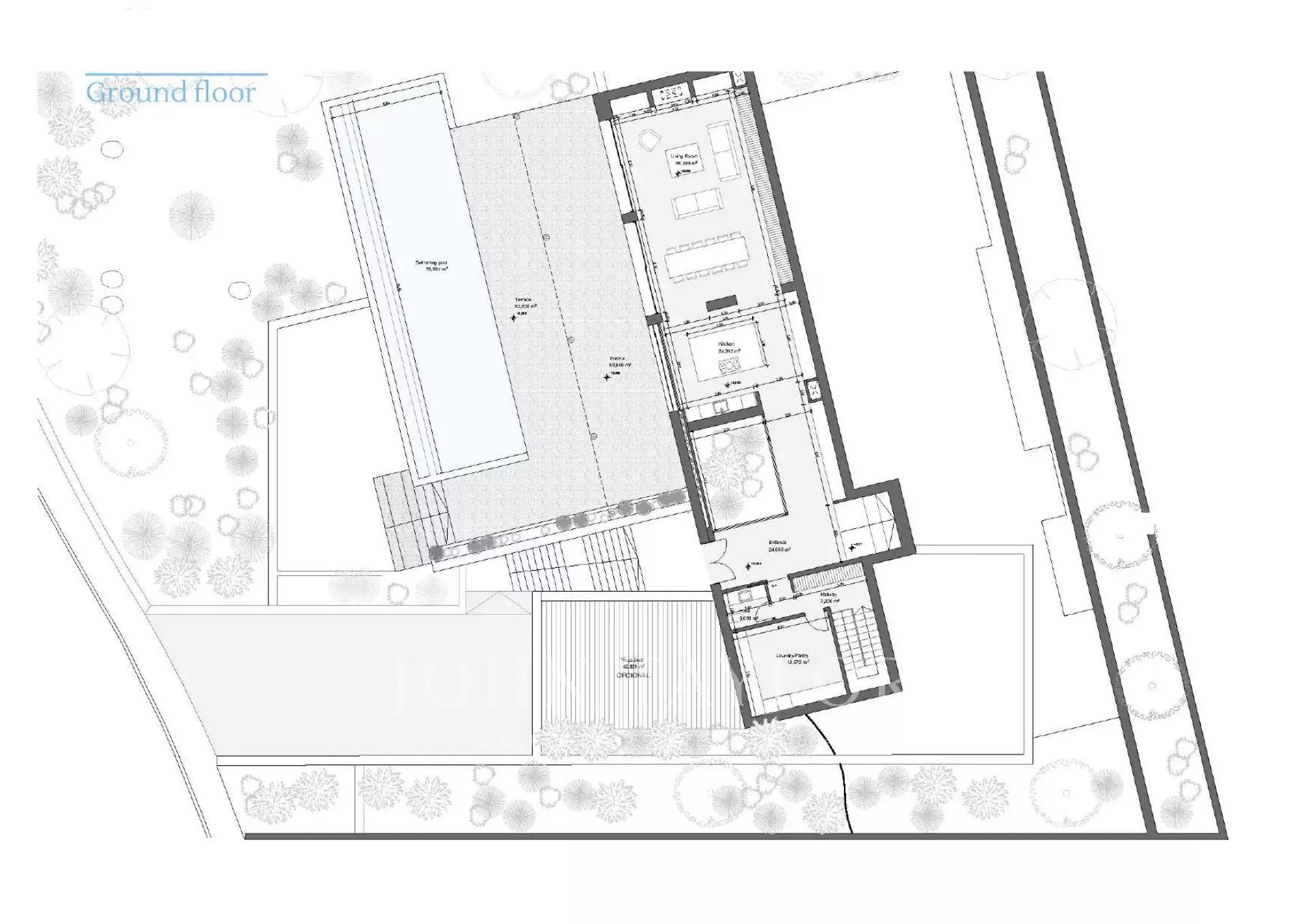
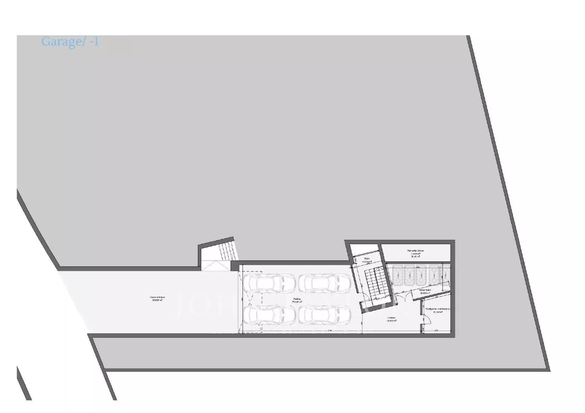
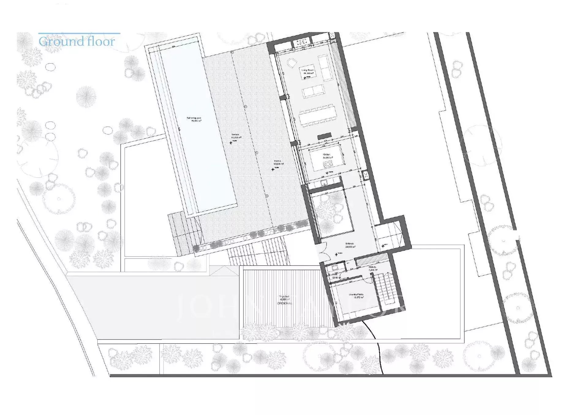
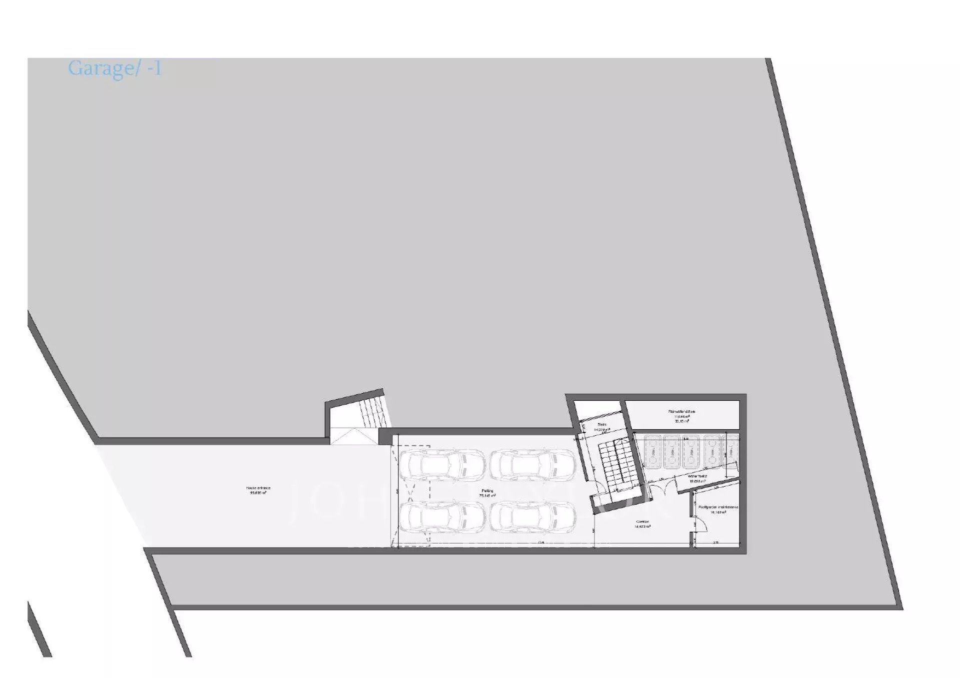
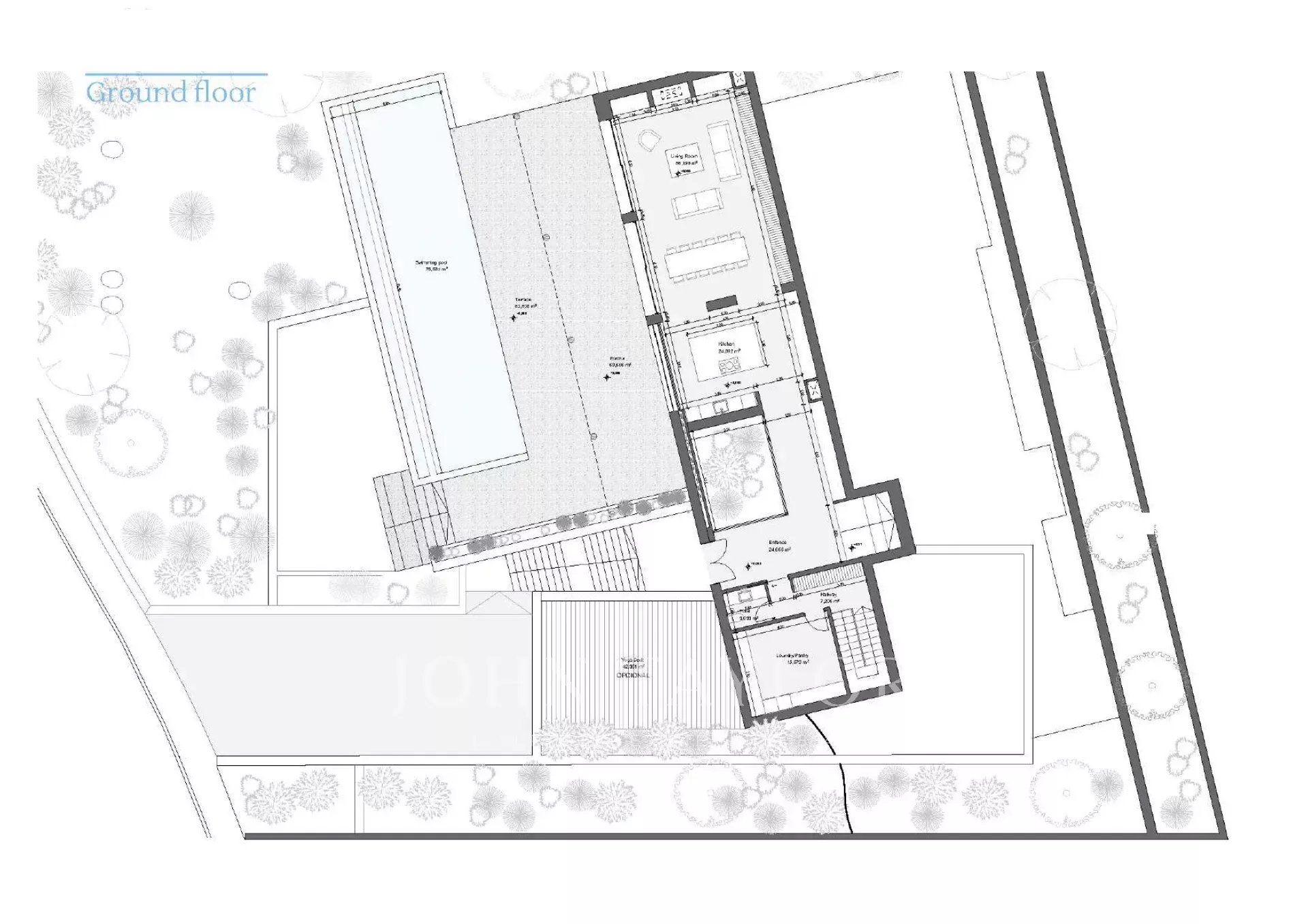
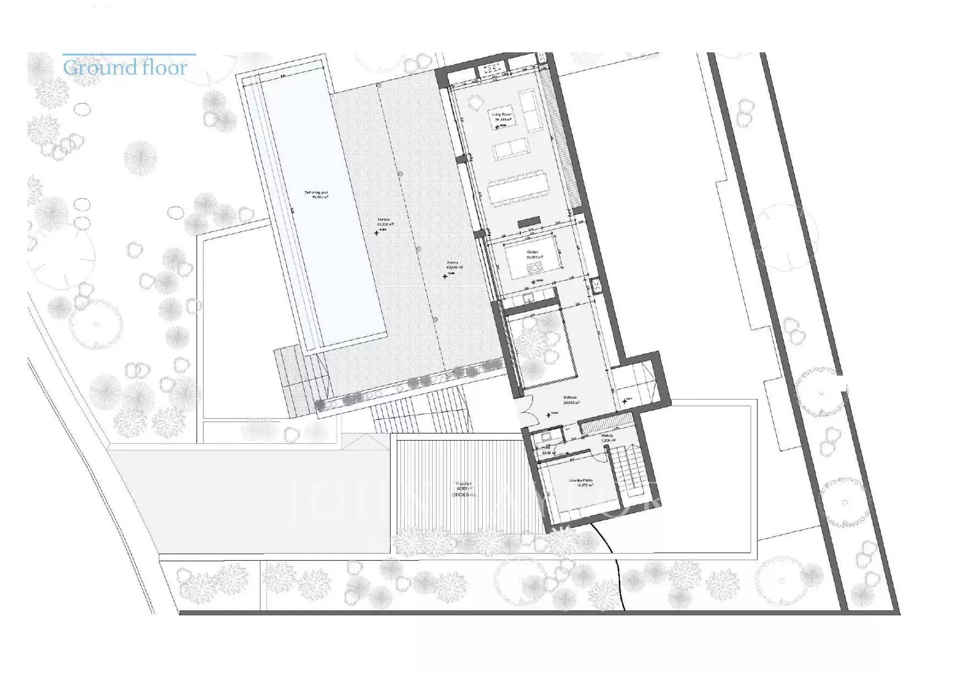
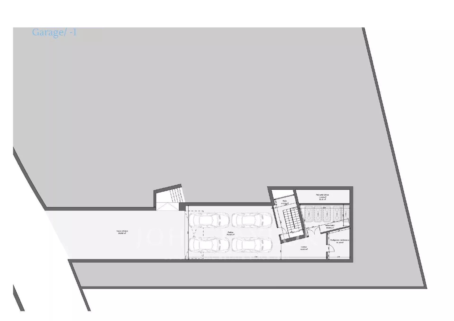
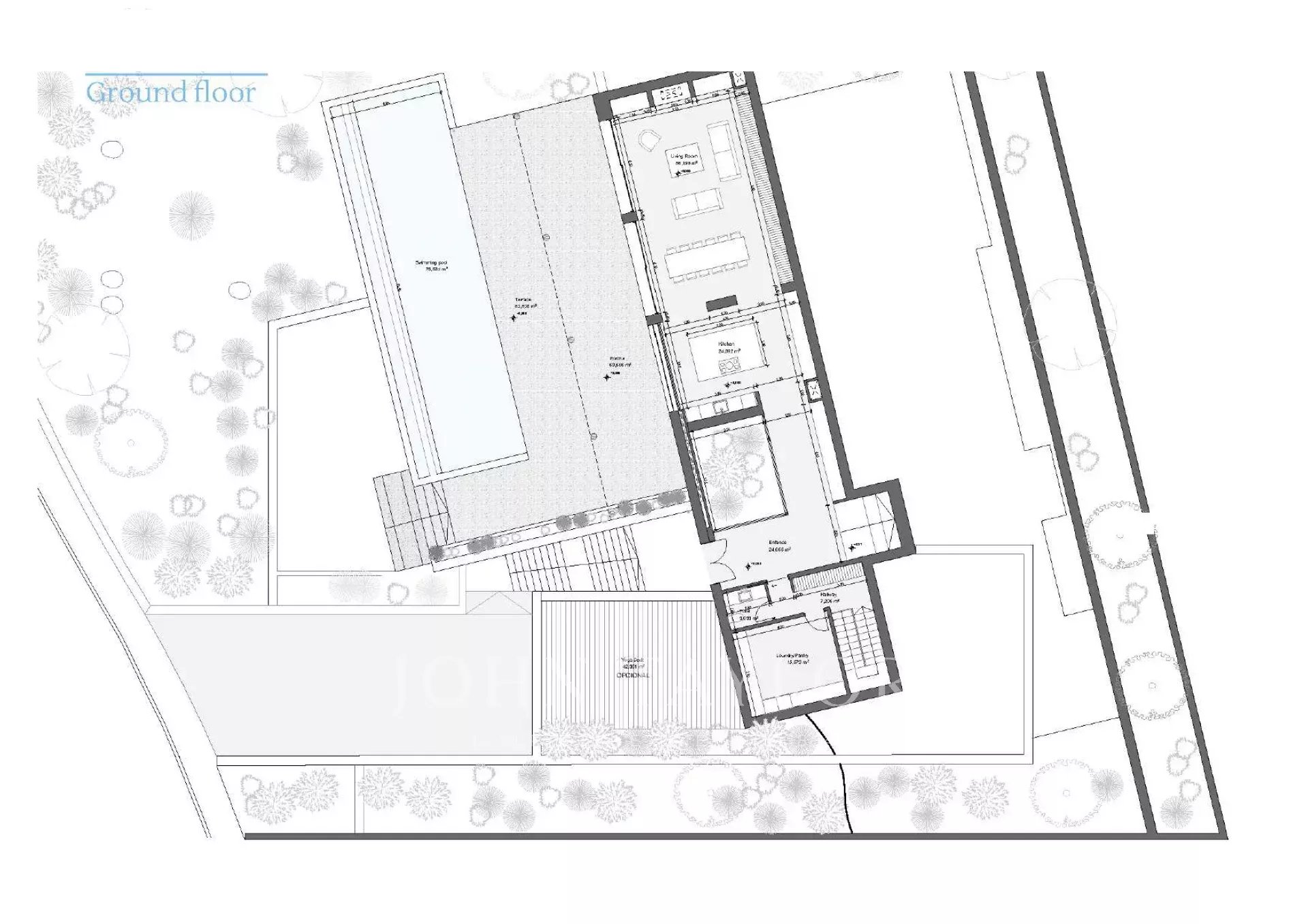
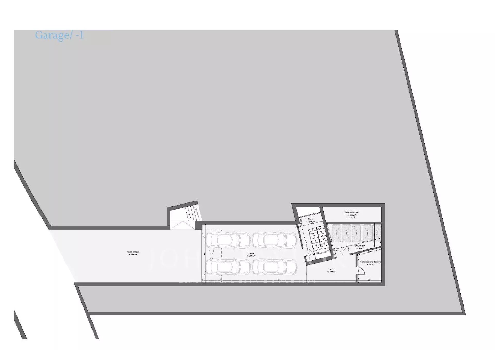
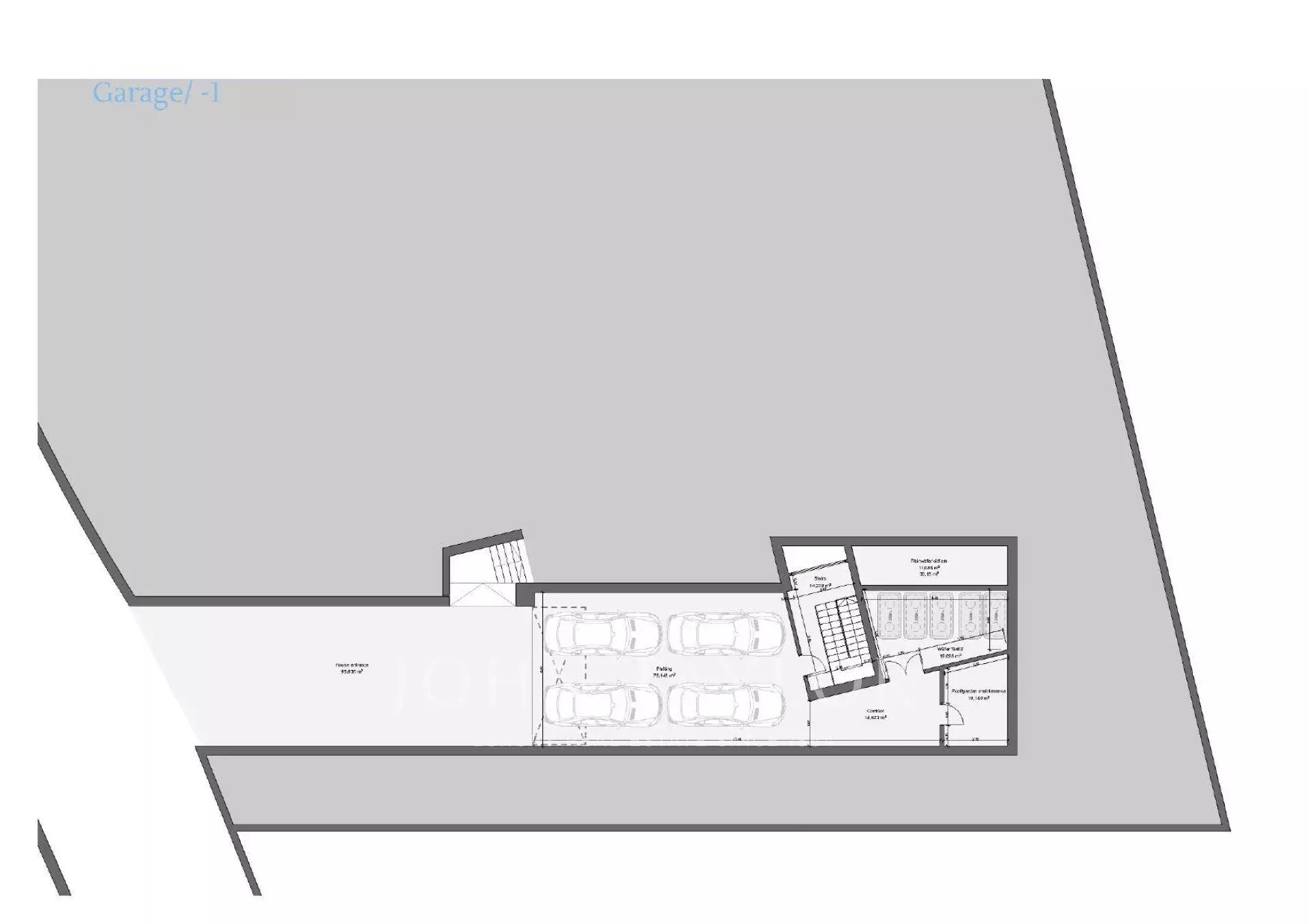
Areas:
Total usable interior 439,70m2
Total usable exterior 449,81 m2
Total usable area without swimming pool 814,15 m2
Useful pool area 73,80 m2

Proximities

  • Beach
  • Supermarket

luxury real estate agency IBIZA
  • JT REAL ESTATE IBIZA SL
    Terrazas De Botafoch
    Passeig Joan Carles I, 39
  • IBIZA
  • SPAIN

John Taylor
Online enquiry

* Compulsory fields
The information collected is necessary to process your request. At any time, you have the right to access, modify and delete your data.