• Penthouse for sale Palma De Mallorca, Paseo Maritimo, Mallorca
    5 100 000 EUR

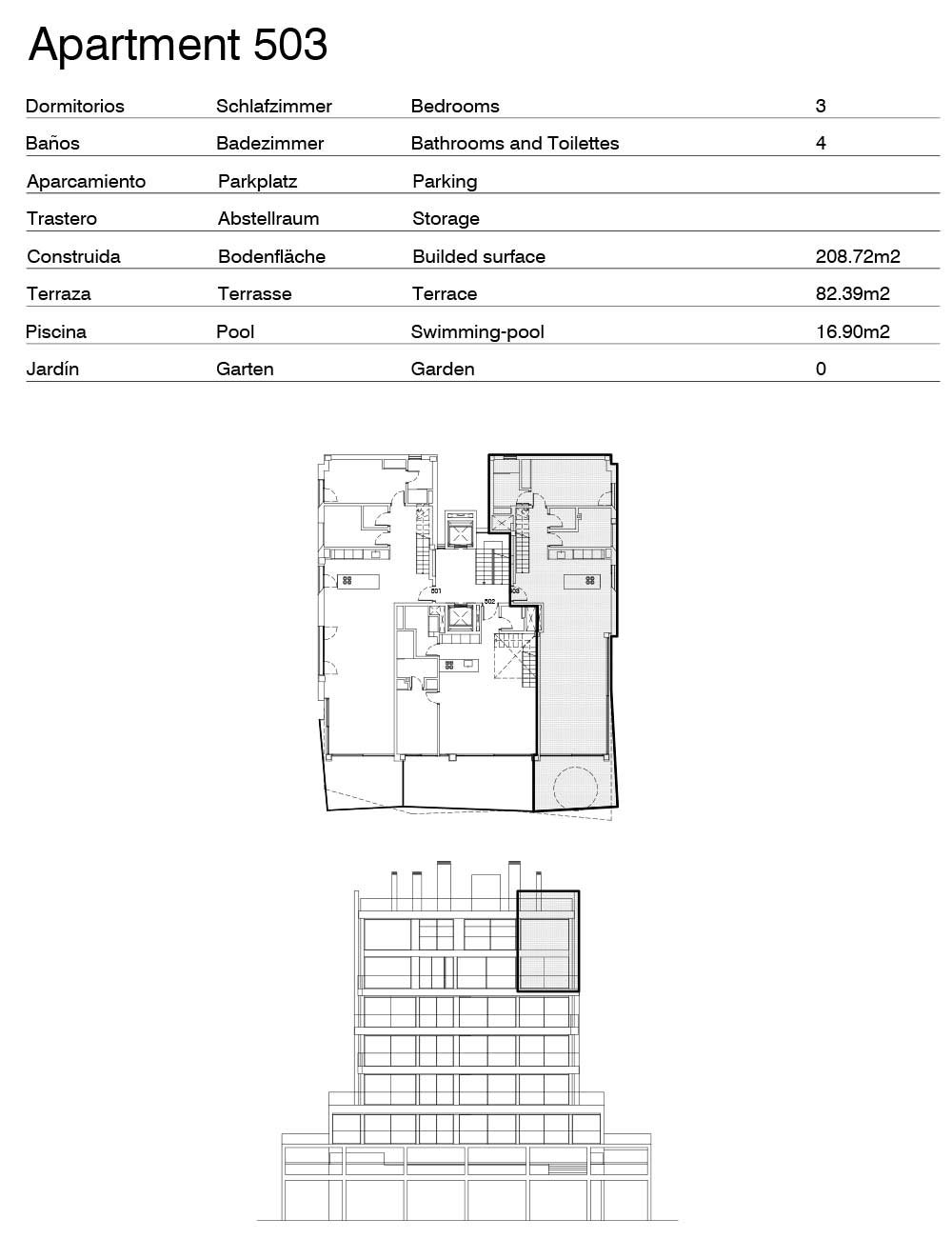
Surface area 209 m²209 m²3 Bedrooms3 BedroomsTerrace size 83 m²83 m²4 Bathrooms4 BathroomsFloor 4/6Floor 4/6View Unobstructed Harbor City Sea Unobstructed Harbor City Sea Swimming poolSwimming poolParking / ParkingsParking

Harbour Loft - The Ultimate Address

  • V0163PM
  • Sale
  • Penthouse

Offering 3 bed/4 bath in the latest development on the renouned Paseo Maritimo. Harbour Lofts combine exceptional design, fantastic views and quality of life. This is reflected throughout the property with top class materials, fixtures and fittings. Great energy abounds throughout its open plan design, floor to ceiling windows, cooling covered porches for comfortable dining or enjoying the sun on your private rooftop terrace with it's chill out área and beautiful pool. The perfect location for those who look for both the city and sea at your doorstep. The images included are of the penthouses and the building.

This wonderful and iconic promenade runs parallel to Palma’s seafront. The wide avenue lined by palm trees is made up of a pedestrian walkway and a cycle lane and is popular with locals and tourists alike.The official name of the promenade is Avenida Gabriel Roca, after the chief engineer of Palma’s port between 1940 and 1962. From luxurious superyachts to small fishing boats viewing the vessels along Palma bay is a relaxing way to spend the day. Every Spring the port hosts the Palma Superyacht Show, showcasing some of the most amazing yachts on the market. On the Paseo you also find the Es Baluard, the Contemporary Art Museum, with interesting exhibitions and events. Palma de Mallorca is best known for it’s historic Cathedral, La Seu, a masterpiece of Gothic architecture and an icon of the city as well as of the Paseo. Along the Paseo Maritimo you are spoilt for choice when it comes to restaurants and bars. Combining tranquil views of the port and the variety on offer you are sure to find something for everyone.The relatively newly opened Mercat 1930 is a good option and it is also open every day. C’an Eduardo is also located on the seafront with views of the Cathedral and is known for its delicious paellas and fideuàs. Another option is Sa Cranca with it’s mouthwatering paellas and fresh seafood and with it’s stunning harbour views. The Boathouse is Situated in the heart of Palma's Paseo Maritimo, offers both locals and tourists a casual waterfront dining experience. The Boathouse serves classic dishes in a beautiful and relaxed setting.There are several hotels along the promenade such as the 5-star Gran Melia Victoria or the 4-star Hotel Costa Azul.

Proximities

  • Bus
  • Bus hub
  • Shops
  • Beach
  • Town centre
  • Doctor
  • Taxi
  • Public parking
  • Park
  • Supermarket
  • Sea port
  • Day care
  • Tennis
  • Movies
  • Middle school
  • Sport center
  • Airport
  • Sea
  • Highway
  • Convention center

luxury real estate agency PALMA DE MALLORCA
  • JT Real Estate Palma SL
    Carrer Constitució 8
  • 07001 PALMA DE MALLORCA
  • Islas Baleares, SPAIN

John Taylor
Online enquiry

* Compulsory fields
The information collected is necessary to process your request. At any time, you have the right to access, modify and delete your data.