• Apartment for sale Principality Of Monaco, Monte-Carlo
    4 500 000 EUR

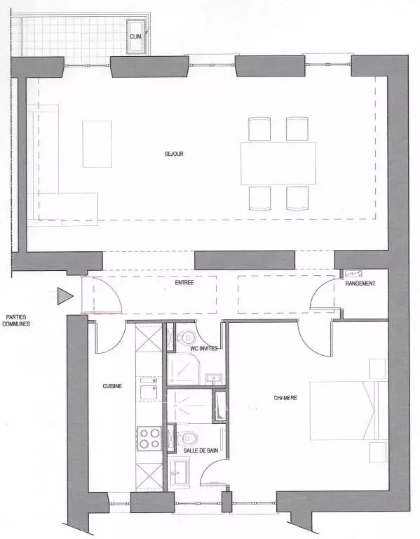
Surface area 90 m²90 m²1 Bedrooms1 Bedrooms2 Rooms2 RoomsFloor 1/4Floor 1/4Property size 94 m²94 m²

Monte-Carlo - Villa l'Oasis - 2-room apartment

  • V1845MC
  • Sale
  • Apartment

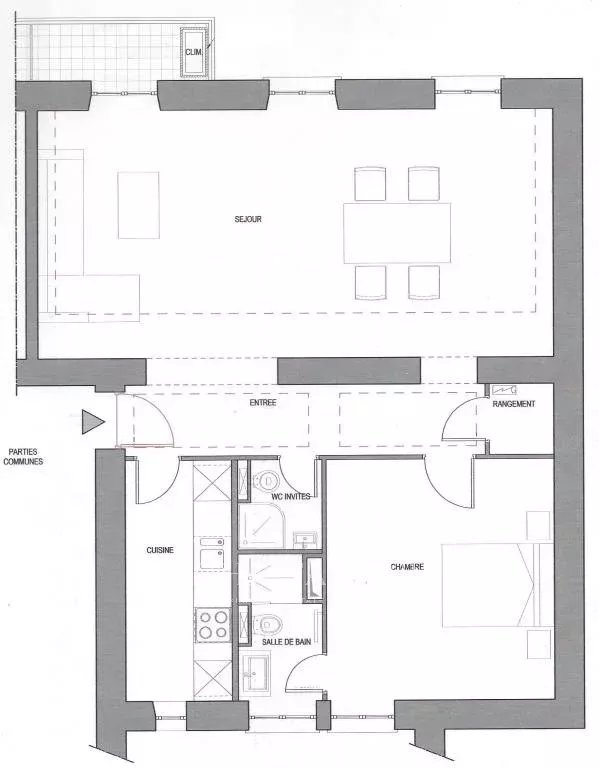
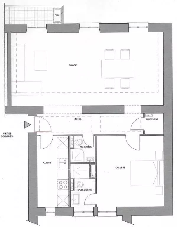
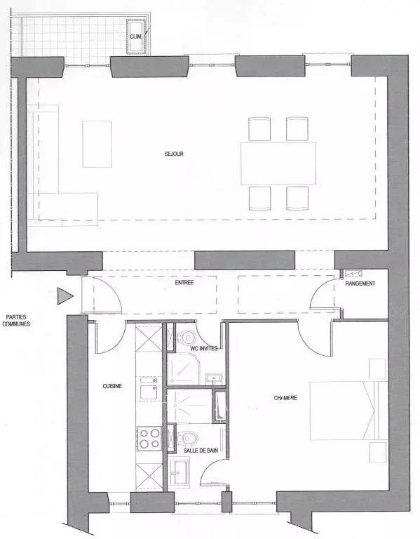
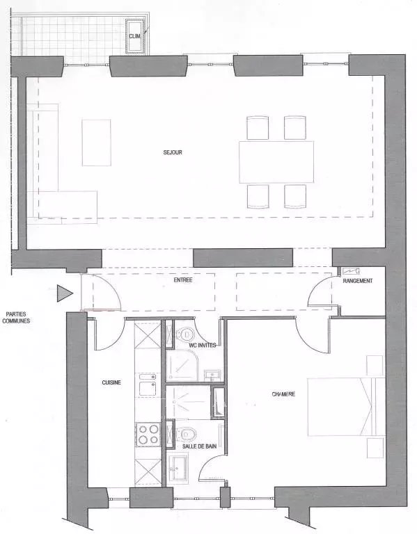
Elegant and bright apartment, formerly a 4-room unit redesigned into a spacious 2-room layout, easily reconfigurable into 3 rooms according to your needs. Fully renovated with high-end features and sold furnished, it offers:

An entrance hall

A double living room with three windows and a pleasant balcony, perfect for an outdoor dining area

A separate equipped kitchen

Two shower rooms, one with a window

A bedroom with a window

A laundry room

A large renovated cellar in the building

Under Law 1235. Vacant, this property is accessible to new residents.

luxury real estate agency MONACO
  • JOHN TAYLOR & SON
    20 boulevard des Moulins
  • 98000 MONACO
  • Monaco, PRINCIPALITY OF MONACO

John Taylor
Online enquiry

* Compulsory fields
The information collected is necessary to process your request. At any time, you have the right to access, modify and delete your data.