• Exclusive

  • Apartment for sale Principality Of Monaco, Fontvieille
    4 200 000 EUR

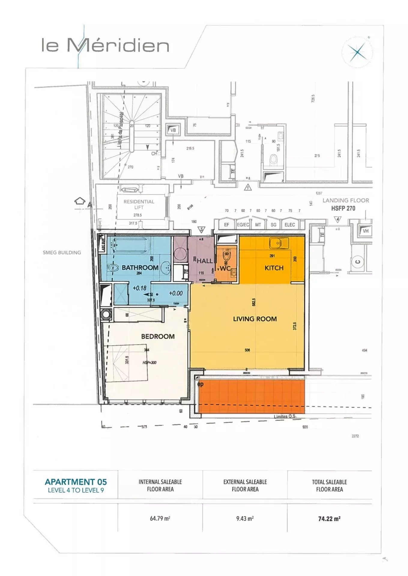
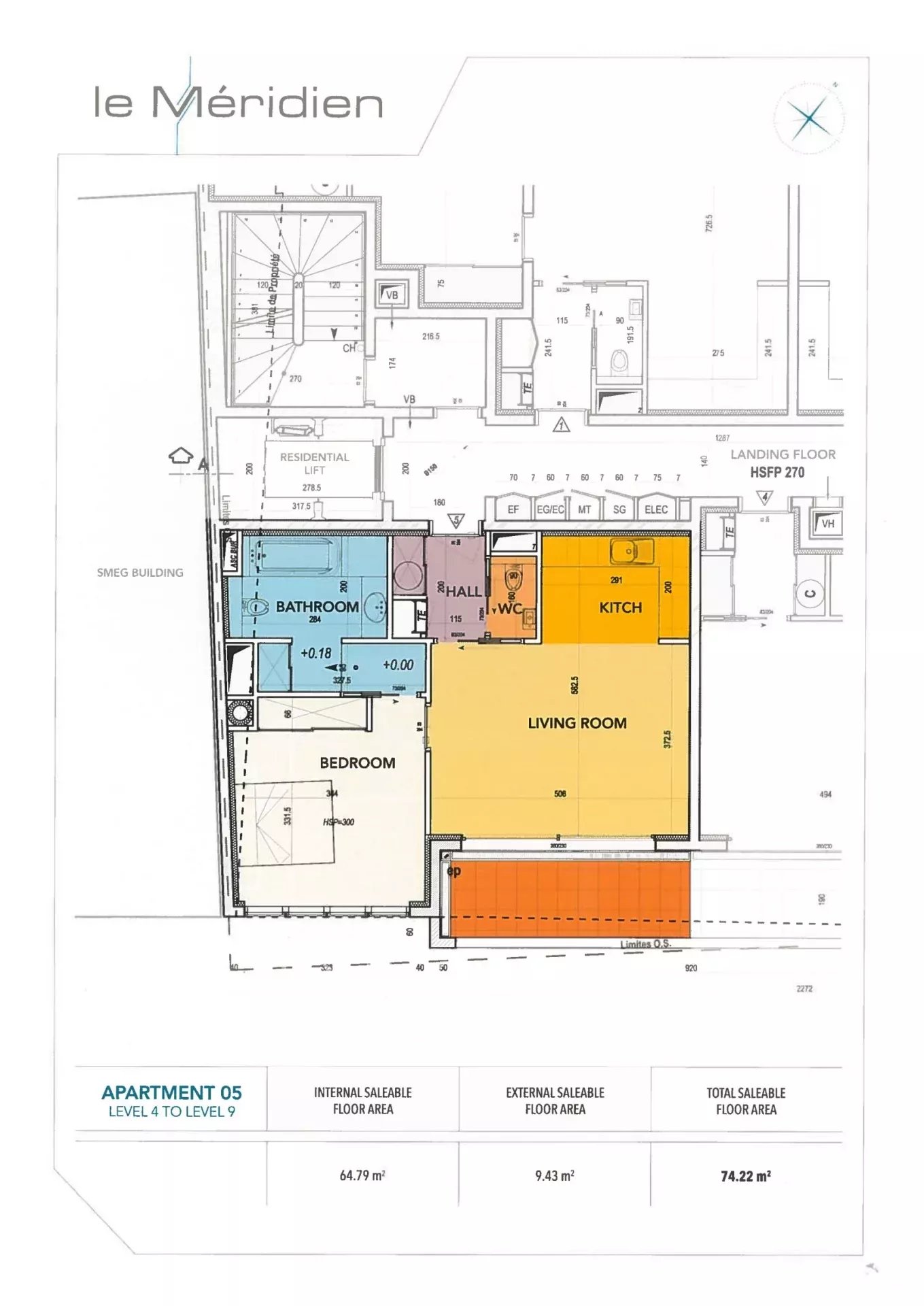
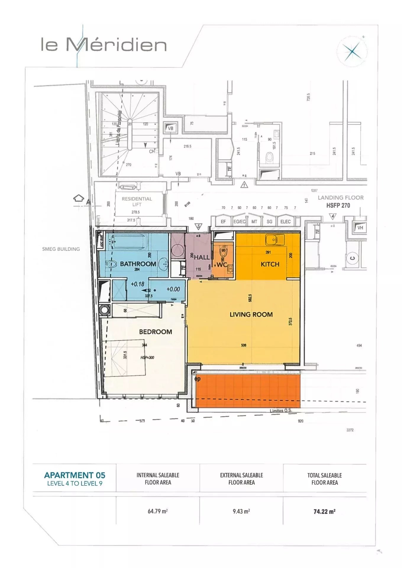
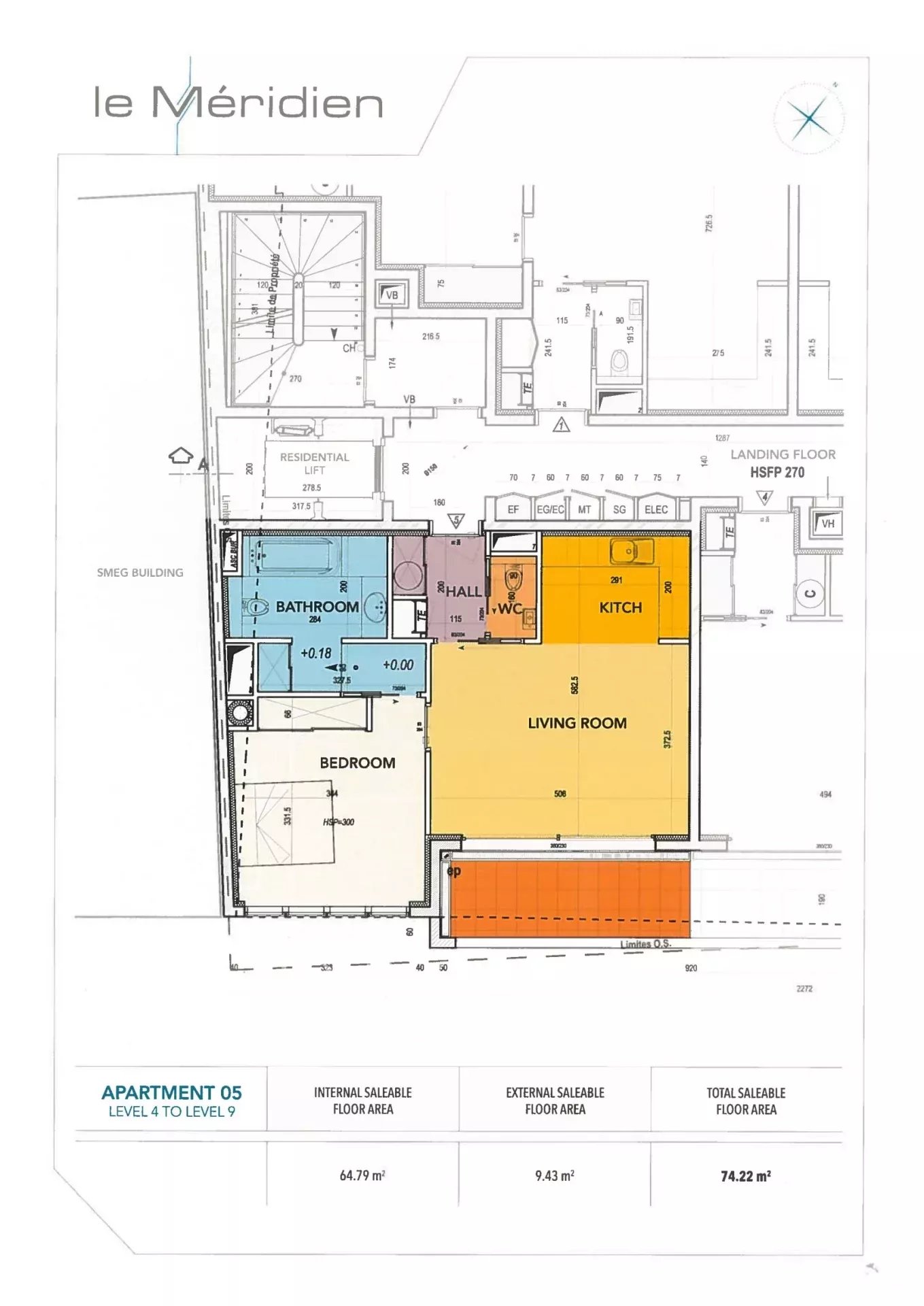
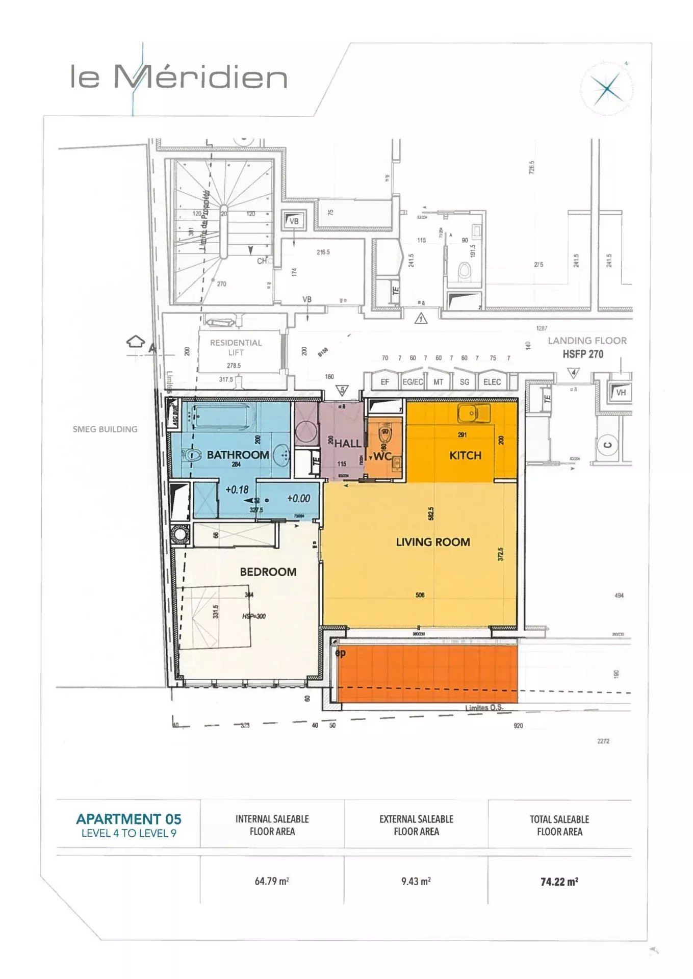
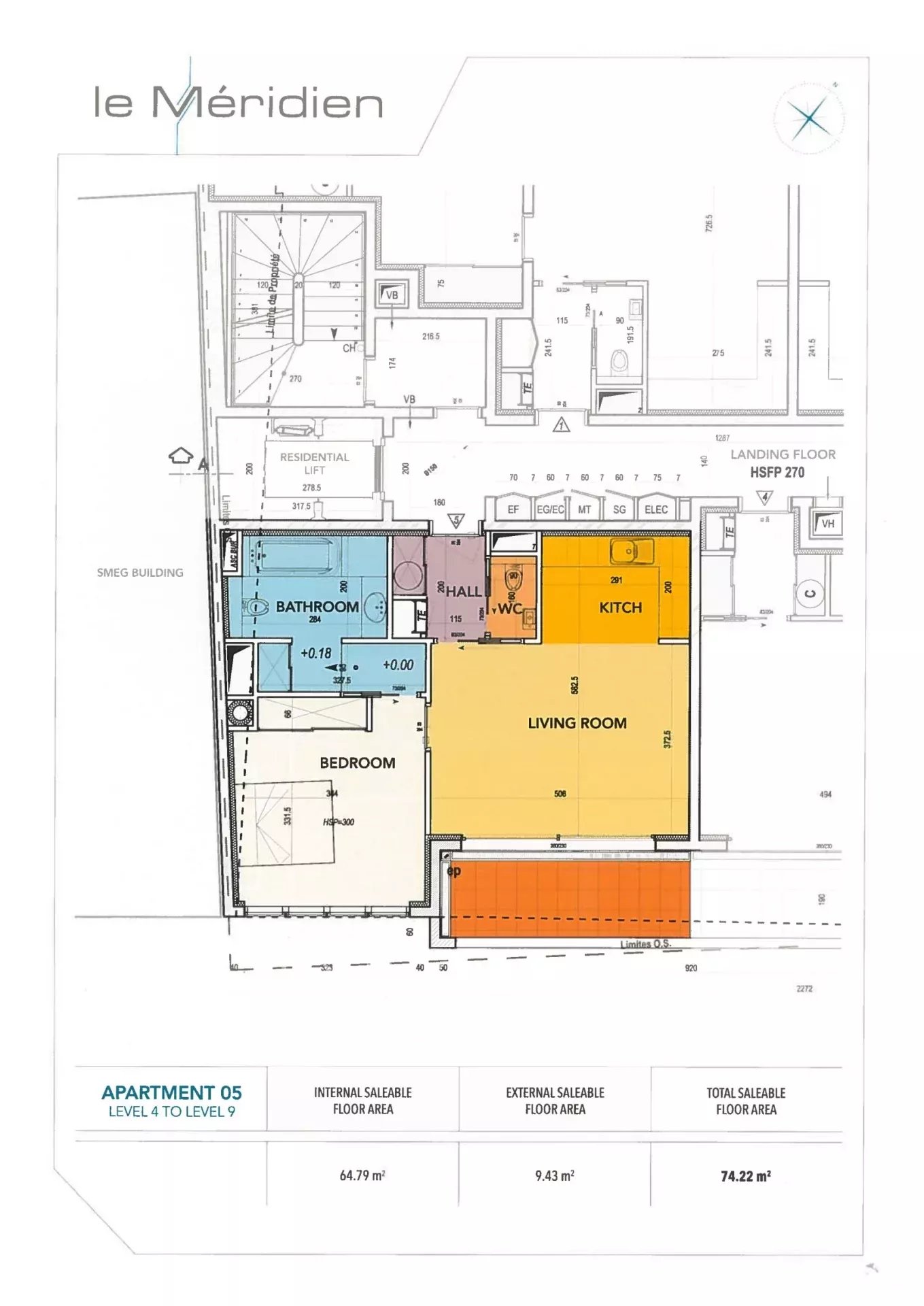
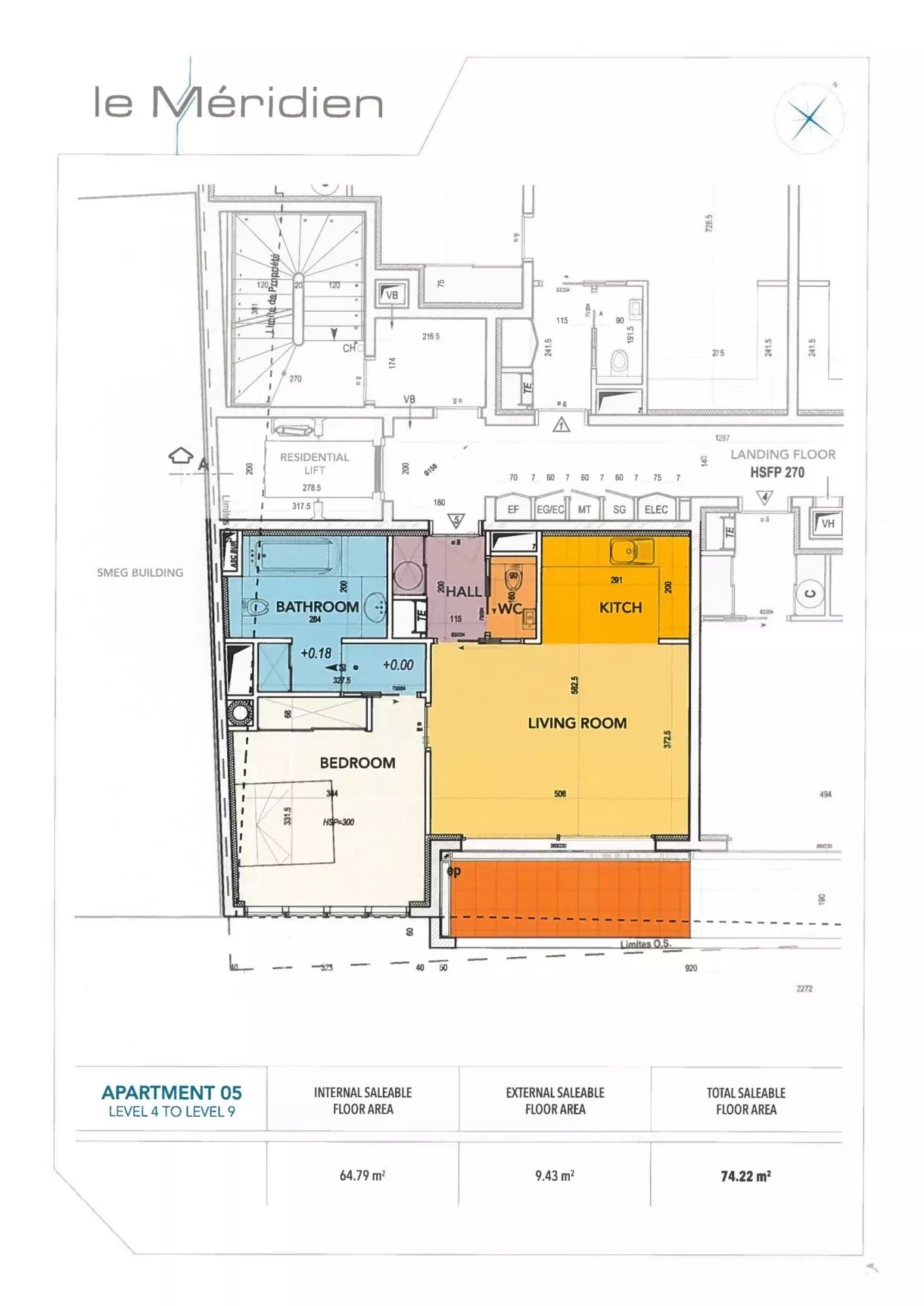
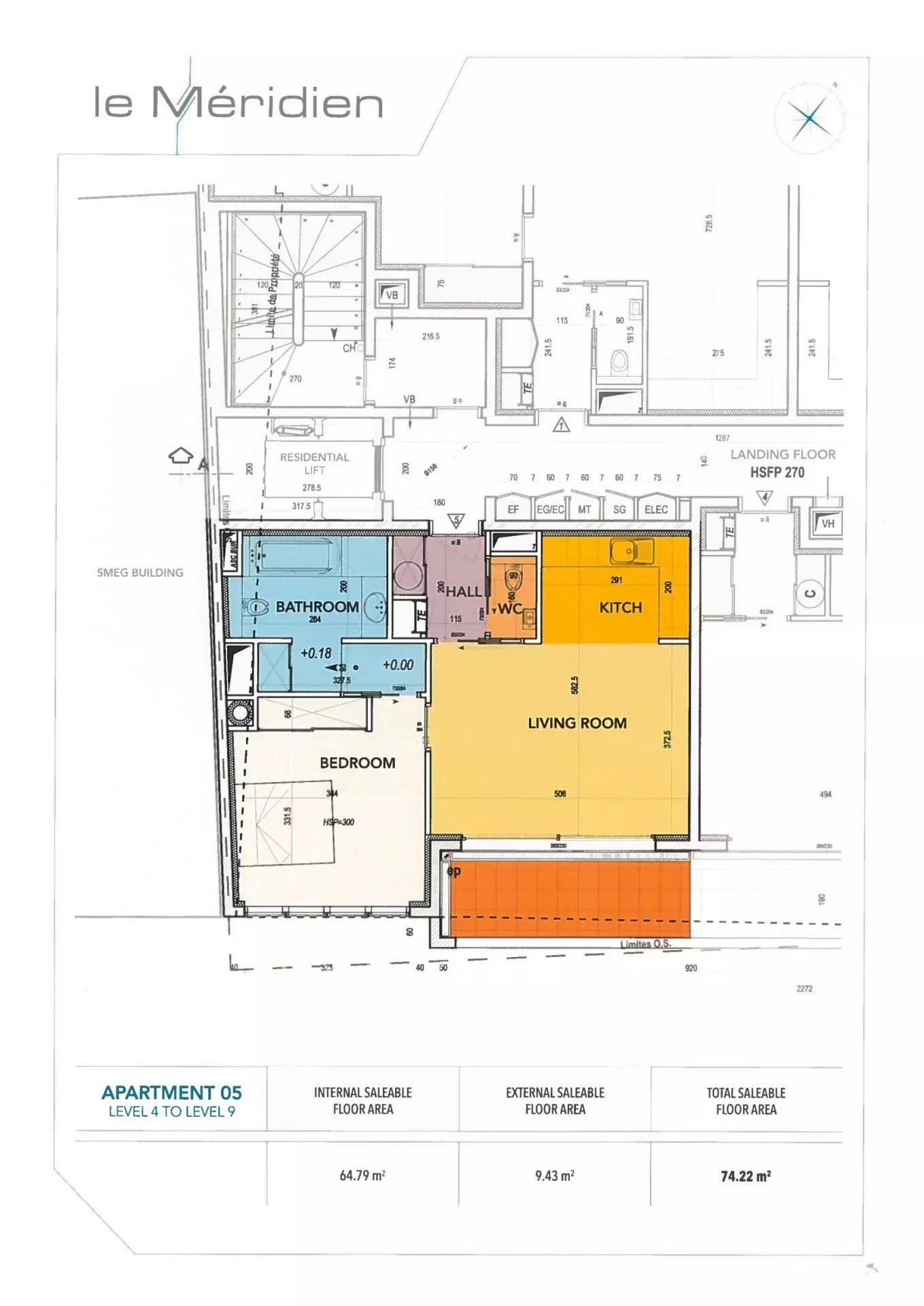
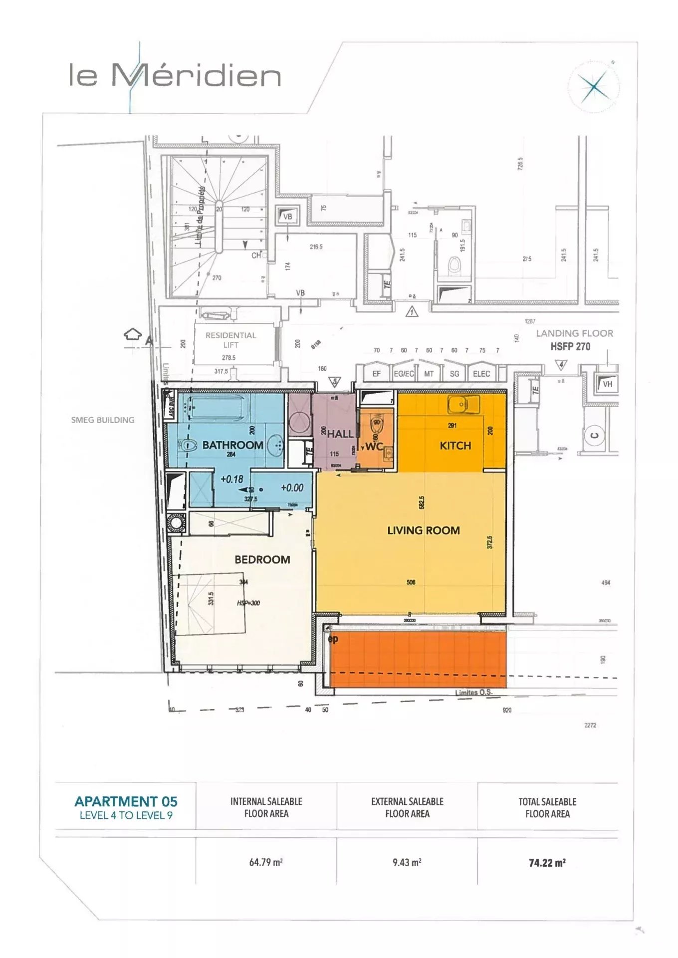
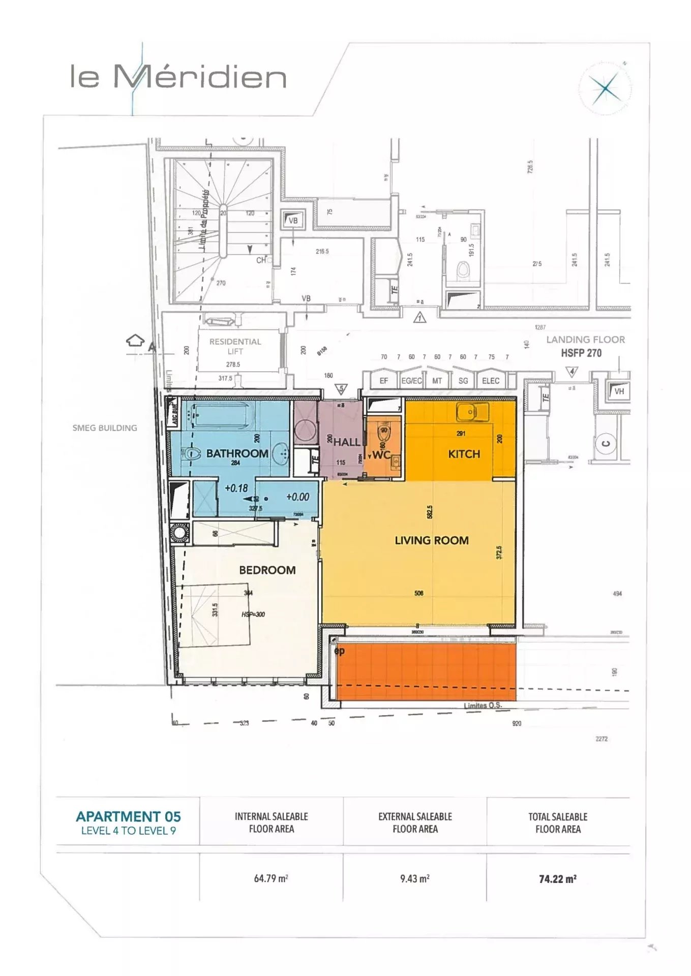
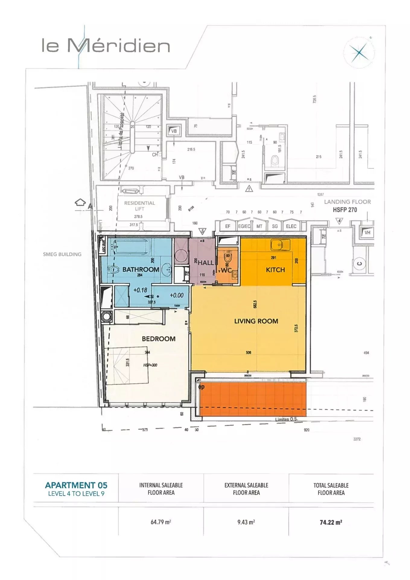
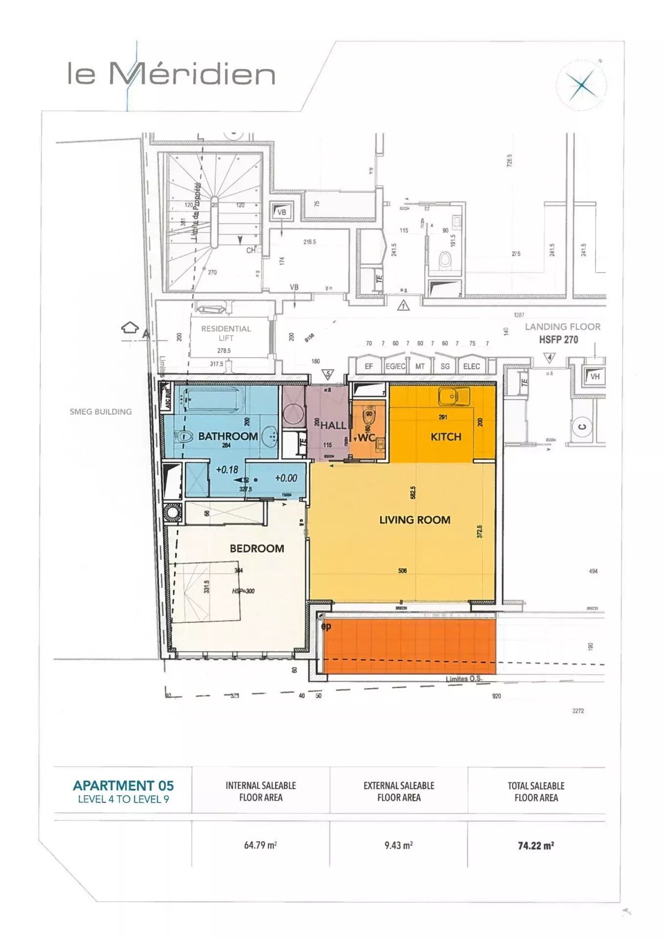
Surface area 65 m²65 m²1 Bedrooms1 Bedrooms2 Rooms2 RoomsFloor 9/9Floor 9/9View Unobstructed Harbor Unobstructed Harbor Balcony / Balconies 9 m²9 m²Property size 74 m²74 m²Parking / ParkingsParking

Fontvieille - Le Méridien - 2 rooms - New building

  • V1597MC
  • Sale
  • Apartment

Pleasant two-bedroom apartment on the top floor of a recent, sought-after residence, ideal for both investment and pied-à-terre. Very bright, it benefits from an unobstructed view of the port of Fontvieille, which can be appreciated from the balcony.

The apartment comprises a kitchen opening onto the living room, a guest toilet and an en suite bedroom.

A rare asset: the neighboring apartment, almost identical in configuration, is also available for sale. Together, they offer an exceptional opportunity to create a spacious 3 to 4 room apartment, with generous volumes and open views, in a recent building in Fontvieille.

luxury real estate agency MONACO
  • JOHN TAYLOR & SON
    20 boulevard des Moulins
  • 98000 MONACO
  • Monaco, PRINCIPALITY OF MONACO

John Taylor
Online enquiry

* Compulsory fields
The information collected is necessary to process your request. At any time, you have the right to access, modify and delete your data.