• Plot of land for sale Restelo, Lisbon, Portugal
    2 995 000 EUR

6 Bedrooms6 Bedrooms7 Bathrooms7 BathroomsGarage / GaragesGarage

Plot of Land | 1.379 m² | Architectural Project for 2 houses | Restelo, Lisboa

  • V0400LI
  • Sale
  • Plot of land

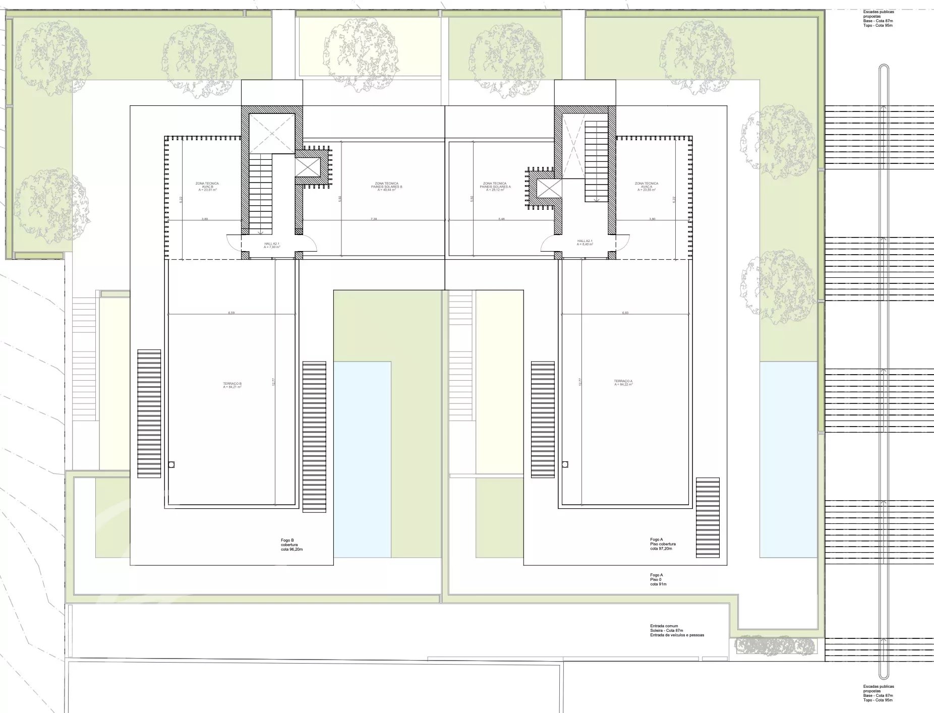
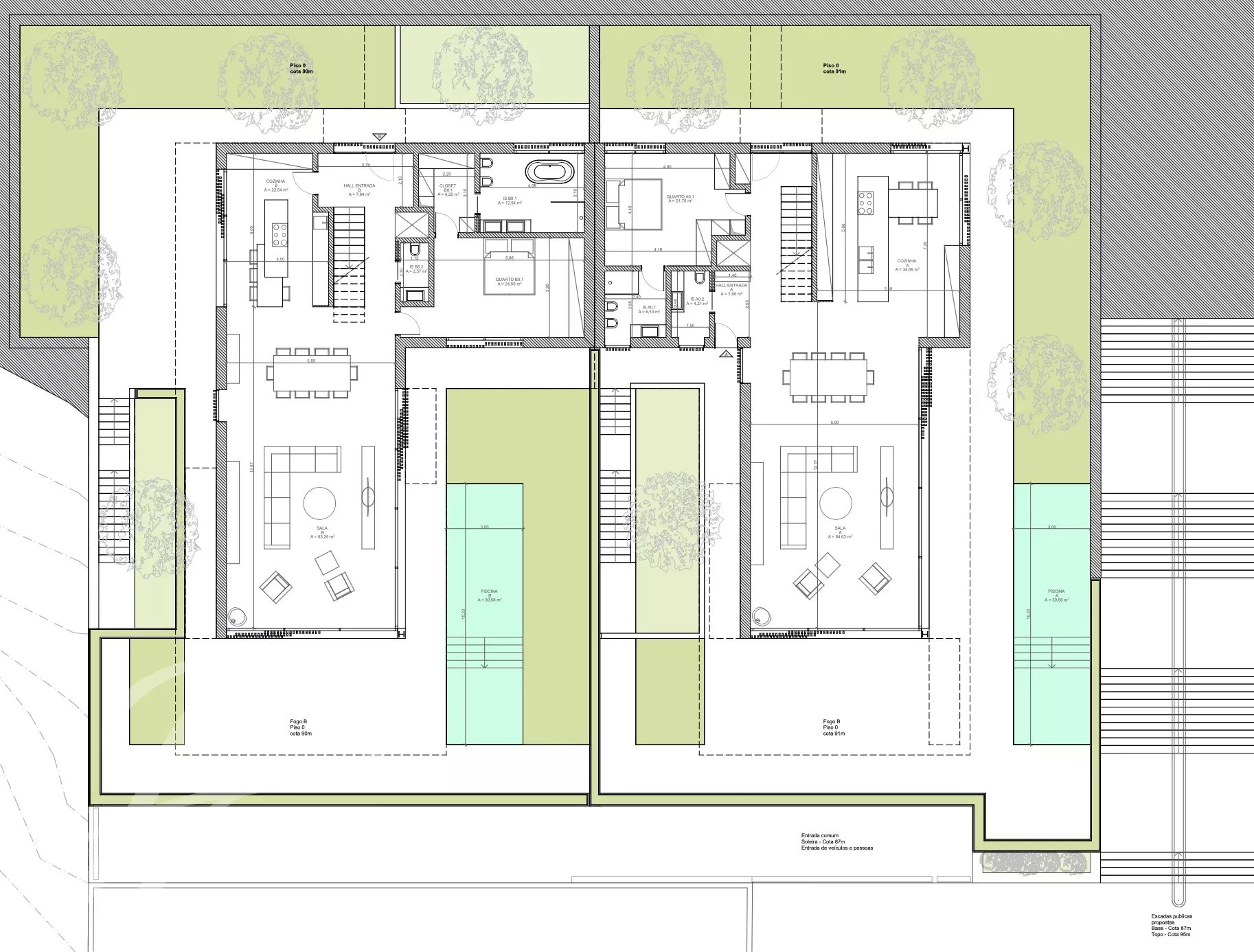
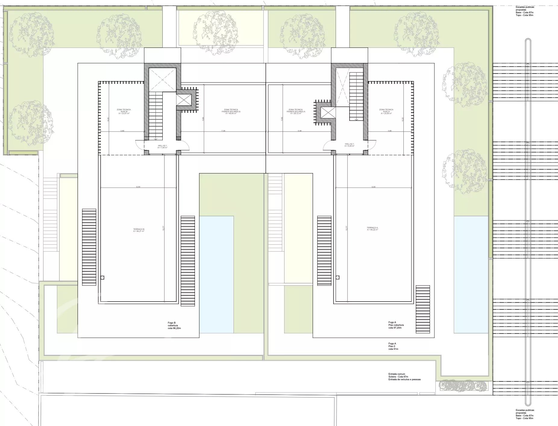
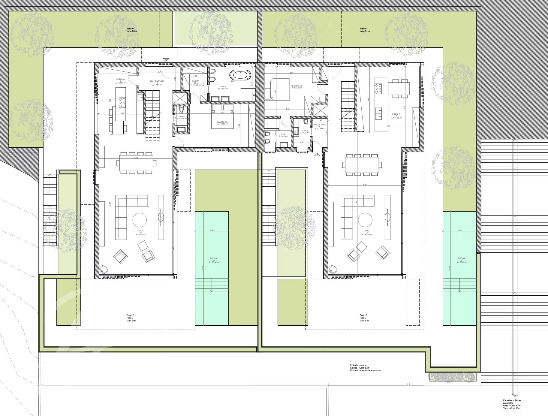
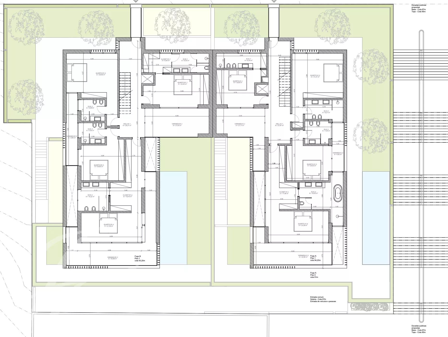
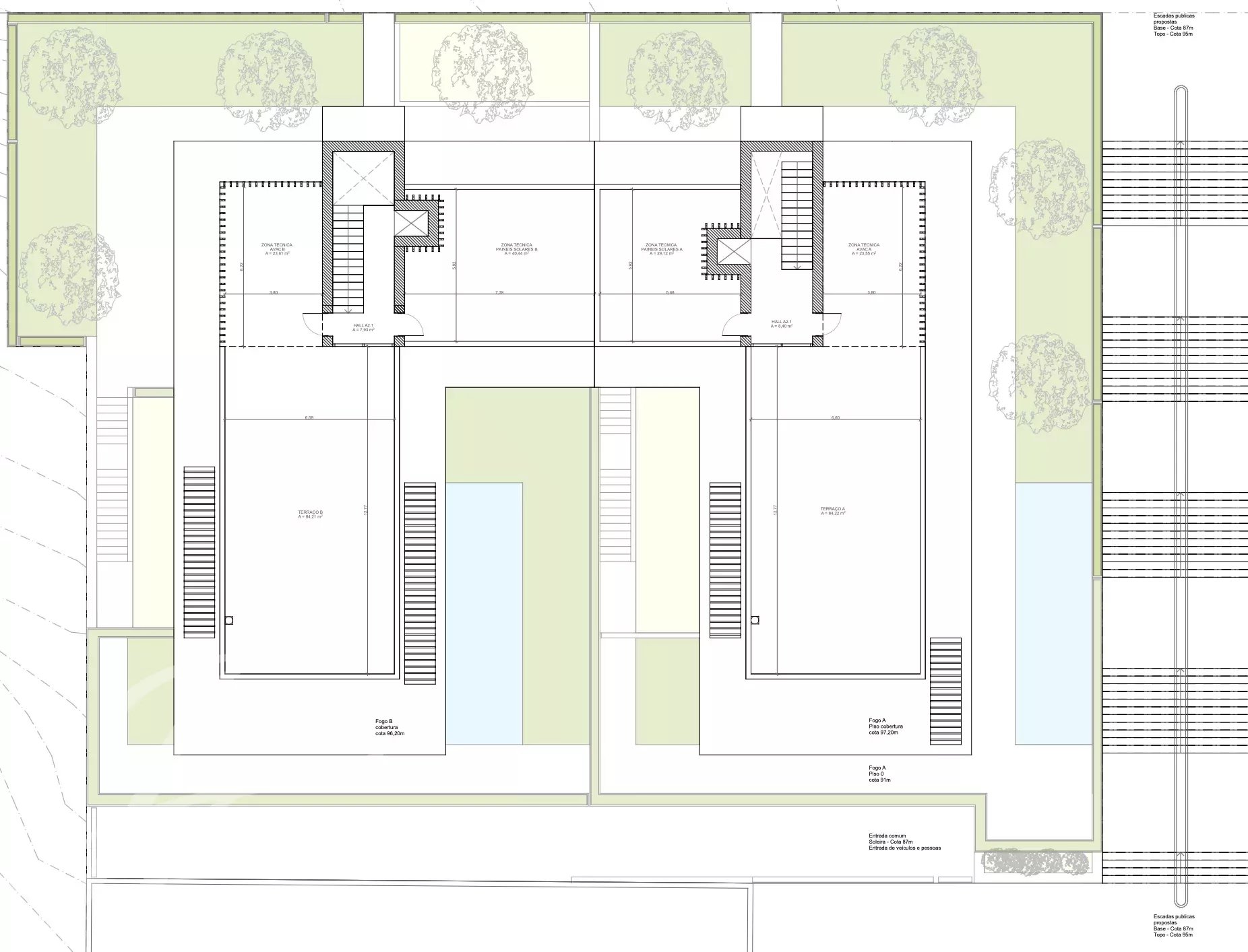
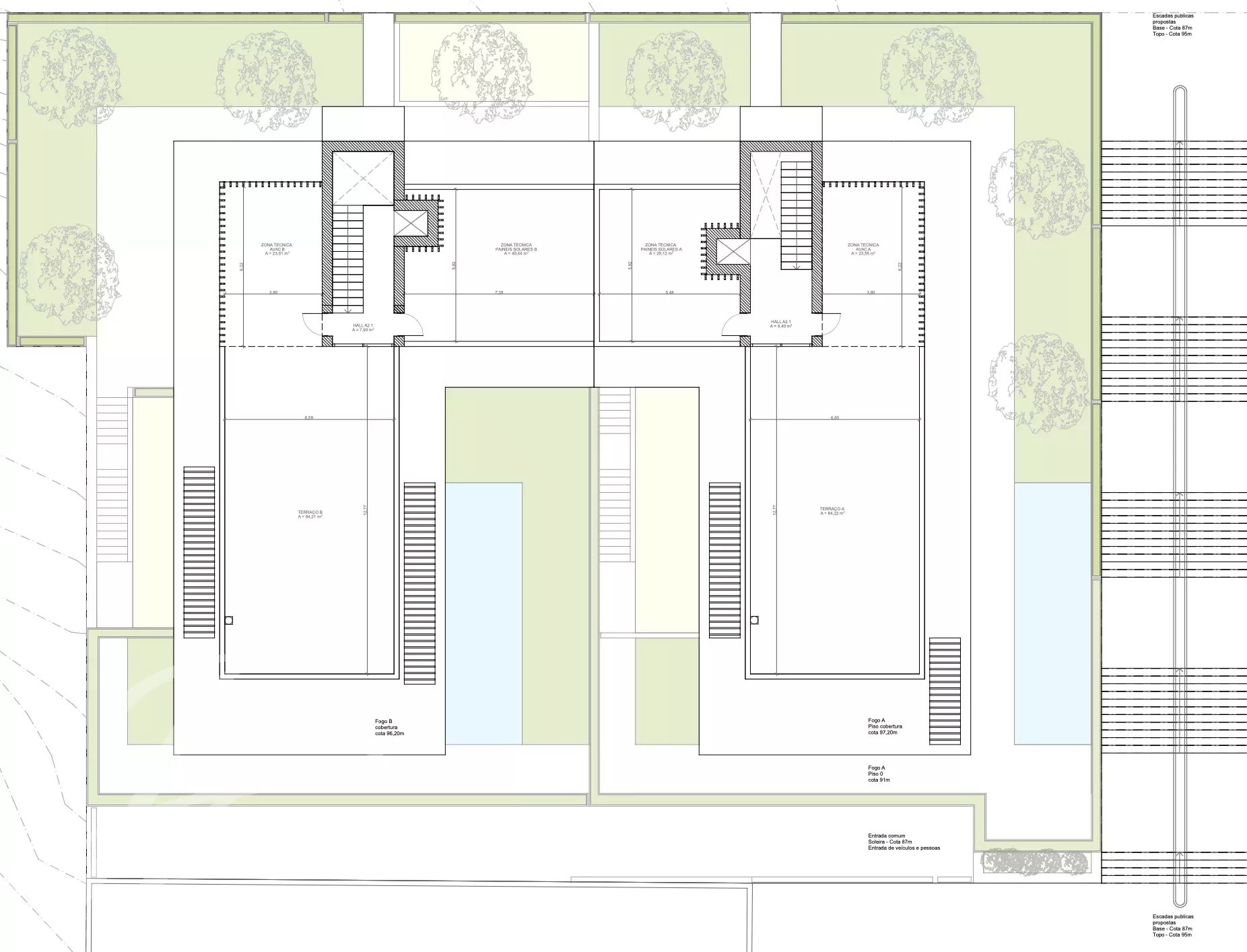
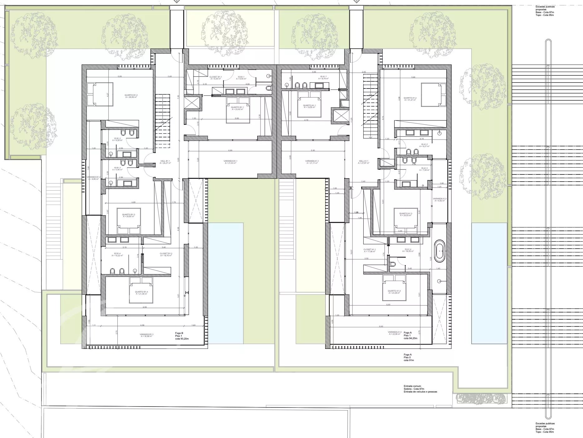
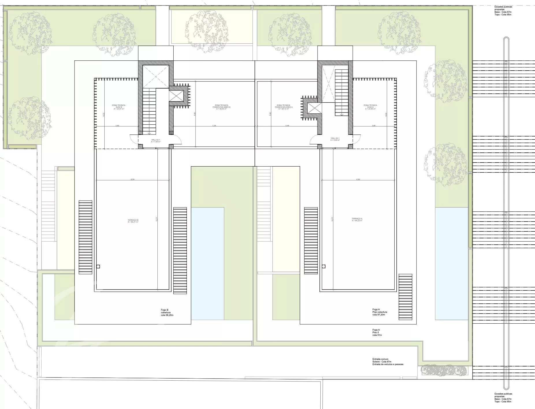
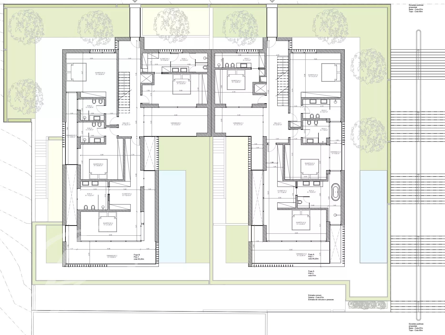
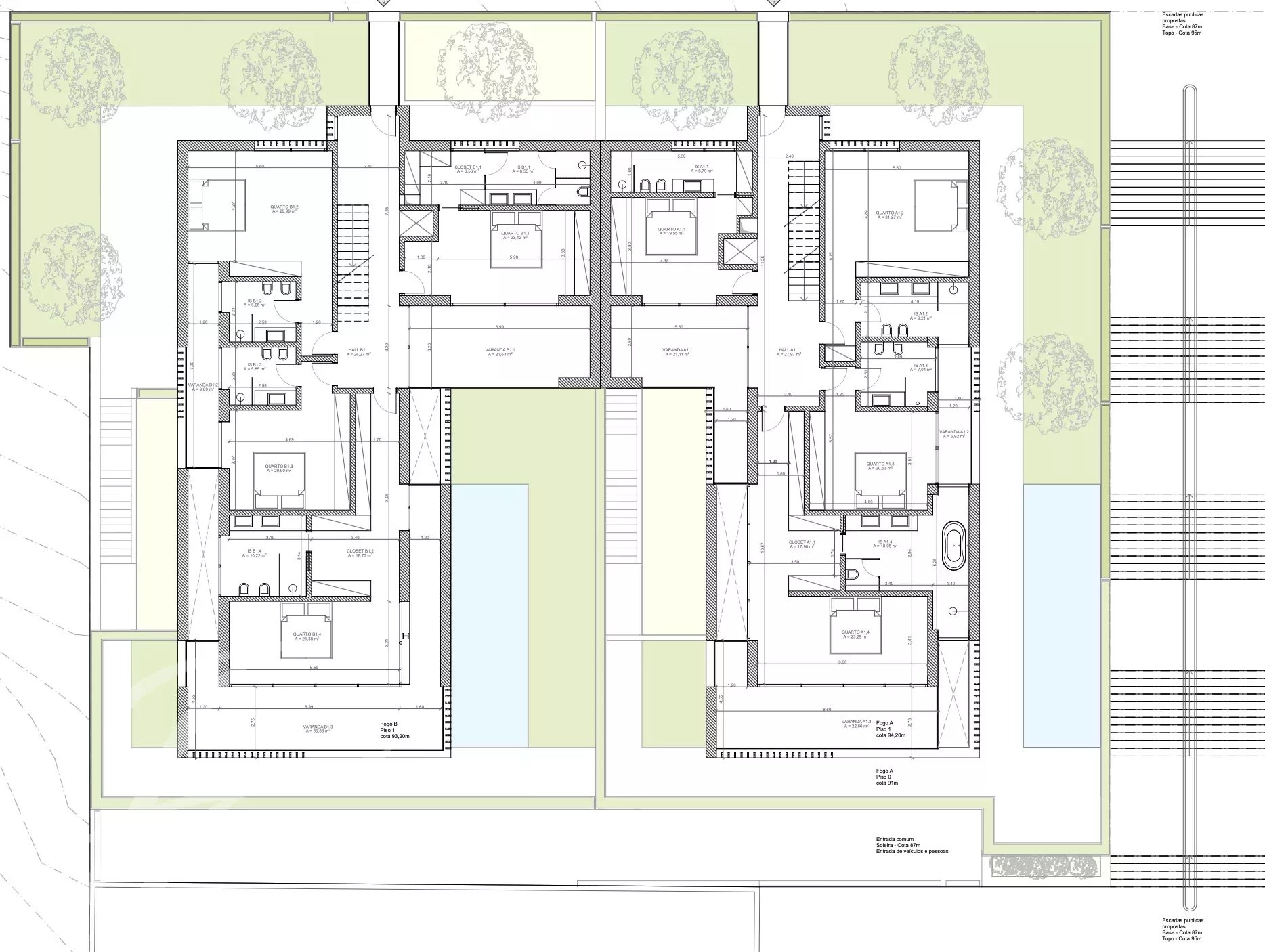
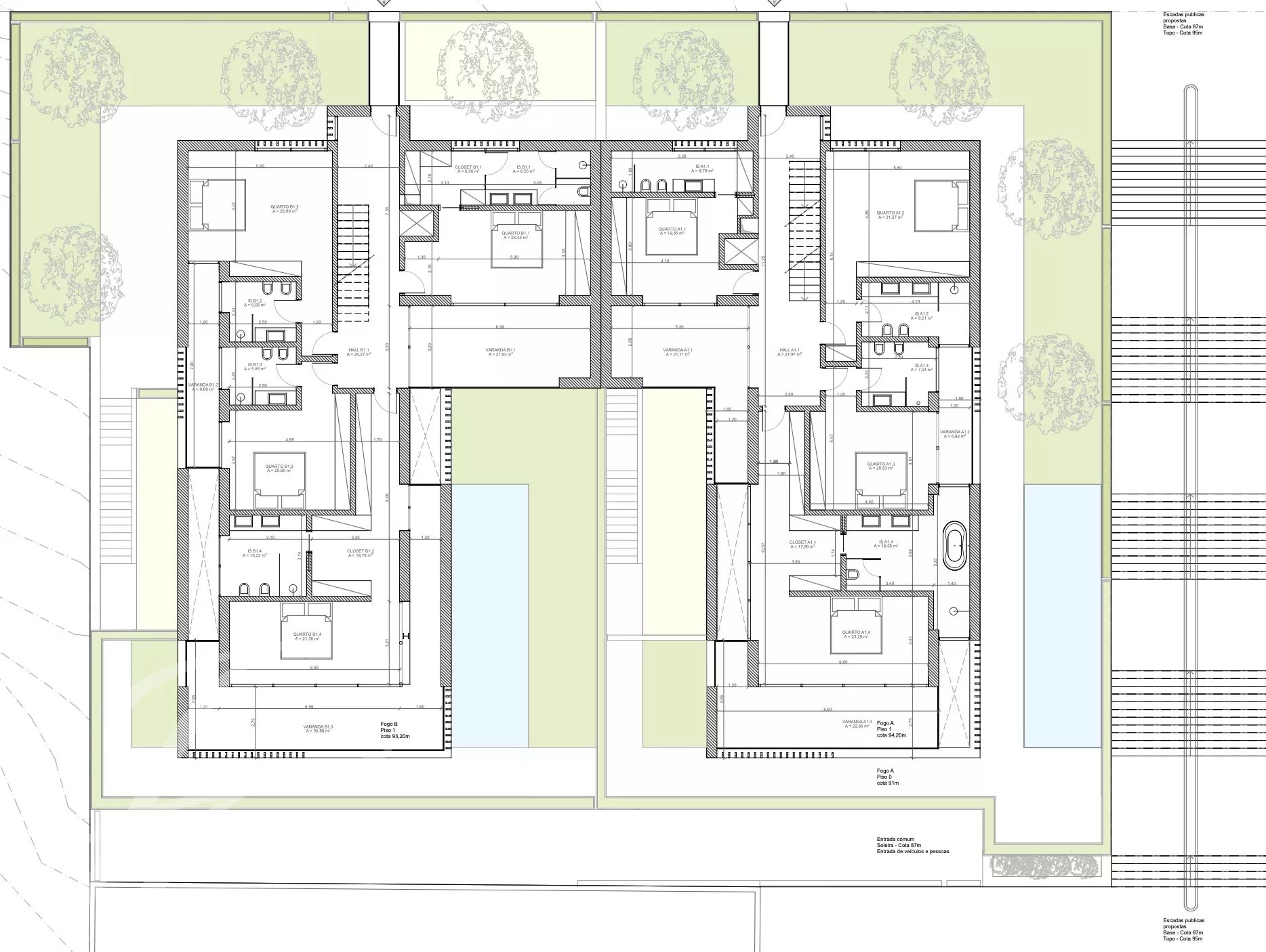
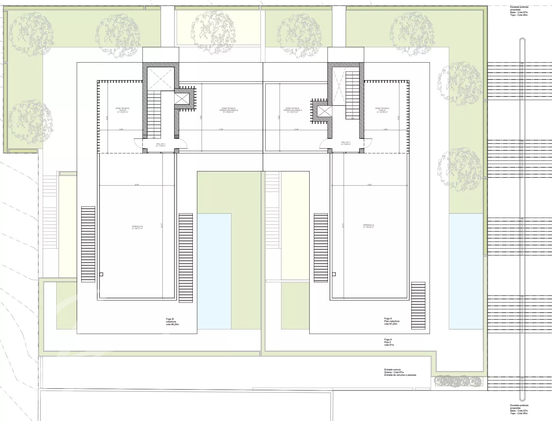
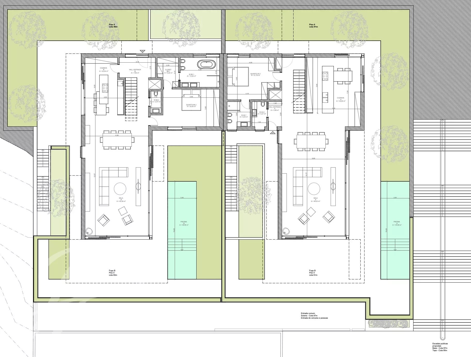
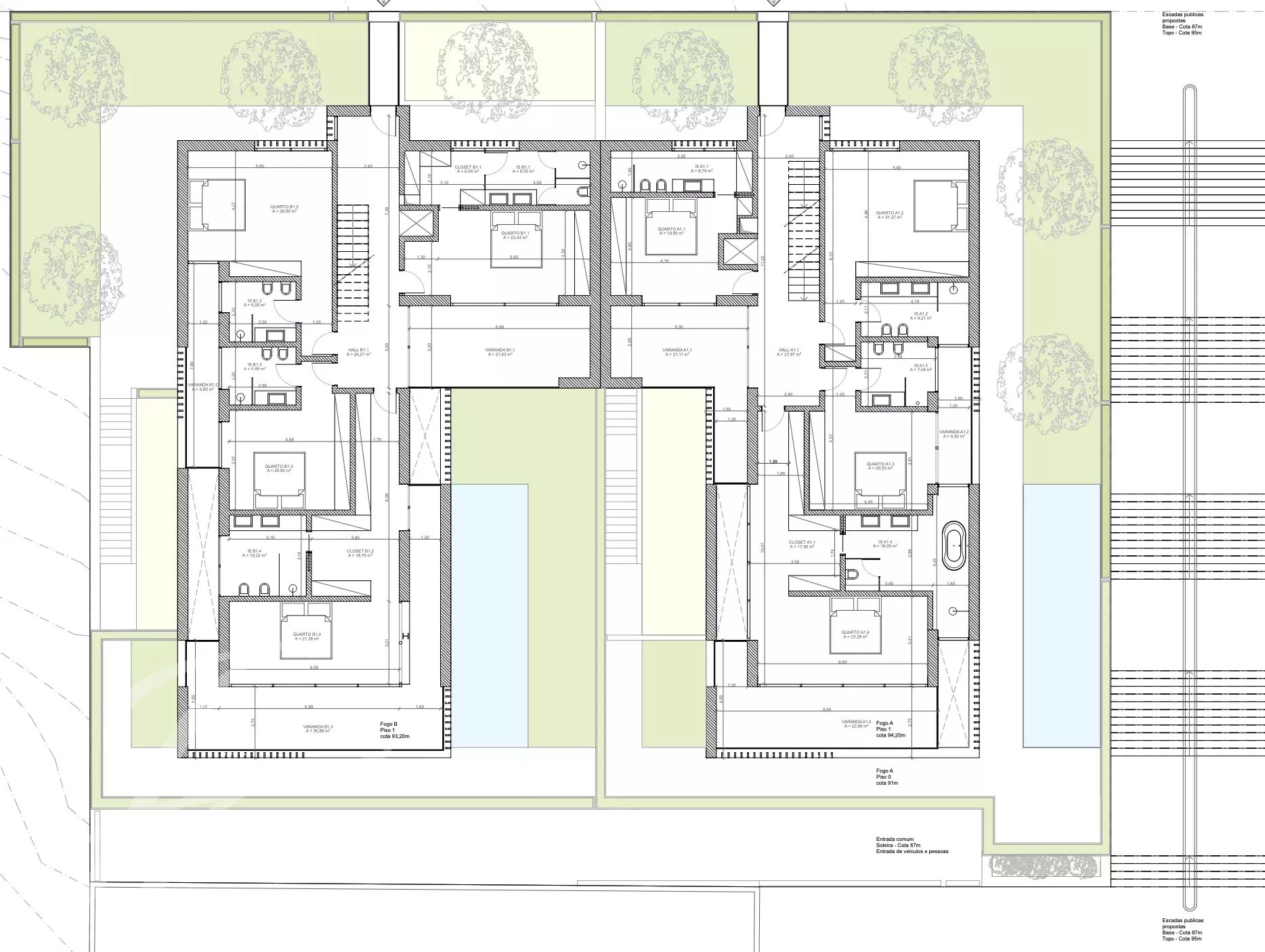
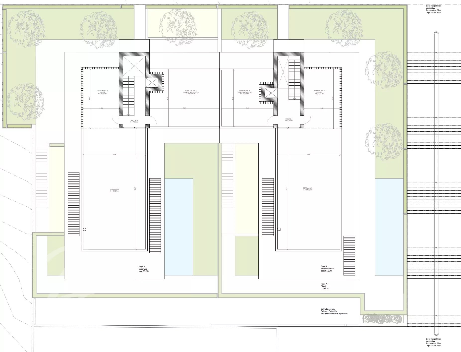
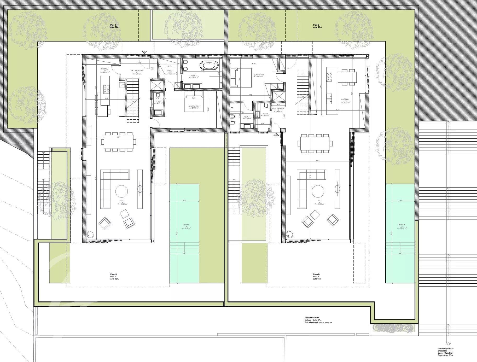
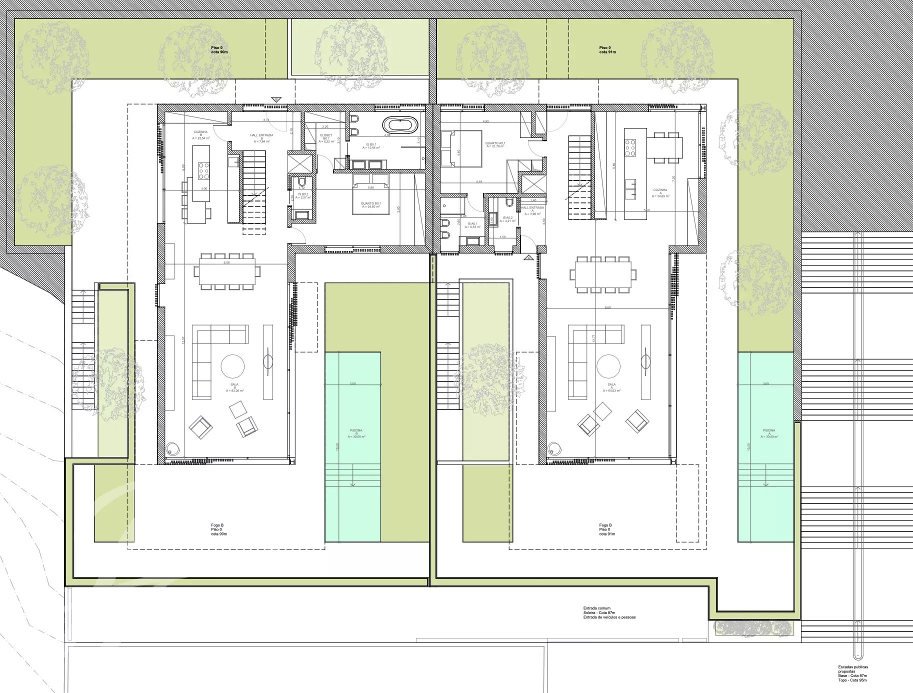
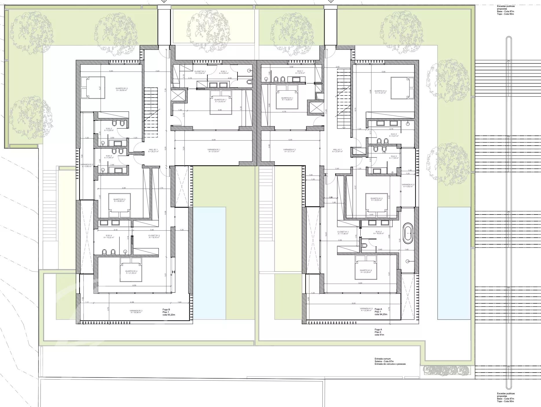
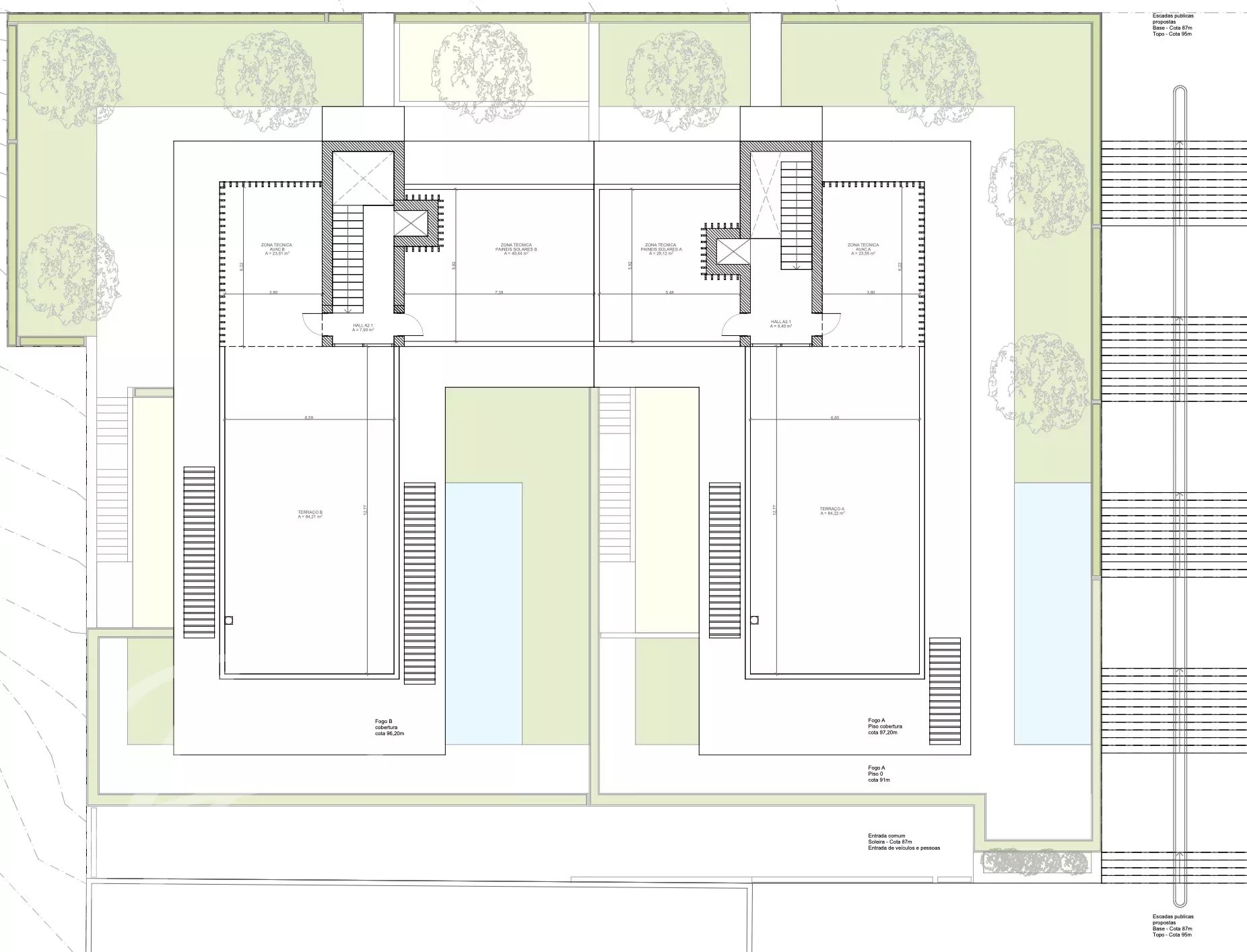
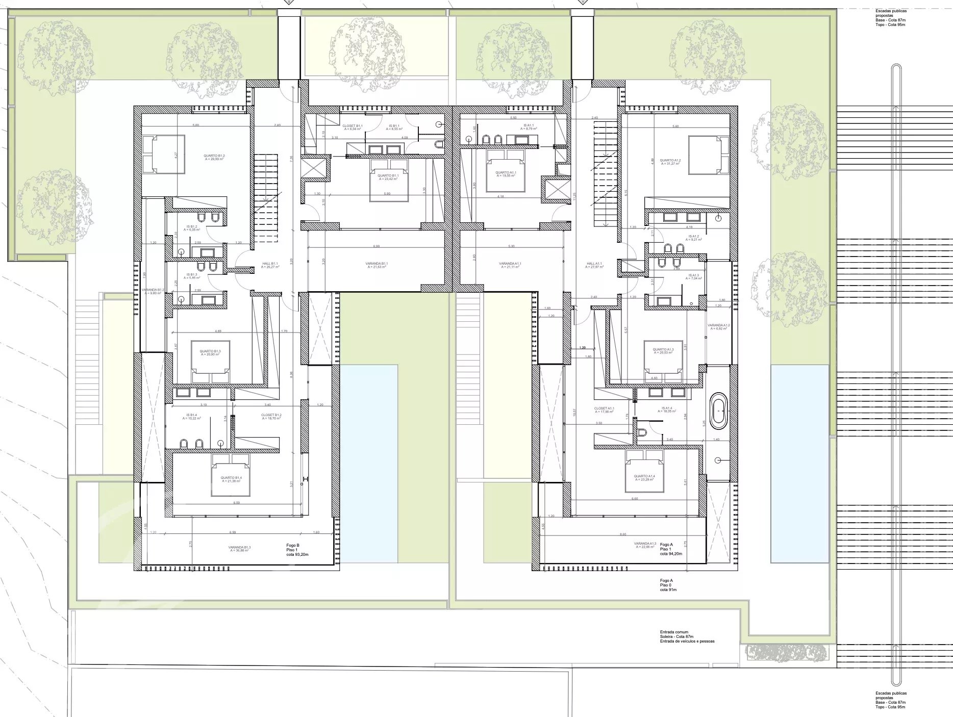
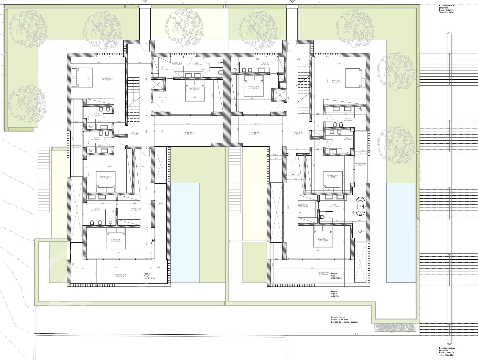
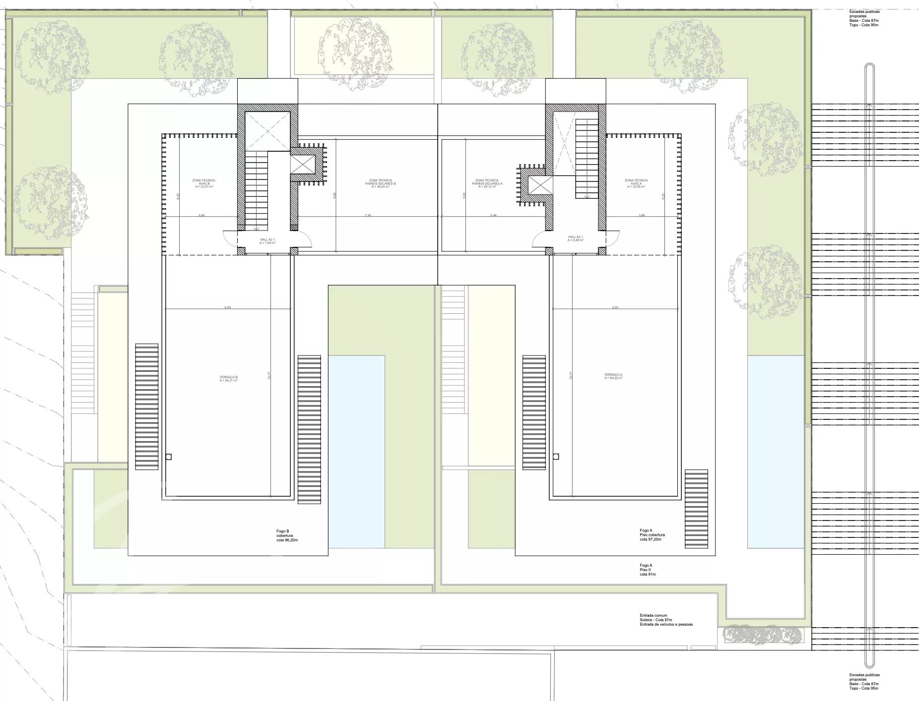
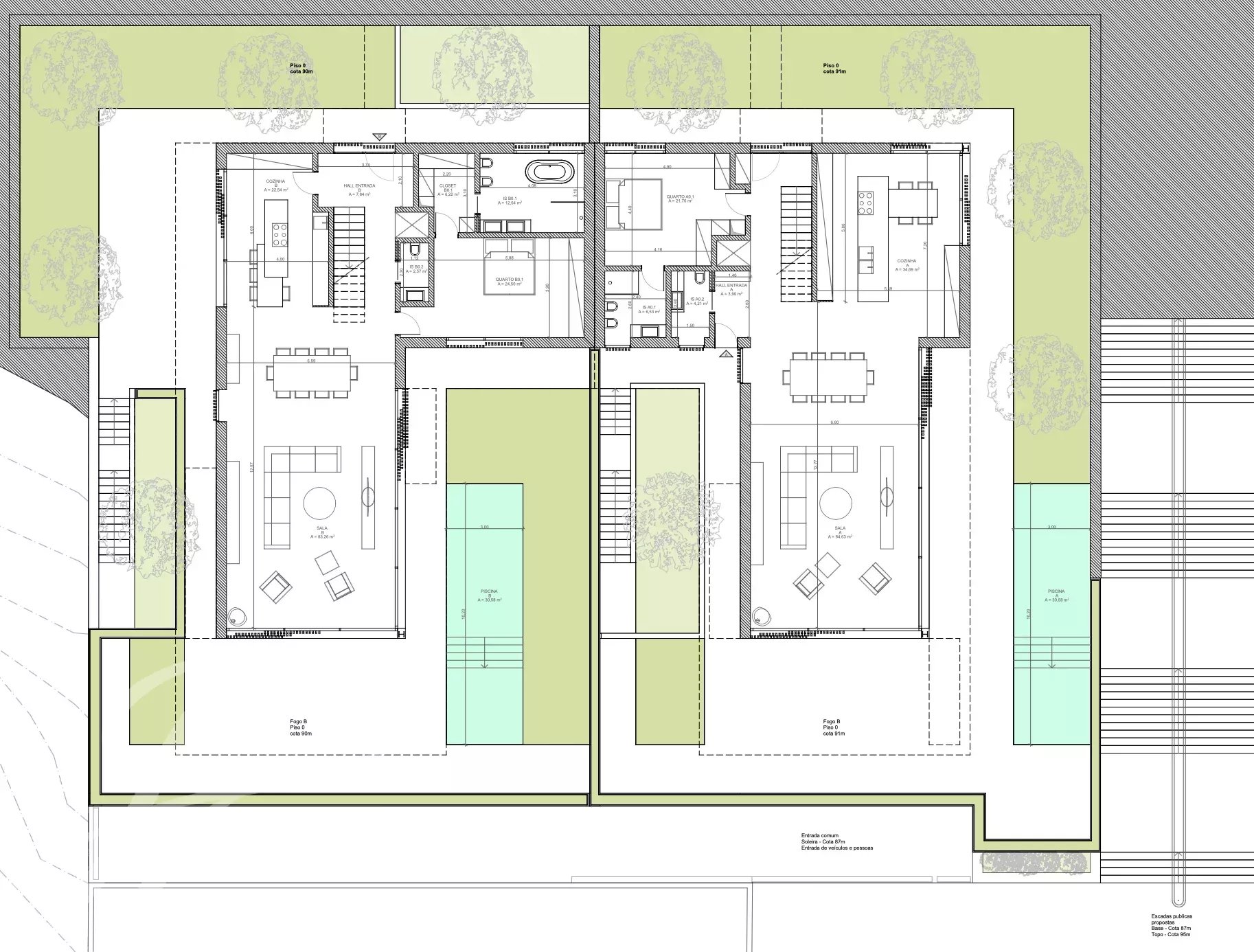
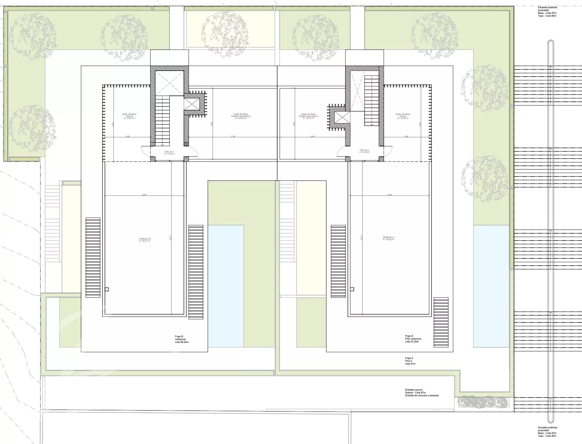
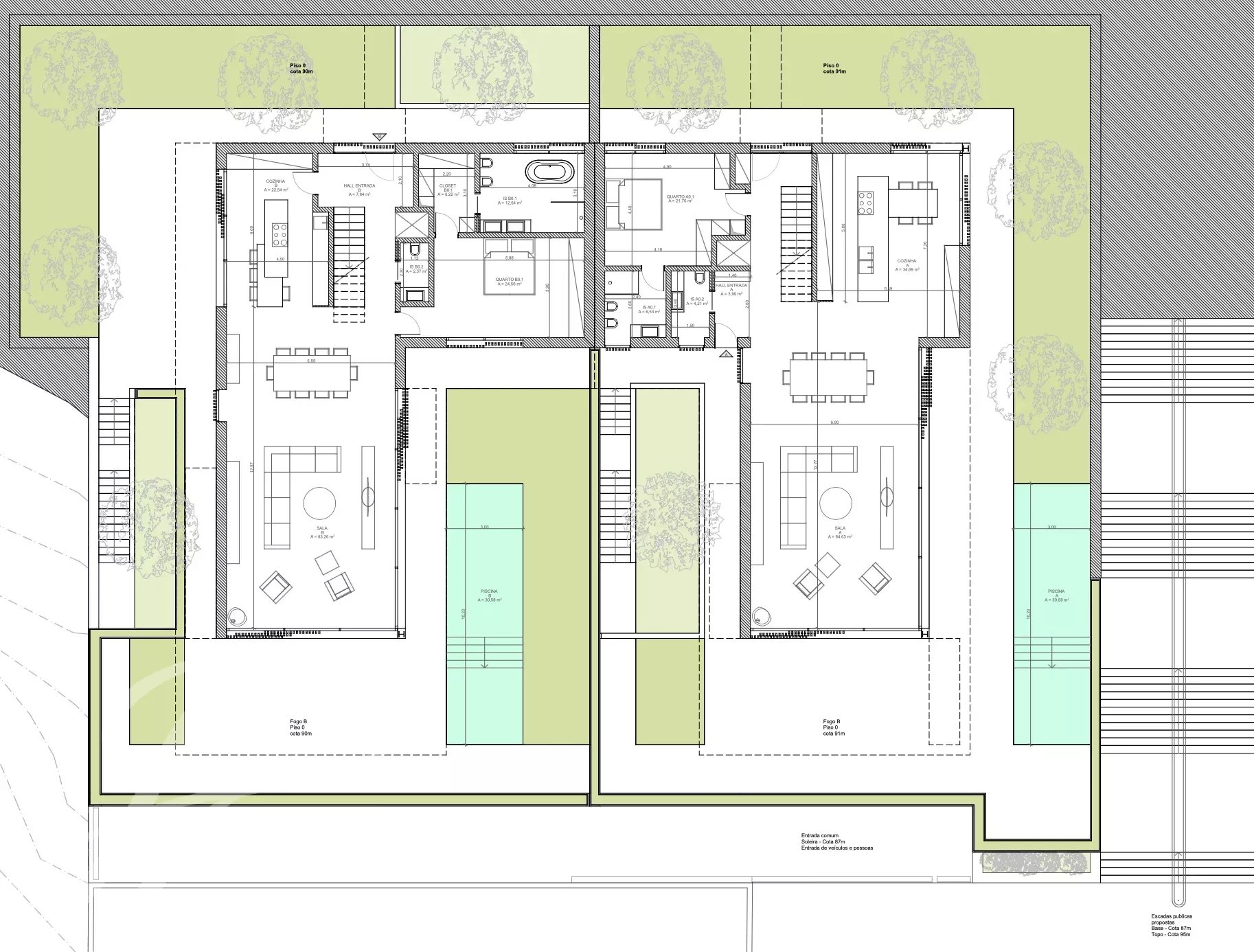
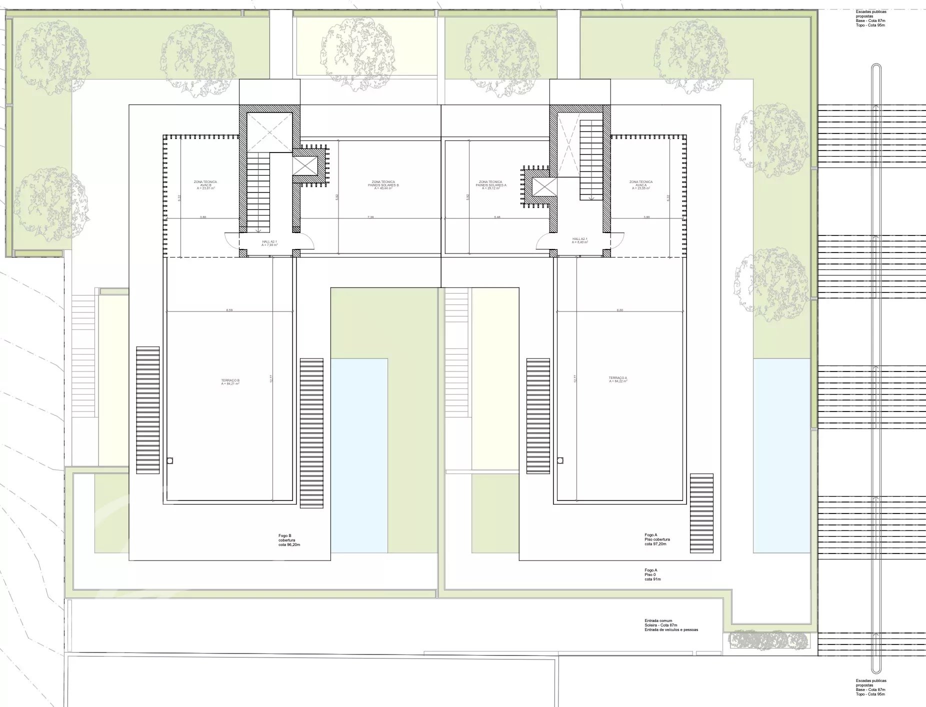
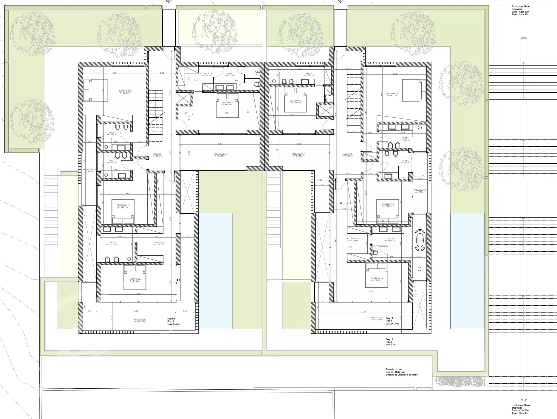
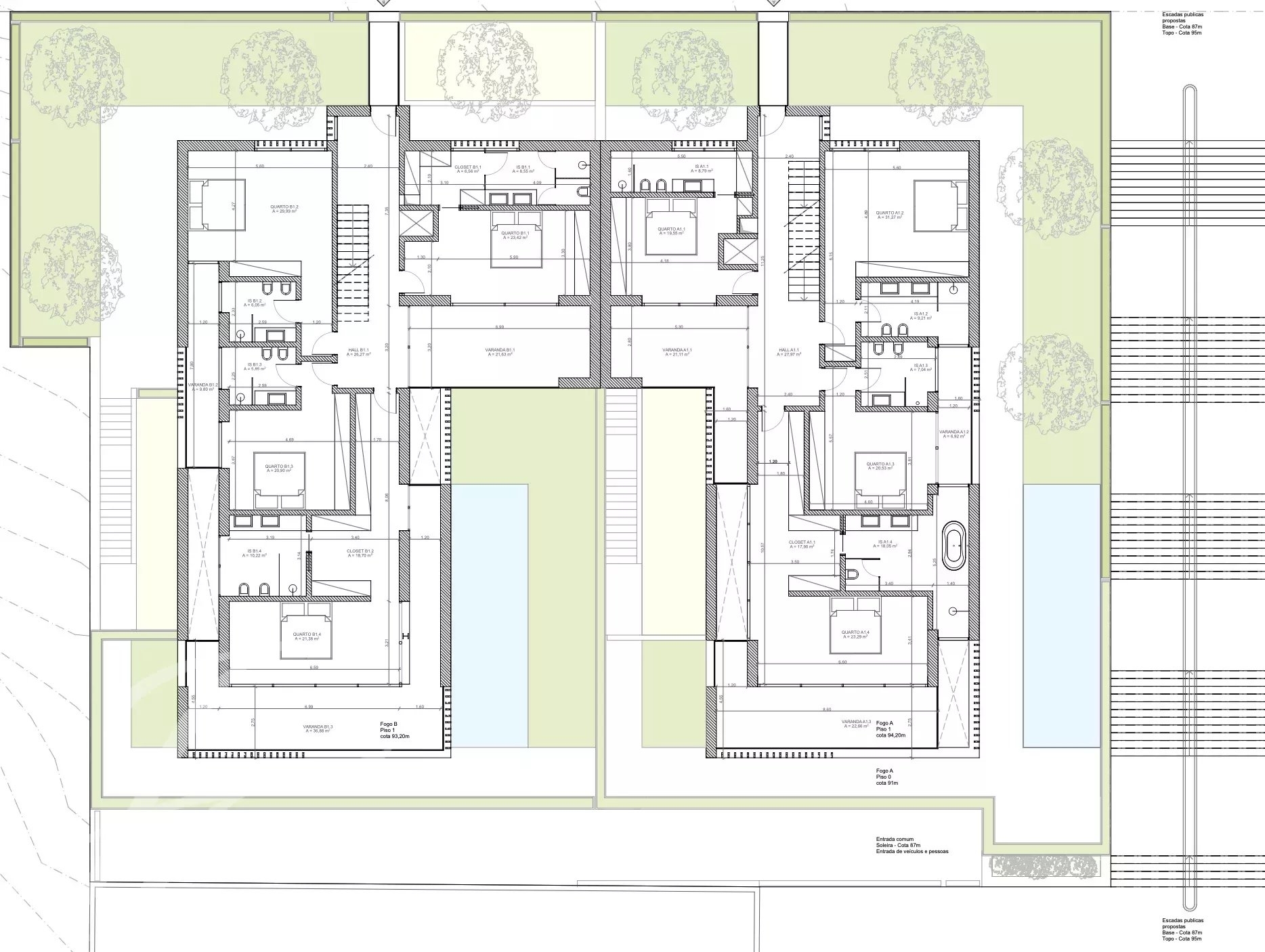
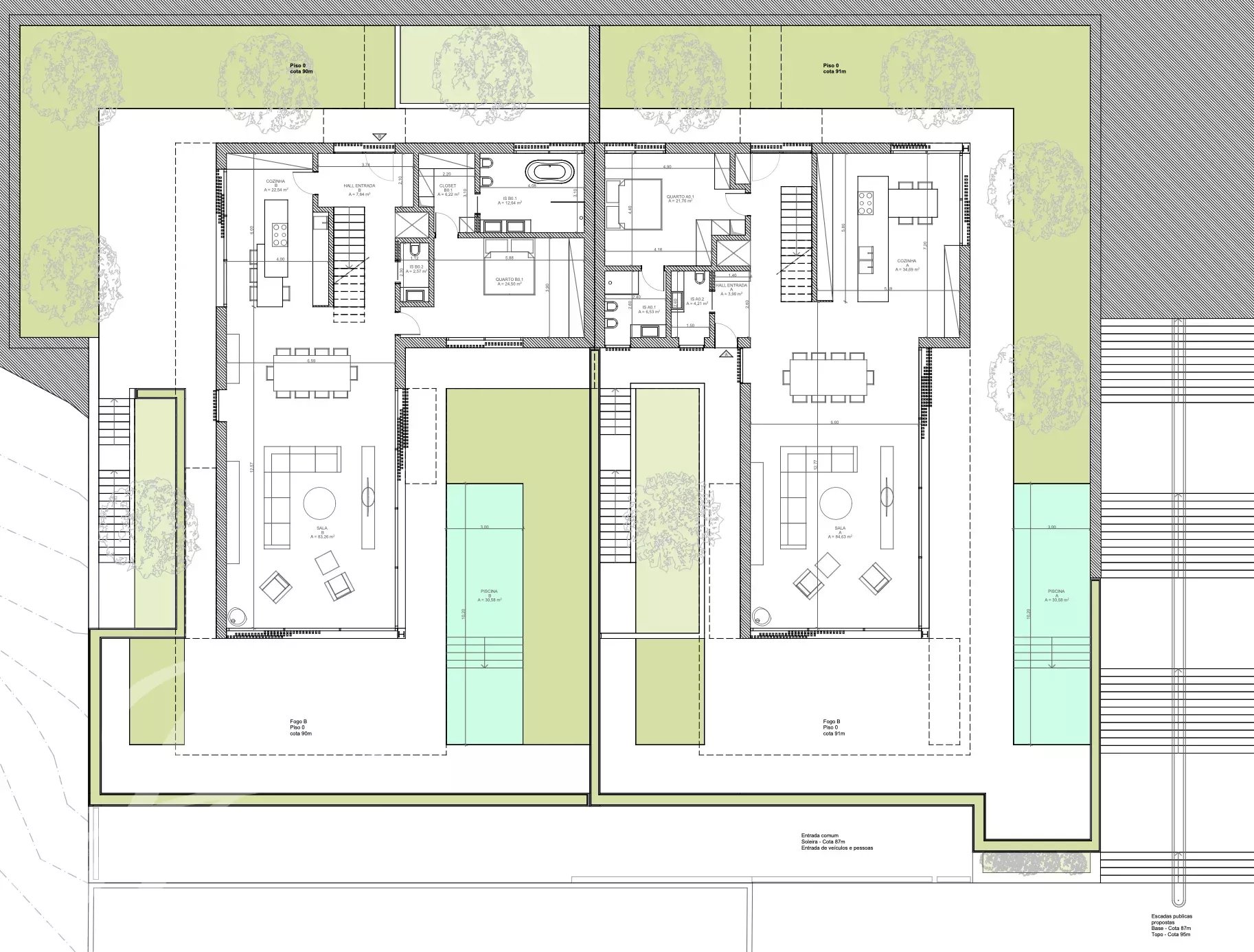
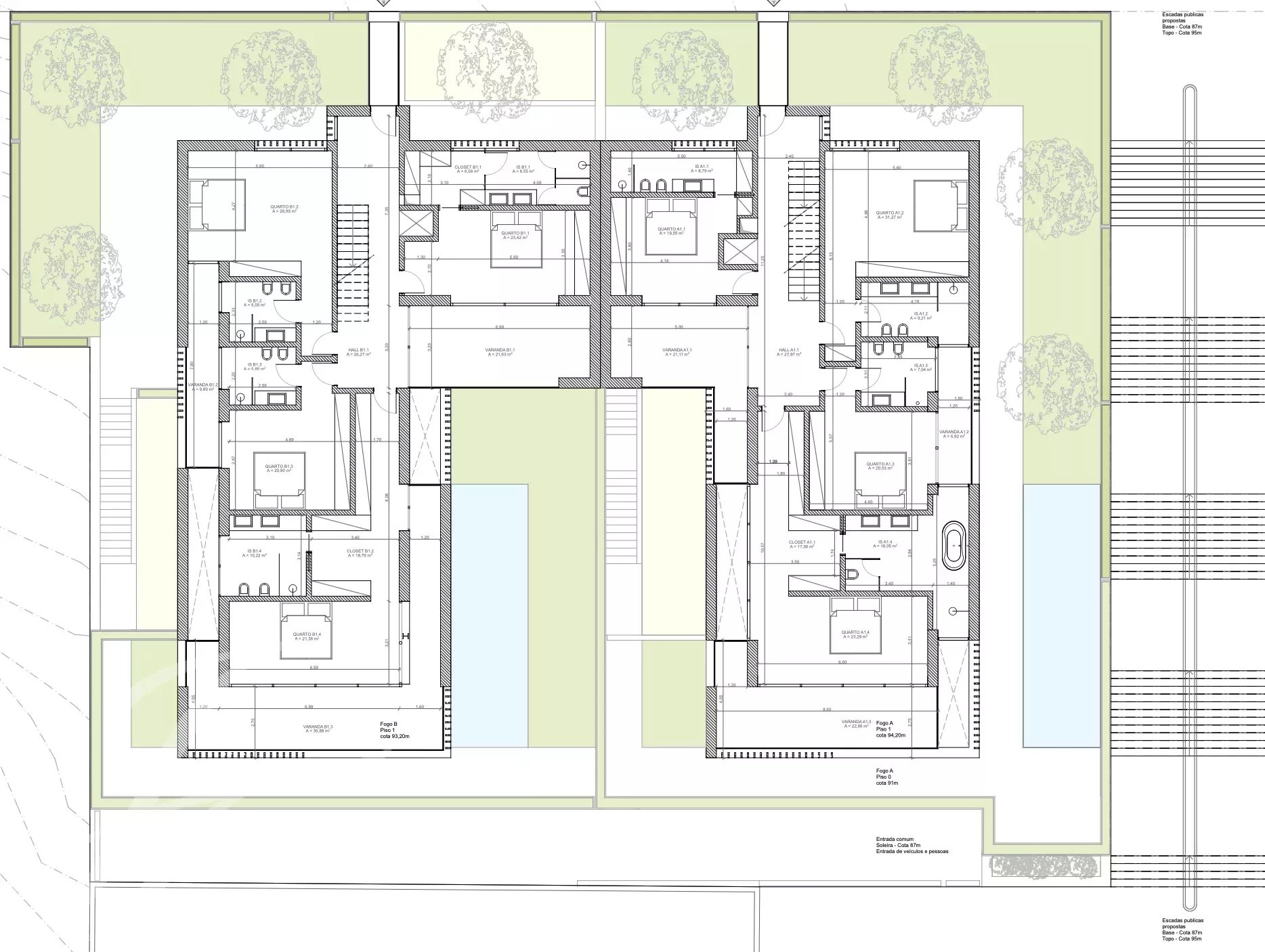
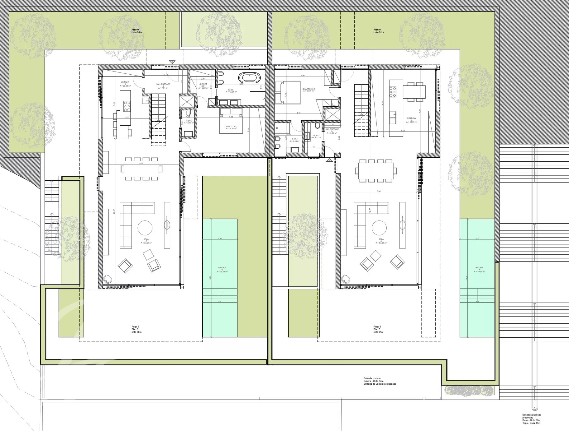
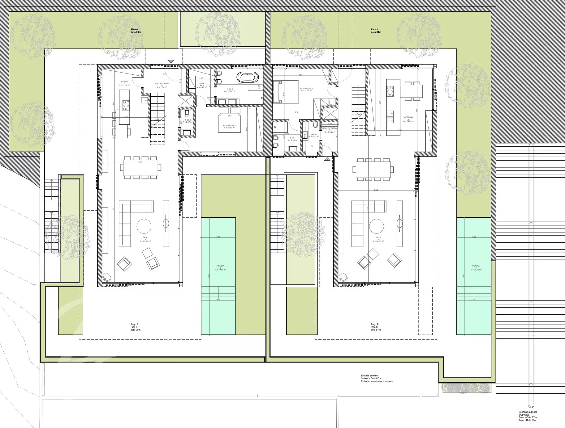
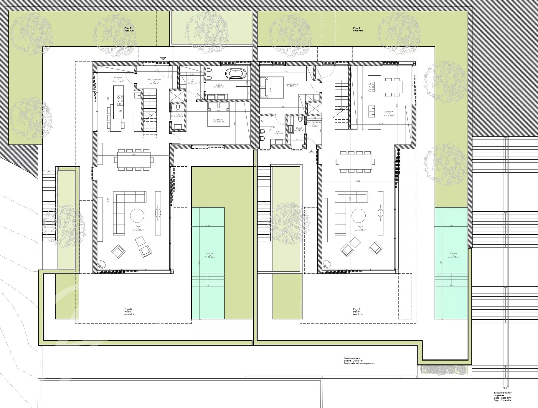
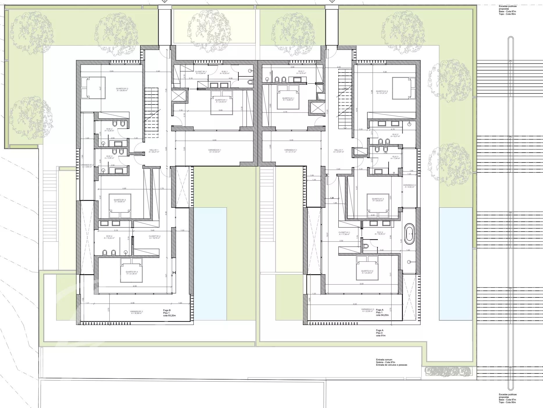
Plot of land measuring 1,379 sqm, with an approved architectural project offering the flexibility to build one or two single-family residences. The currently approved solution comprises two semi-detached villas, corresponding to two independent properties, set within a single plot.

Under the applicable zoning regulations, either option allows for a total above-ground gross construction area of 965 sqm and a building footprint of 495 sqm, making this property a unique opportunity for the development of an exclusive residential project, whether for private use, investment, or high-end development.

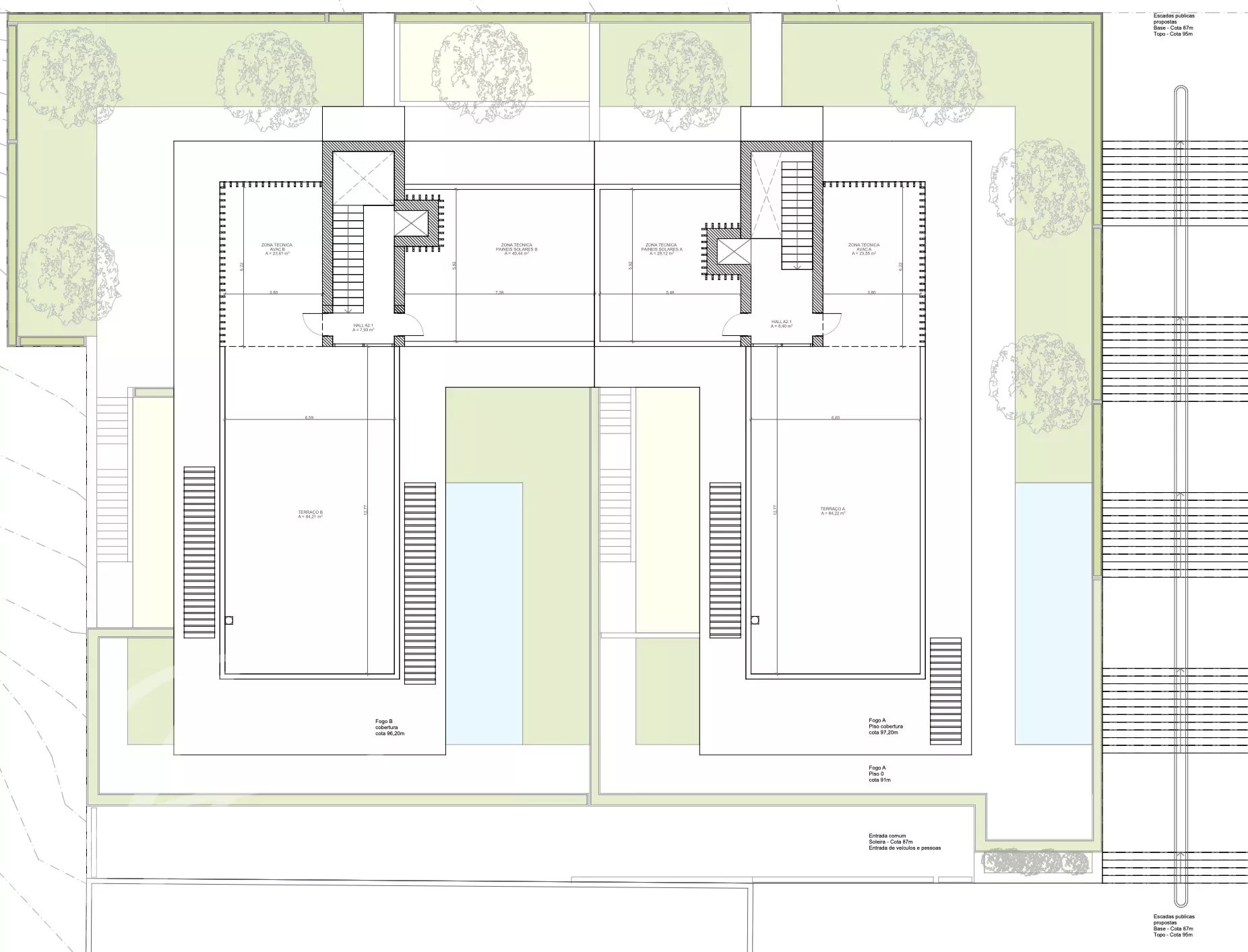
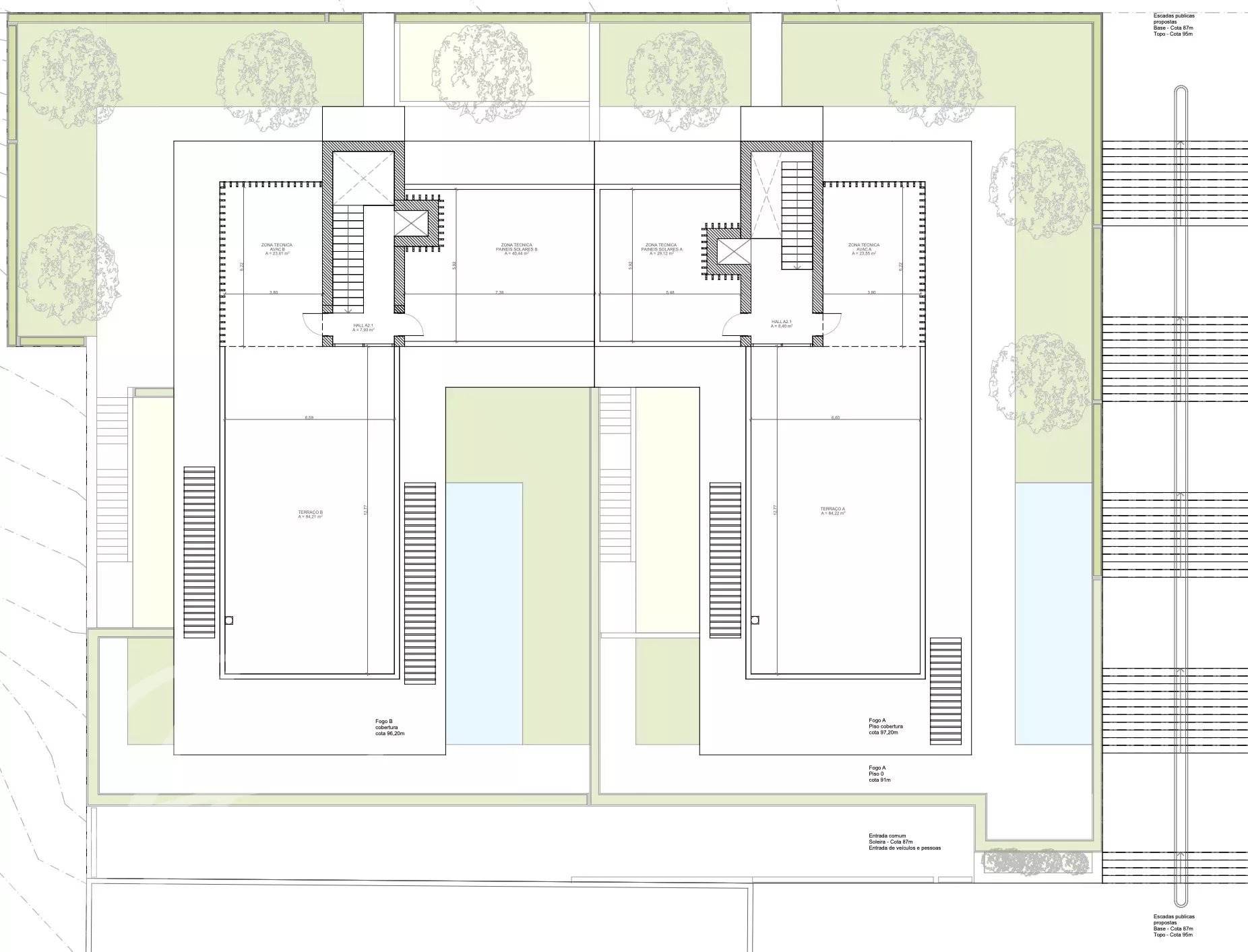
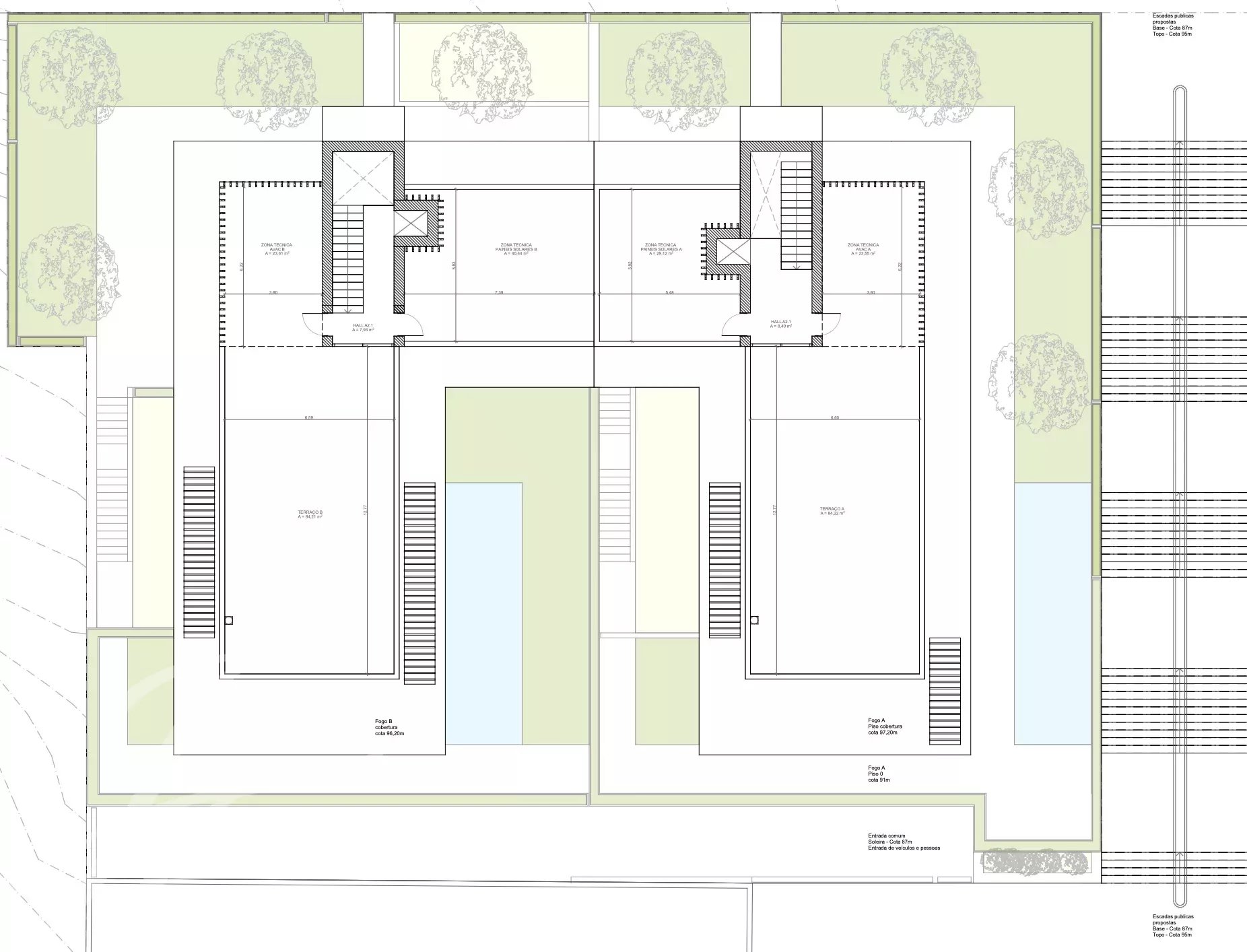
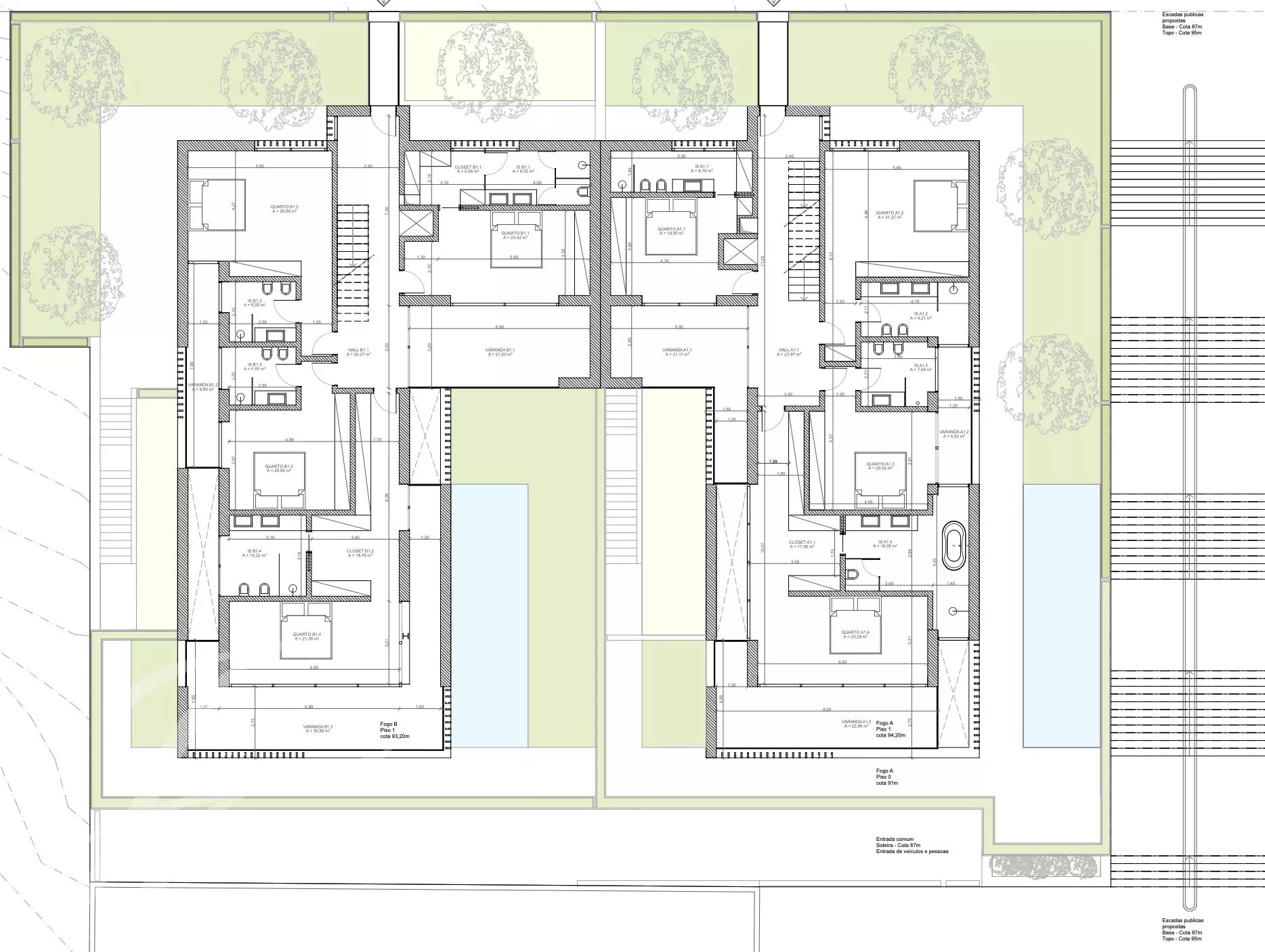
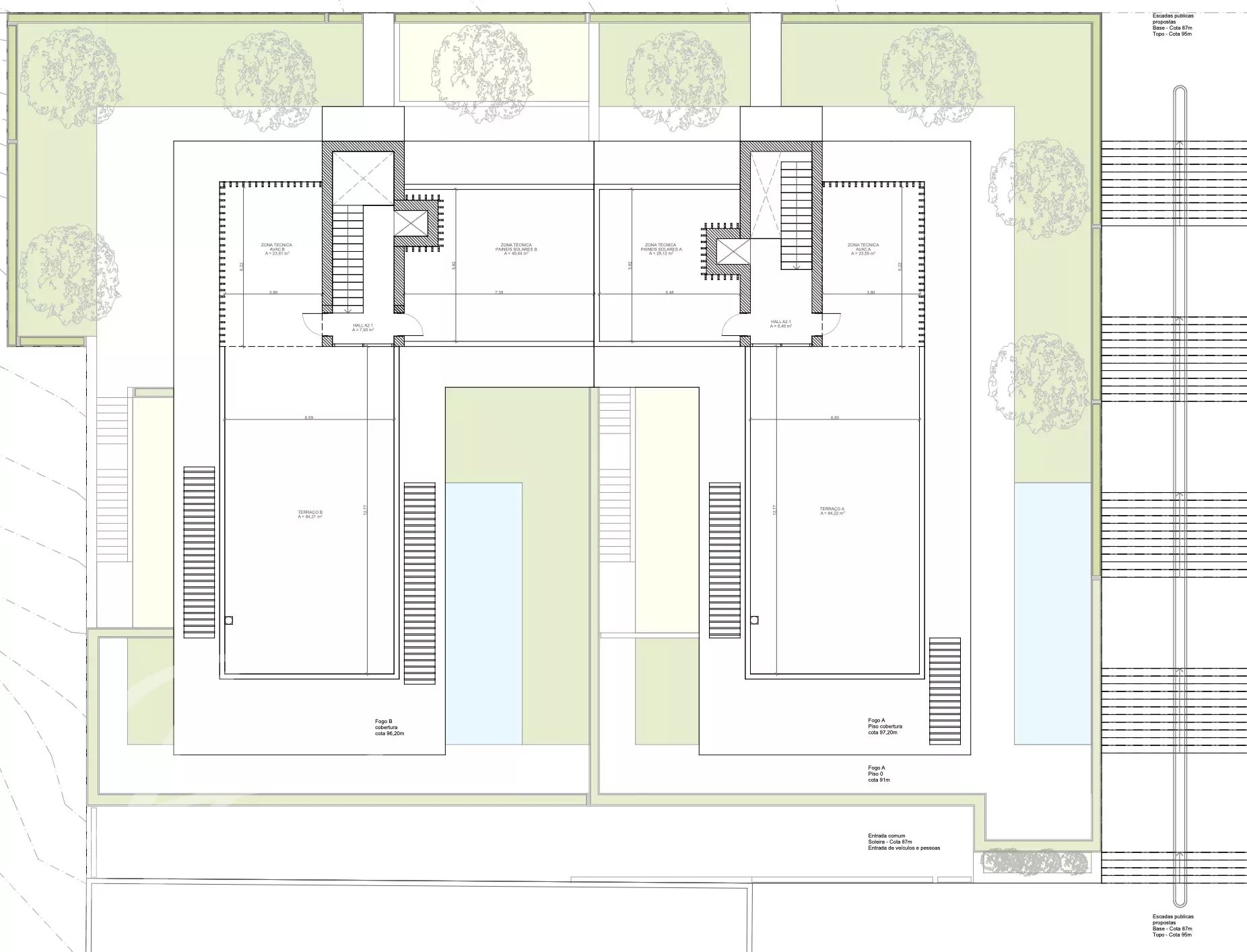
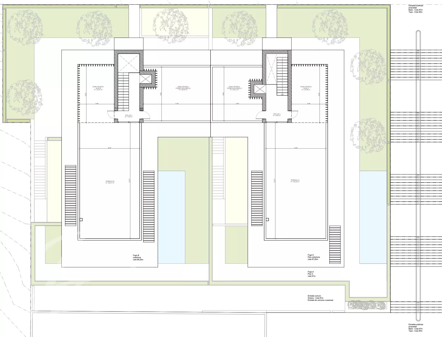
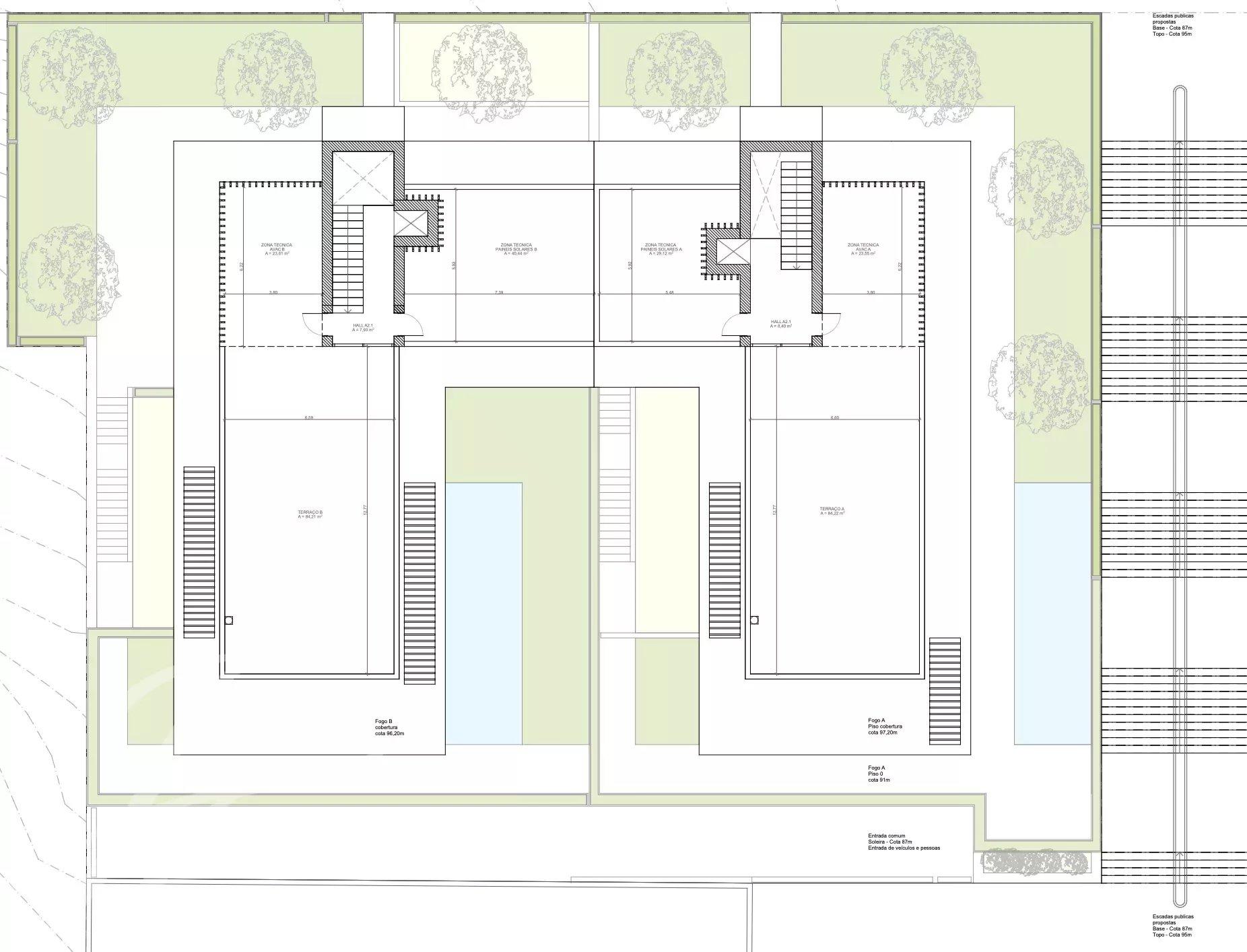
Although the villas share the ramp access to the basement and the pedestrian entrance, each unit has been designed to ensure complete functional and residential independence, featuring private basement parking, an exclusive garden, an individual swimming pool, and fully independent access. The project includes a basement level with garage space for four vehicles, storage areas and a suite with natural light, generous living areas on the ground floor, private bedrooms on the upper floor, and a rooftop terrace of 84 sqm offering open, unobstructed views.

Located in the heart of Restelo, one of Lisbon’s most prestigious residential neighbourhoods, this property enjoys a truly exceptional setting, surrounded by gardens, embassies and iconic landmarks such as Belém Tower, Jerónimos Monastery and the Champalimaud Foundation.

John Taylor is one of the world’s oldest and most prestigious international luxury real estate agencies, with over 160 years of history dedicated to the representation of exceptional properties. In Portugal, John Taylor operates in Lisbon, Cascais and Comporta with a highly experienced and qualified team, providing a personalised service based on discretion, rigour and in-depth market knowledge.
For further information about this property or to arrange a viewing, we invite you to contact John Taylor Portugal. We would be delighted to provide you with a professional and dedicated service.

Proximities

  • Airport
  • Beach
  • Bus
  • Bus hub
  • Convention center
  • Day care
  • Highway
  • Hospital/clinic
  • Middle school
  • Movies
  • Park
  • Primary school
  • Sea
  • Shops
  • Station
  • Supermarket
  • Tennis
  • Town centre
  • Tram
  • University

luxury real estate agency LISBON
  • TMP REAL ESTATE LDA
    Rua da Lapa, 126
  • 1200-703 LISBON
  • PORTUGAL

John Taylor
Online enquiry

* Compulsory fields
The information collected is necessary to process your request. At any time, you have the right to access, modify and delete your data.