• Plot of land for sale Comporta, Comporta, Portugal
    800 000 EUR

Plot 801 m²801 m²View Unobstructed Garden Countryside Greenery Unobstructed Garden Countryside Greenery 

Great Opportunity sale end 2024, Land Comporta, Brejo da Carregueira de Baixo

  • V0240CP
  • Sale
  • Plot of land

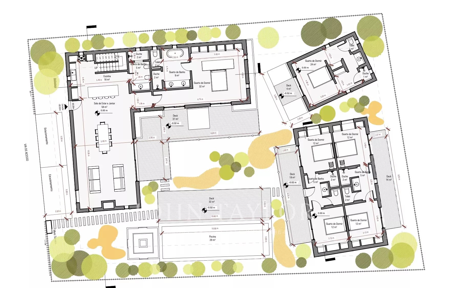
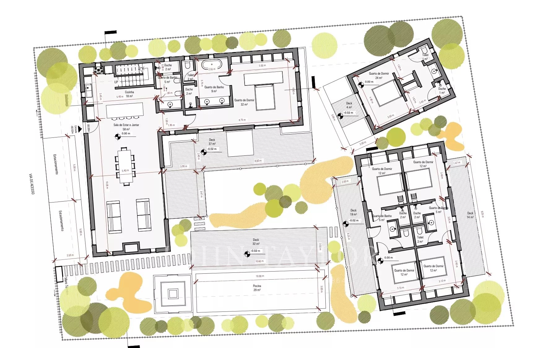
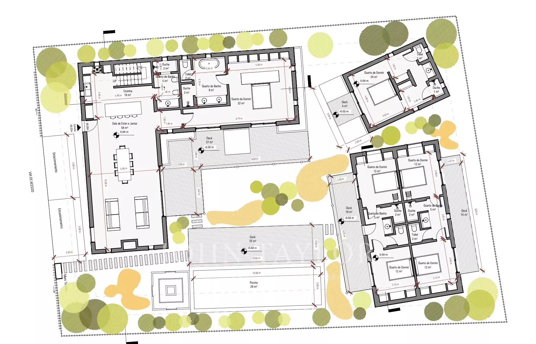
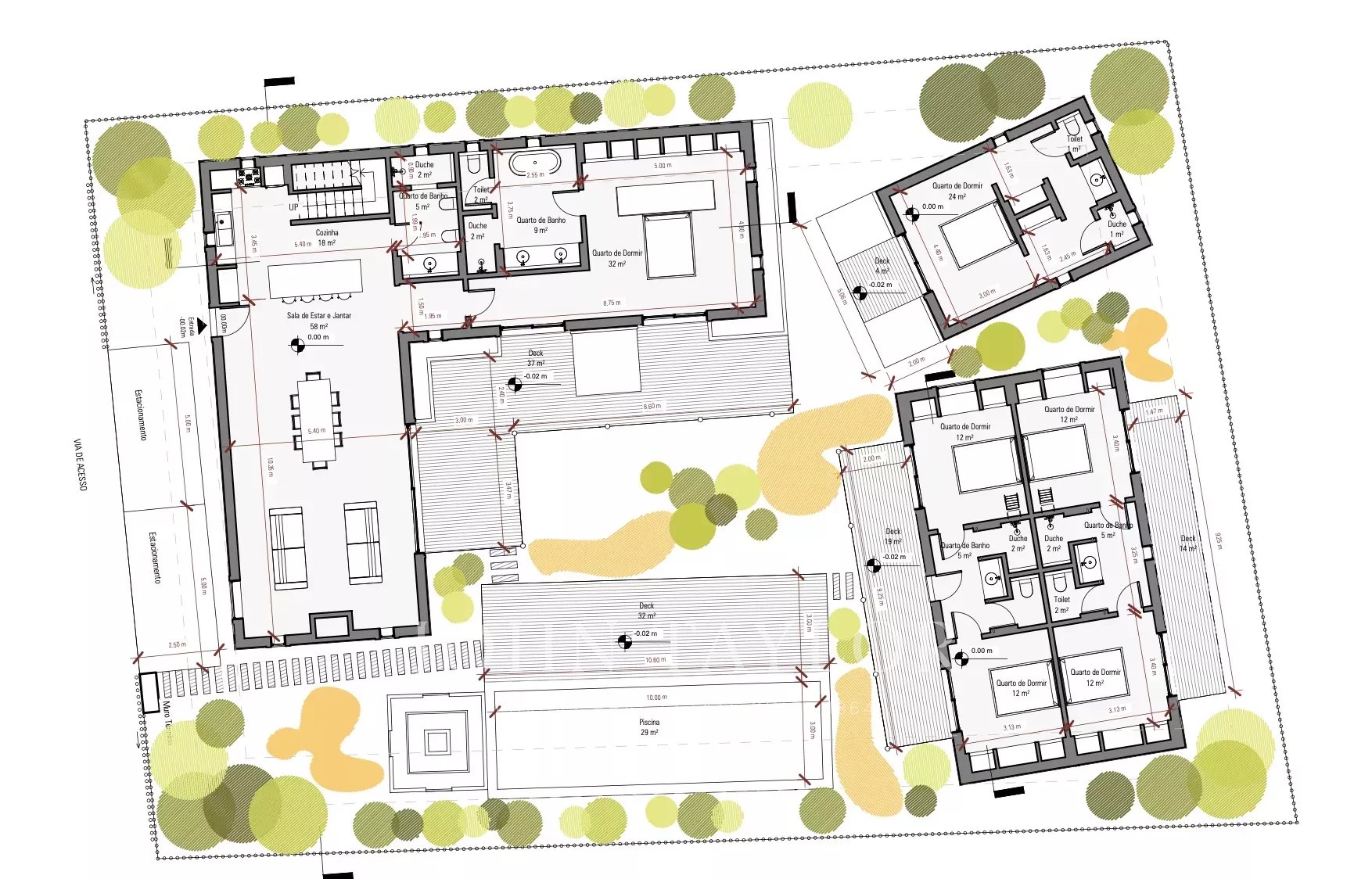
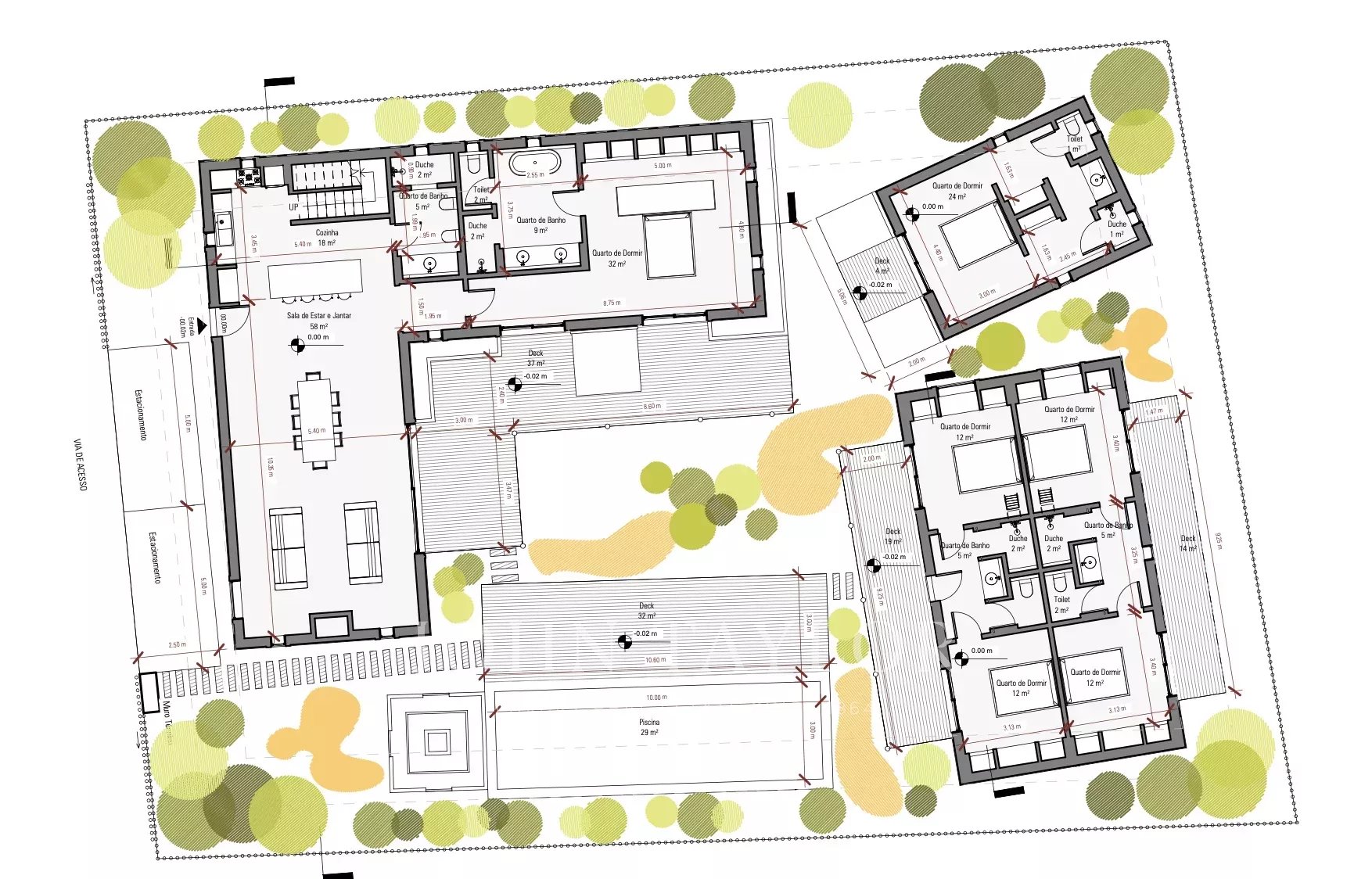
Urban Land | 801 m2 | Architecture Project House V6 | Total construction area 250 m2 | Excellent location | Brejo da Carregueira de Baixo, Comporta

It is an exclusive plot of 801 m2, in a closed condominium, inserted in Herdade da Comporta, in one of the best areas of Comporta, Brejo da Carregueira de Baixo, with a pre-approved project for 3 cabana´s with covered construction areas of 250 m2, 2 suites, 4 bedrooms, living/dining room, open kitchen, swimming pool separate storage room and fire pit.

Main Cabana
living room 40 m2
Kitchen 17 m2
Master Suite 28 m2
Social WC 2 m2
Hall 5 m2

Guest Cabana 1
4 bedrooms of 12 m2 each, sharing 2 bathrooms of 2,4 m2 each
Additional suite with separate entrance 33 m2 with kitchenette (studio)

Pool 25 m2
Separate storage room 12 m2

Located between the charming villages of Comporta and Carvalhal, this plot has direct access to deserted beaches and is only 5 minutes from the famous beaches of Pego and Carvalhal.

Architecture project from Studio Something Imaginary.

Proximities

  • Shops
  • Beach
  • Town centre
  • Supermarket
  • Golf
  • Airport
  • Highway

luxury real estate agency COMPORTA
  • TMP Real Estate, Lda
    Rua do Arroz, 51 – Lj.
  • 7570-782 COMPORTA
  • GRANDOLA, PORTUGAL

John Taylor
Online enquiry

* Compulsory fields
The information collected is necessary to process your request. At any time, you have the right to access, modify and delete your data.