• House for sale Bordeaux - Bouliac, South West, France
    1 320 000 EUR

Surface area 220 m²220 m²Property size 250 m²250 m²Plot 2 500 m²2 500 m²4 Bedrooms4 Bedrooms6 Rooms6 Rooms2 Bathrooms2 BathroomsView Unobstructed Unobstructed Swimming poolSwimming pool

BOULIAC - ARCHITECT'S HOUSE PROJECT - JOHN TAYLOR

  • V0516BX
  • Sale
  • House

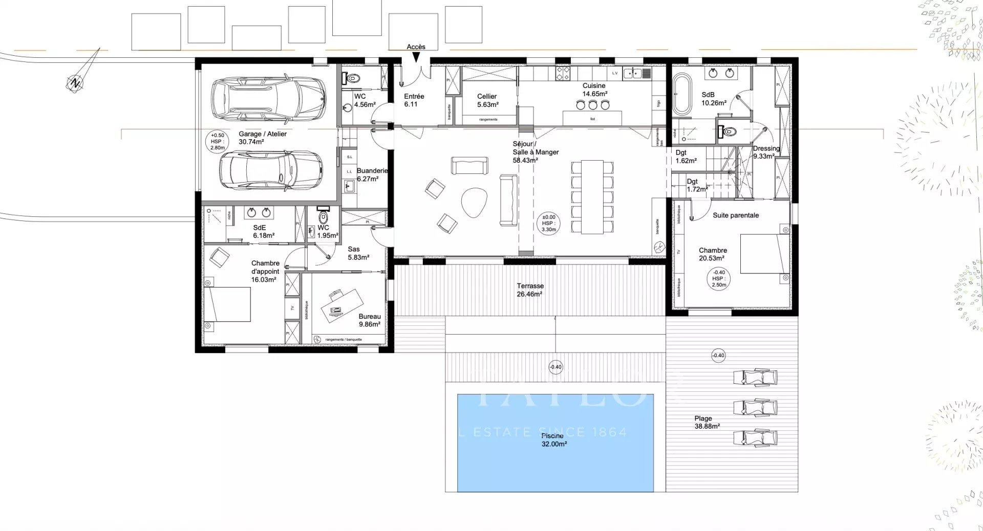
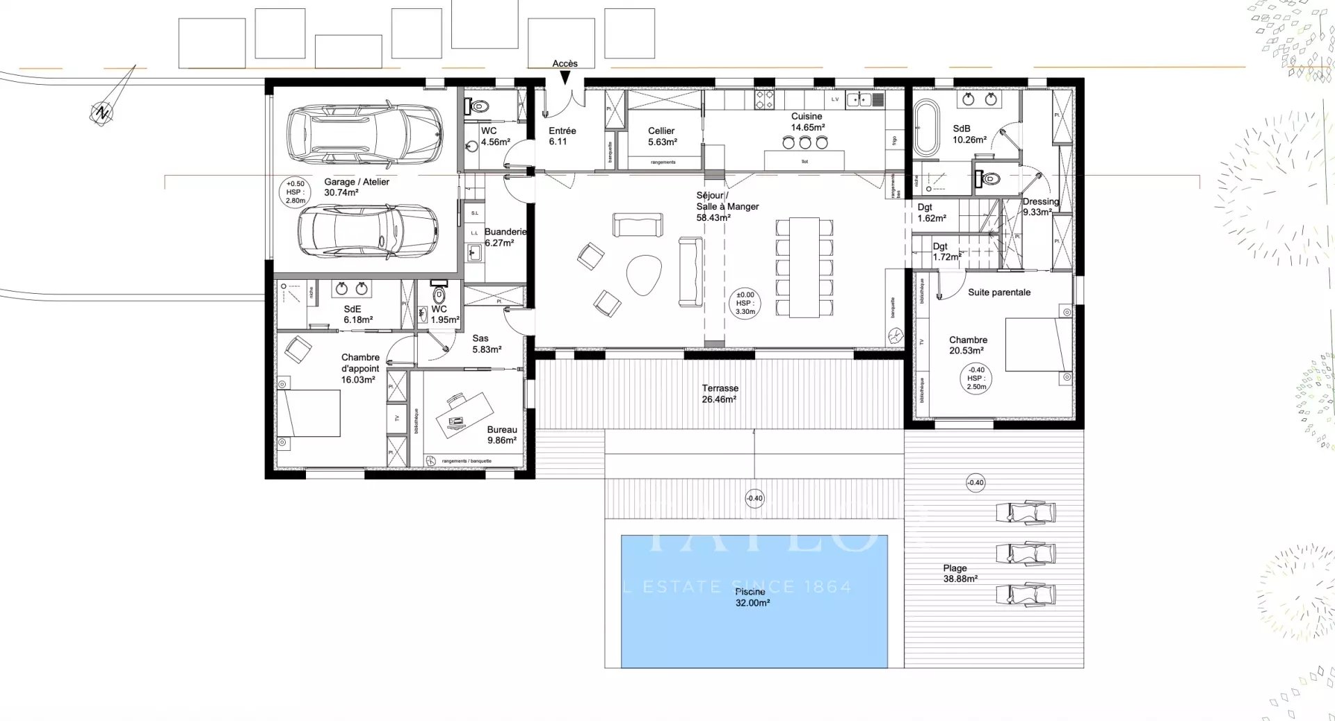
Located in a quiet cul-de-sac in Haut Bouliac, this development offers a rare opportunity in a privileged environment.

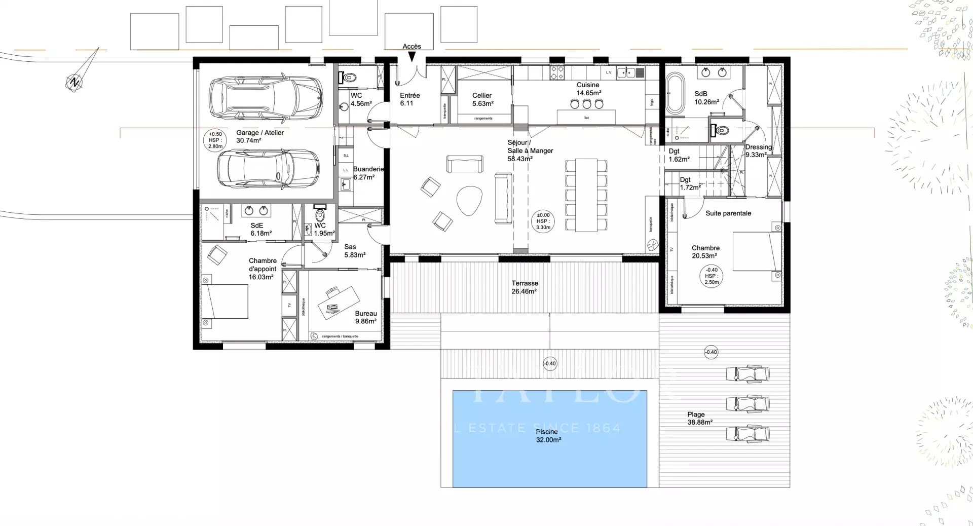
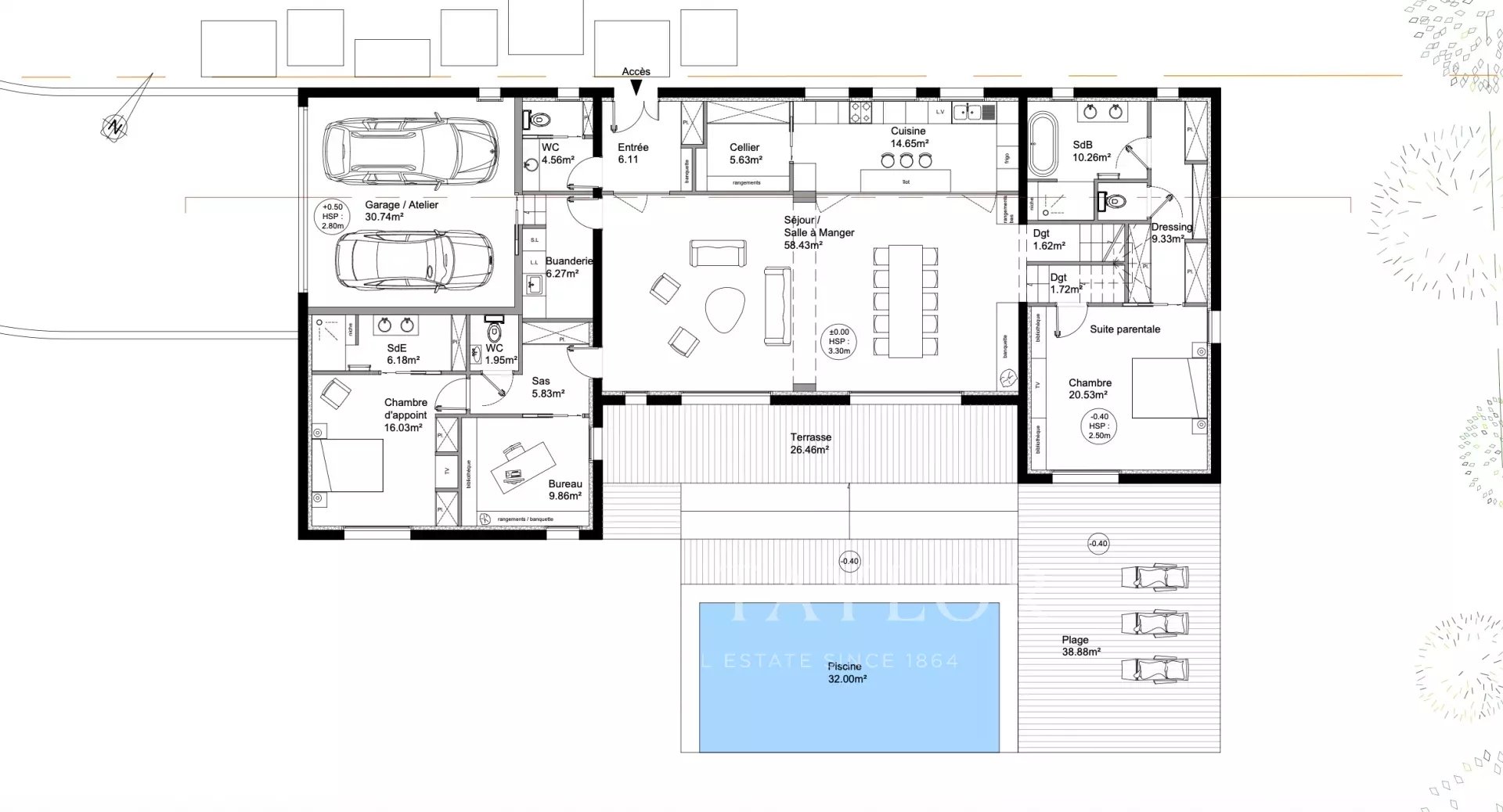
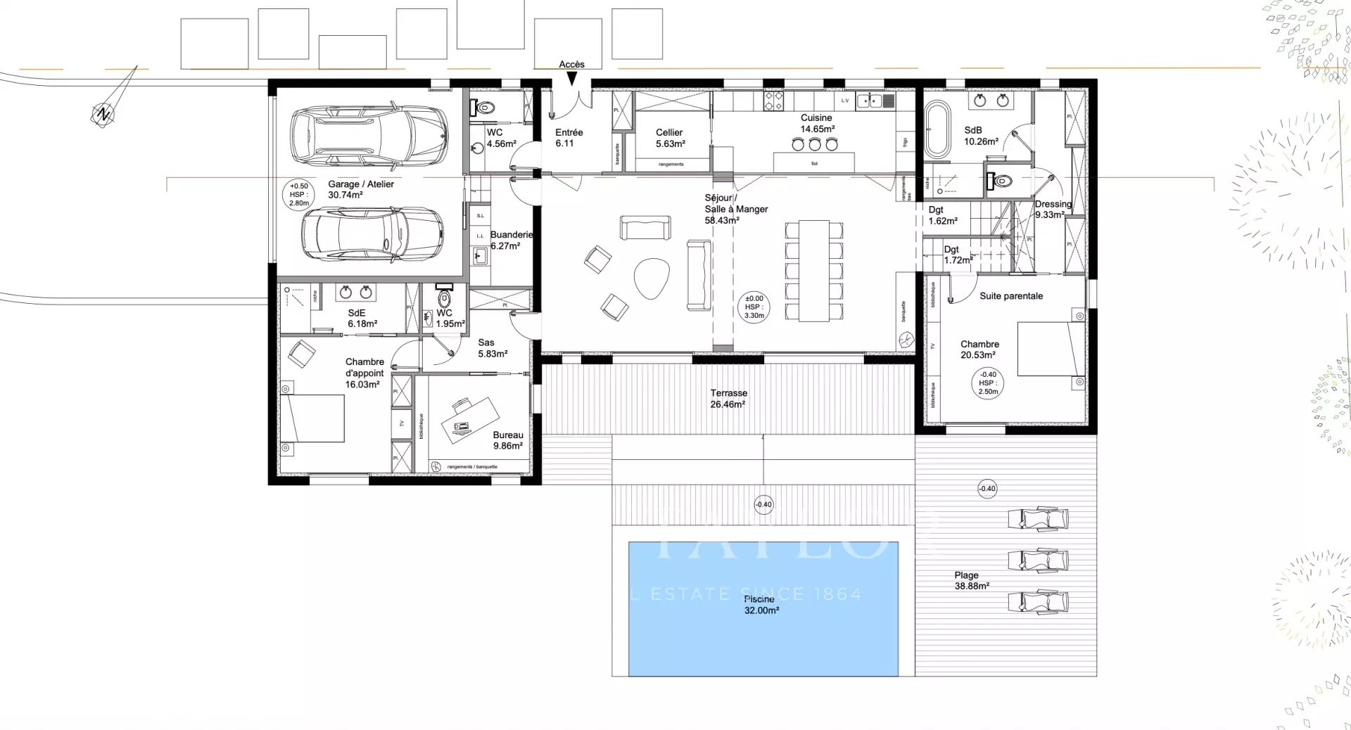
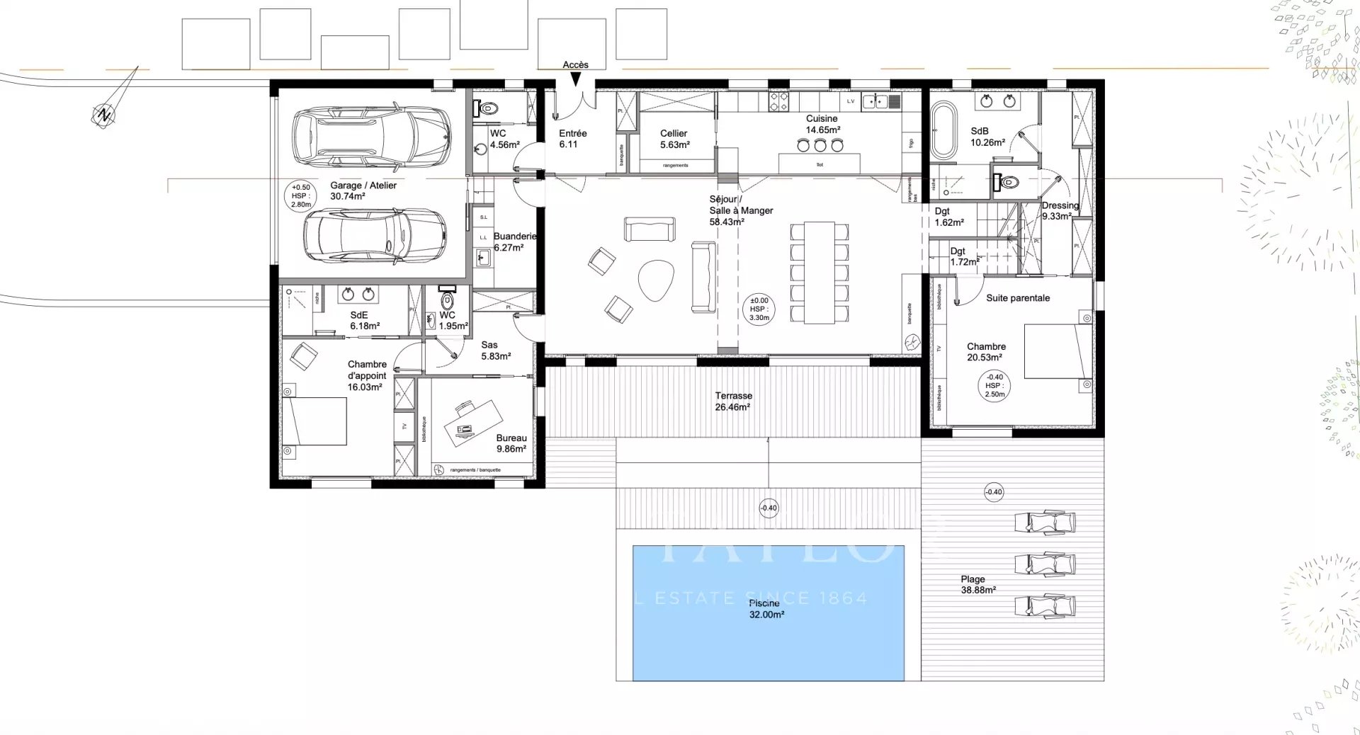
The 2,500 m² plot, set back from the main road, boasts an unobstructed view of a protected wood, bringing peace and privacy to the future residence. The 220 m² building faces south-west, allowing you to take full advantage of the natural light all day long.

Designed to accommodate a harmonious family life, this home features generous spaces and optimal orientation. The spacious living room, approaching 60 m² with 3.30 m high ceilings, opens onto an unoverlooked terrace, ideal for entertaining or relaxing in complete privacy. From here, access to the swimming pool allows you to take full advantage of the natural setting.

The layout includes a closed office overlooking the forest, ideal for telecommuting, four bedrooms with en-suite shower rooms, and a master suite with bathroom and dressing room, guaranteeing comfort and privacy for all. A double garage completes this proposal, offering convenient and secure parking.

The result is a refined, bright residence in harmony with its surroundings, in a sought-after area of Haut Bouliac, where comfort and nature meet for an exceptional quality of life.

The value of the land is €650,000 (including agency fees). The architect's mission, construction and follow-up are estimated at €670,000.

Contact us today for more information on this project.

Conventional consumption
Emissions estimate

Proximities

  • Town centre
  • Tennis
  • Sea
  • TGV station

luxury real estate agency BORDEAUX
  • Sud Ouest Résidences
    168 rue Fondaudège
  • 33000 BORDEAUX
  • Gironde, FRANCE

John Taylor
Online enquiry

* Compulsory fields
The information collected is necessary to process your request. At any time, you have the right to access, modify and delete your data.