• Co-exclusive

  • Apartment for sale Principality Of Monaco, La Rousse / Saint-Roman
    6 000 000 EUR

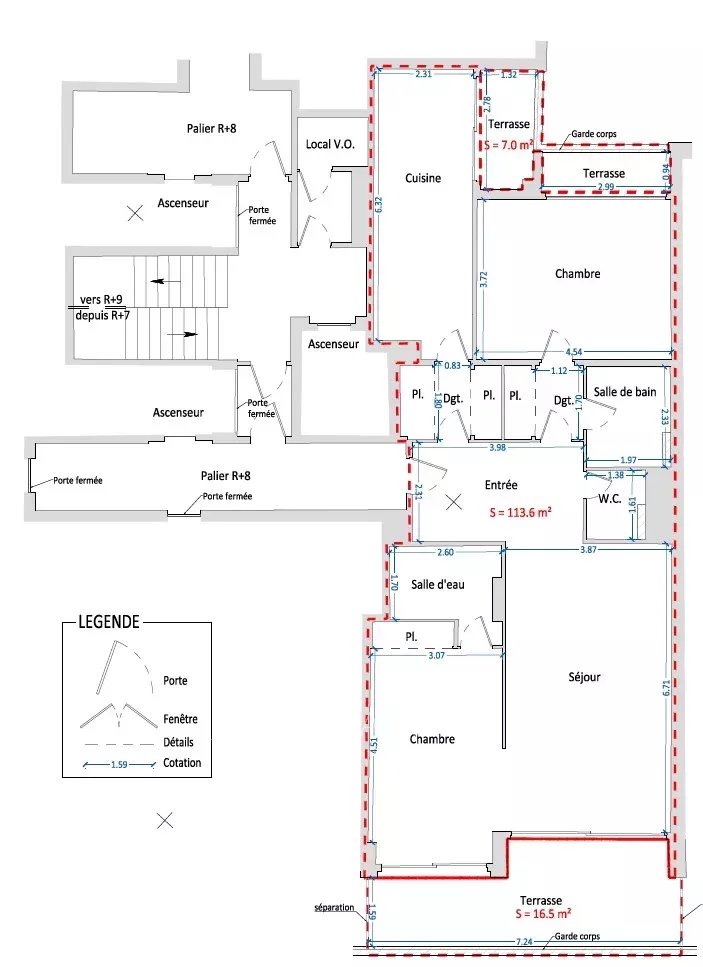
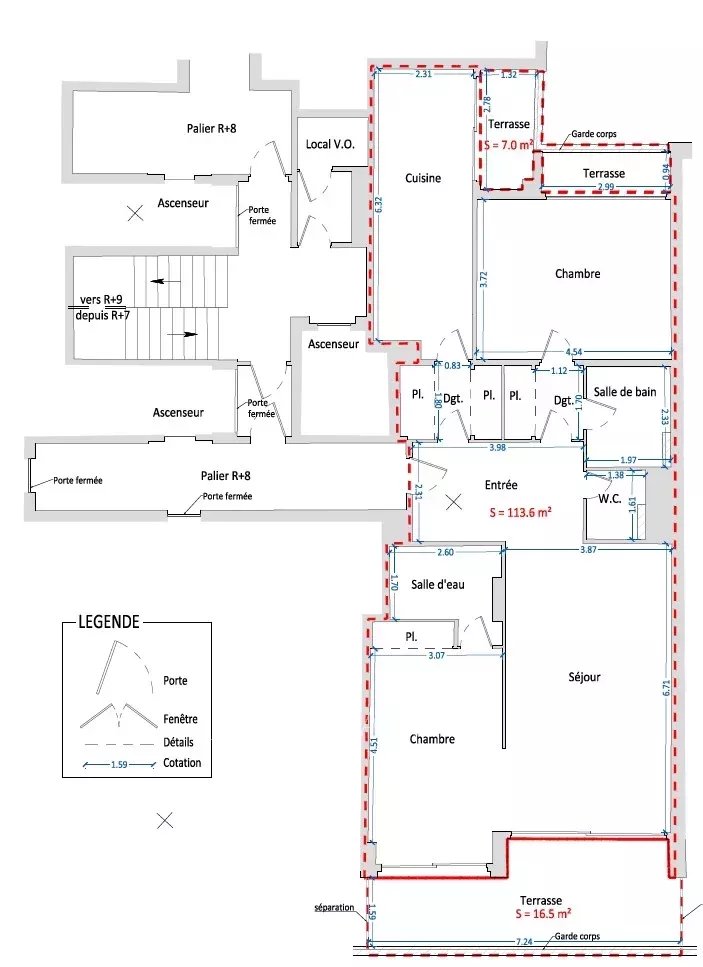
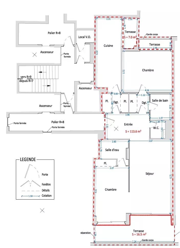
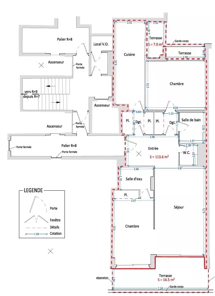
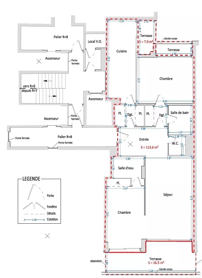
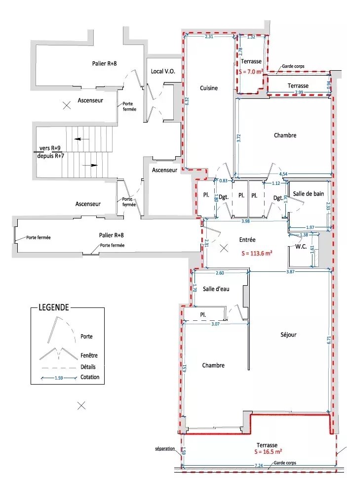
Surface area 114 m²114 m²2 Bedrooms2 Bedrooms3 Rooms3 RoomsFloor 8/19Floor 8/19Property size 137 m²137 m²Air-conditioningAir-conditioning

La Rousse - Le Château d'Azur - Bright 3-room apartment with sea view, great potential

  • V1805MC
  • Sale
  • Apartment

Discover this spacious 3-room apartment, ideal for lovers of spaciousness and natural light. Located in a luxury residence with concierge, this apartment for renovation offers great potential for creating a bespoke interior.

It comprises a vast living room, a kitchen and a bedroom on the front, benefiting from a beautiful unobstructed view of the sea, bringing light and clarity.
To the rear, a second bedroom and a large independent kitchen offer a functional space that can be adapted to suit your needs.
Two bathrooms and a guest toilet.
A rare property, ideal for creating a bespoke interior while enjoying a privileged setting.

Discover it now!
Contact us for more information or to arrange a viewing.

luxury real estate agency MONACO
  • JOHN TAYLOR & SON
    20 boulevard des Moulins
  • 98000 MONACO
  • Monaco, PRINCIPALITY OF MONACO

John Taylor
Online enquiry

* Compulsory fields
The information collected is necessary to process your request. At any time, you have the right to access, modify and delete your data.