• Office for rent Principality Of Monaco, Fontvieille
    3 540 EUR / Month

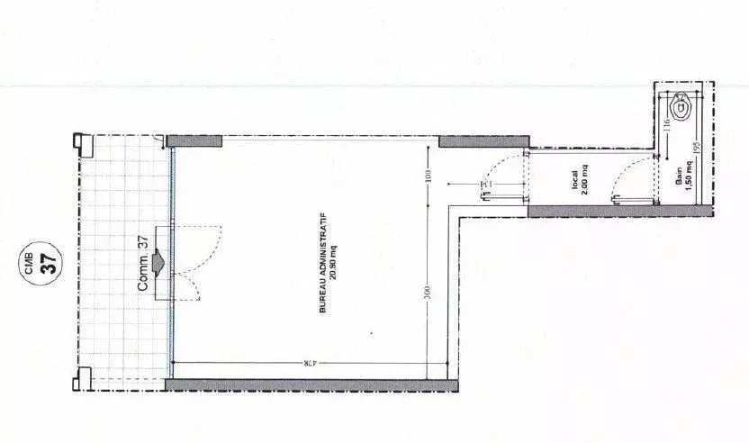
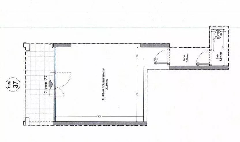
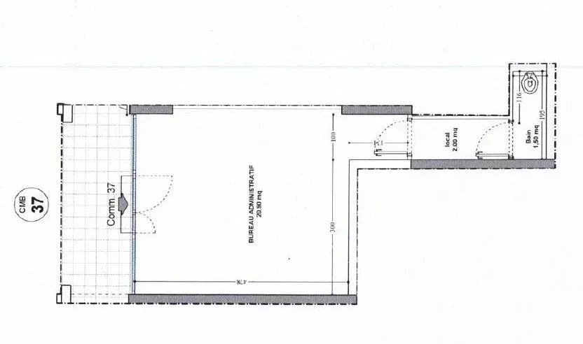
1 Rooms1 RoomsView Harbor Harbor Property size 24 m²24 m²

Fontvieille - Le Cimabue - Office

  • L1522MC
  • Rental
  • Office

Located in Fontvieille, in a luxury residence with reception, swimming pool with counter-current swimming, sauna, fitness room and 24/7 concierge, close to all amenities, 24sqm office available for rent.

luxury real estate agency MONACO
  • JOHN TAYLOR & SON
    20 boulevard des Moulins
  • 98000 MONACO
  • Monaco, PRINCIPALITY OF MONACO

John Taylor
Online enquiry

* Compulsory fields
The information collected is necessary to process your request. At any time, you have the right to access, modify and delete your data.